Cargando...
Proyecto de entorno urbano en el centro histórico de Toledo.
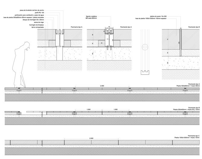
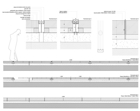
Urbanismo de un entorno monumental que potencia la visibilidad de su arquitectura singular y evita el calentamiento extremo (isla de calor) que se viene produciendo por la hermeticidad general de los suelos en el espacio público. Tratamiento del entorno urbano que enfatice las direcciones y los accesos con un pavimento con líneas de fundición entre losas de granito antiguas y nuevas con el fin de preservar los restos arqueológicos, dejar respirar al subsuelo así como recoger el agua de lluvia y baldeo para preservar el nivel freático.
.
Información general
Calle San Román y calle San Clemente en Toledo
AÑO
Opción de visitas
Dirección
c/ San Román,
45002 Toledo - Toledo
Latitud: 39.858556275
Longitud: -4.027176379
Clasificación
Sistema constructivo
losas de granito y perfiles de fundición para un pavimento que deja respirar al terreno y recoge el agua en el nivel freático.
Superficie construida
Arquitectos participantes
Estudios de arquitectura participantes
Información aportada por
Blanca Lleó estudio
-
Blanca Lleó -
Blanca Lleó -
Detalle pavimento - Blanca Lleó -
Blanca Lleó -
Blanca Lleó -
Blanca Lleó
Ubicación
Itinerarios
https://content.gnoss.ws/carq/https://content.gnoss.ws/carq//imagenes/Documentos/imgsem/87/8707/87072de3-6642-40bd-b919-690e97eb00fc/96b445ad-119e-4668-9d31-ee46b933e11a.jpg, 0000024796/Calle Sroman Sclemente.jpg
https://content.gnoss.ws/carq/https://content.gnoss.ws/carq//imagenes/Documentos/imgsem/87/8707/87072de3-6642-40bd-b919-690e97eb00fc/28cebab4-fe09-4295-828e-cd85f5653e96.jpg, 0000024796/Calle Sroman Sclemente_1 .jpg
https://content.gnoss.ws/carq/https://content.gnoss.ws/carq//imagenes/Documentos/imgsem/87/8707/87072de3-6642-40bd-b919-690e97eb00fc/9ee4da4c-6352-4b57-bcbd-9eaa196d0b4f.jpg, 0000024796/Calle Sroman Sclemente_3 .jpg
https://content.gnoss.ws/carq/https://content.gnoss.ws/carq//imagenes/Documentos/imgsem/87/8707/87072de3-6642-40bd-b919-690e97eb00fc/0451f4cd-1471-4797-83ad-73bea3b5a316.jpg, 0000024796/Calle Sroman Sclemente_5 .jpg
https://content.gnoss.ws/carq/https://content.gnoss.ws/carq//imagenes/Documentos/imgsem/87/8707/87072de3-6642-40bd-b919-690e97eb00fc/42052673-6ccf-4b1a-88fe-602f6e9a124b.jpg, 0000024796/Calle Sroman Sclemente_2 .jpg
https://content.gnoss.ws/carq/https://content.gnoss.ws/carq//imagenes/Documentos/imgsem/87/8707/87072de3-6642-40bd-b919-690e97eb00fc/2f952cf0-900a-40dc-a62d-544410907549.jpg, 0000024796/IMG_2204.JPG
https://content.gnoss.ws/carq/https://content.gnoss.ws/carq//imagenes/Documentos/imgsem/87/8707/87072de3-6642-40bd-b919-690e97eb00fc/6dc47380-5957-4cb9-82e1-c802604f6a1c.jpg, 0000024796/Calle Sroman Sclemente_4 .jpg
https://content.gnoss.ws/carq//imagenes/Documentos/imgsem/87/8707/87072de3-6642-40bd-b919-690e97eb00fc/7e161780-d0ad-4883-889a-503aa921090b.jpg, 0000024796/08 dib det.jpg







