Cargando...
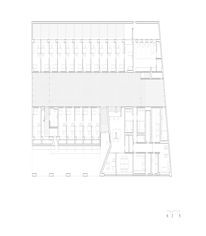
El proyecto nace de la voluntad de cualificar el espacio interior y de integrarse con naturalidad con la escala del entorno. Todo el programa se ubica a pie de calle, en un esquema a partir de dos líneas paralelas que, ocupadas por los espacios destinados a consultas, enmarcan una sala de mayor altura que recibe luz de norte desde una ventana elevada. El resultado es una sección clásica de tres naves, similar a la de una capilla, donde la mirada se dirige hacia el cielo. Desde fuera, el edificio ofrece muy pocas pistas de su espacio interior; gracias a su opacidad, se protege de la carretera, para dar así respuesta a las necesidades de privacidad del equipamiento.
El recorrido de acceso es gradual, con lo que invita a la calma. Un porche recibe al visitante en un gesto que quiere ser de acogida, ampliando la calle, donde un banco alongado permite reposar y tomar el aire a la sombra. Al final, un muro inclinado introduce a la persona que visita el recinto a esa nave para acompañarla con ternura a descubrir con cierta sorpresa la riqueza y luz de su interior.
Los materiales utilizados son los tradicionales del lugar: el ladrillo cerámico, en las paredes y la vuelta; el hormigón, en su condición más austera; y la madera de pino, barnizada. Todo está construido por artesanos locales y con la clara voluntad de perdurar en el tiempo. Dentro, el material y grosor de las paredes logran una inercia térmica que, como siempre ha sucedido con la arquitectura tradicional, favorece un clima más templado. El edificio se protege del sol y ventila de forma natural al abrir las ventanas más altas a norte, refrescando y renovando así todo el aire interior.
Información general
CAP Cotet
AÑO
Opción de visitas
Dirección
ctra. de Vilassar de Dalt, 18
08338 Premia de Dalt - Barcelona
Latitud: 41.499620068
Longitud: 2.3594422627
Clasificación
Materiales construcción
Superficie construida
Información aportada por
XVI BEAU
-
BAAS Arquitectura; AIS Arquitectura Ingeniería Salud -
BAAS Arquitectura; AIS Arquitectura Ingeniería Salud -
XVI BEAU -
XVI BEAU
Ubicación
https://content.gnoss.ws/carq/https://content.gnoss.ws/carq//imagenes/Documentos/imgsem/ad/adfa/adfa87fa-26d7-4233-8e0d-8c2f67566a1e/f8e39544-2d0d-4000-9d71-070a68170bc4.jpg, 0000020556/BAD0065_FOTOGRAFIES_07.jpg
https://content.gnoss.ws/carq/https://content.gnoss.ws/carq//imagenes/Documentos/imgsem/ad/adfa/adfa87fa-26d7-4233-8e0d-8c2f67566a1e/d7b424d4-9f9b-44da-93b1-3b18c56b5040.jpg, 0000020556/BAD0065_FOTOGRAFIES_02.jpg
https://content.gnoss.ws/carq/https://content.gnoss.ws/carq//imagenes/Documentos/imgsem/ad/adfa/adfa87fa-26d7-4233-8e0d-8c2f67566a1e/367b4ae9-1316-4023-a917-8c11bcf4ea3a.jpg, 0000020556/BAD0065_FOTOGRAFIES_03.jpg
https://content.gnoss.ws/carq/https://content.gnoss.ws/carq//imagenes/Documentos/imgsem/ad/adfa/adfa87fa-26d7-4233-8e0d-8c2f67566a1e/7cdfe9b9-5217-46c6-85b4-b260c0339900.jpg, 0000020556/BAD0065_FOTOGRAFIES_04.jpg
https://content.gnoss.ws/carq/https://content.gnoss.ws/carq//imagenes/Documentos/imgsem/ad/adfa/adfa87fa-26d7-4233-8e0d-8c2f67566a1e/afe6001b-0115-4cad-8e7c-d4e91ac616a0.jpg, 0000020556/BAD0065_FOTOGRAFIES_05.jpg
https://content.gnoss.ws/carq/https://content.gnoss.ws/carq//imagenes/Documentos/imgsem/ad/adfa/adfa87fa-26d7-4233-8e0d-8c2f67566a1e/fe599d23-07c9-4dc7-90ac-17eb7b1c6ca3.jpg, 0000020556/BAD0065_FOTOGRAFIES_06.jpg
https://content.gnoss.ws/carq/https://content.gnoss.ws/carq//imagenes/Documentos/imgsem/ad/adfa/adfa87fa-26d7-4233-8e0d-8c2f67566a1e/f84206f2-0777-4c9f-aacf-049f682fb7a7.jpg, 0000020556/BAD0065_FOTOGRAFIES_08.jpg
https://content.gnoss.ws/carq/https://content.gnoss.ws/carq//imagenes/Documentos/imgsem/ad/adfa/adfa87fa-26d7-4233-8e0d-8c2f67566a1e/40db1e26-7a3e-4d96-a68f-89ecada6701a.jpg, 0000020556/BAD0065_FOTOGRAFIES_09.jpg
https://content.gnoss.ws/carq/https://content.gnoss.ws/carq//imagenes/Documentos/imgsem/ad/adfa/adfa87fa-26d7-4233-8e0d-8c2f67566a1e/62ee7017-0e88-4326-b374-7fb65f8b2301.jpg, 0000020556/BAD0065_FOTOGRAFIES_10.jpg
https://content.gnoss.ws/carq//imagenes/Documentos/imgsem/ad/adfa/adfa87fa-26d7-4233-8e0d-8c2f67566a1e/1352beff-5594-4adb-8415-c189920cefd8.jpg, 0000020556/BAD0065_PLANOS_02.jpg
https://content.gnoss.ws/carq//imagenes/Documentos/imgsem/ad/adfa/adfa87fa-26d7-4233-8e0d-8c2f67566a1e/bd2ac75e-00eb-4bc4-b2f7-b4cfc6c7d5ac.jpg, 0000020556/BAD0065_PLANOS_01.jpg
https://content.gnoss.ws/carq//imagenes/Documentos/imgsem/ad/adfa/adfa87fa-26d7-4233-8e0d-8c2f67566a1e/7eaa6a17-2eb1-4b5a-9dfd-ad60465016e3.jpg, 0000020556/BAD0065_PLANOS_04.jpg
https://content.gnoss.ws/carq//imagenes/Documentos/imgsem/ad/adfa/adfa87fa-26d7-4233-8e0d-8c2f67566a1e/cc3521a9-e410-4db1-beb0-6eb0d5e654f3.jpg, 0000020556/BAD0065_PLANOS_05.jpg
https://content.gnoss.ws/carq//imagenes/Documentos/imgsem/ad/adfa/adfa87fa-26d7-4233-8e0d-8c2f67566a1e/f489d86a-4247-42f4-b1d8-2d909df7ad59.jpg, 0000020556/BAD0065_PLANOS_08.jpg
https://content.gnoss.ws/carq//imagenes/Documentos/imgsem/ad/adfa/adfa87fa-26d7-4233-8e0d-8c2f67566a1e/eb569fa4-f78e-4c0f-9a26-63fc43f3f109.jpg, 0000020556/BAD0065_PLANOS_03.jpg
https://content.gnoss.ws/carq//imagenes/Documentos/imgsem/ad/adfa/adfa87fa-26d7-4233-8e0d-8c2f67566a1e/f35ffb15-254c-4499-9269-4d053d9822d6.jpg, 0000020556/BAD0065_PLANOS_07.jpg
https://content.gnoss.ws/carq//imagenes/Documentos/imgsem/ad/adfa/adfa87fa-26d7-4233-8e0d-8c2f67566a1e/0cdcb2f9-51c1-4793-9cd8-5f3aafdd0dae.jpg, 0000020556/BAD0065_PLANOS_06.jpg





