Cargando...
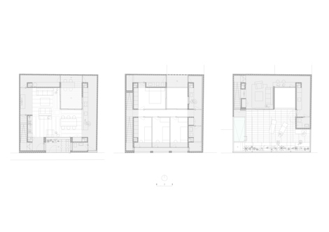
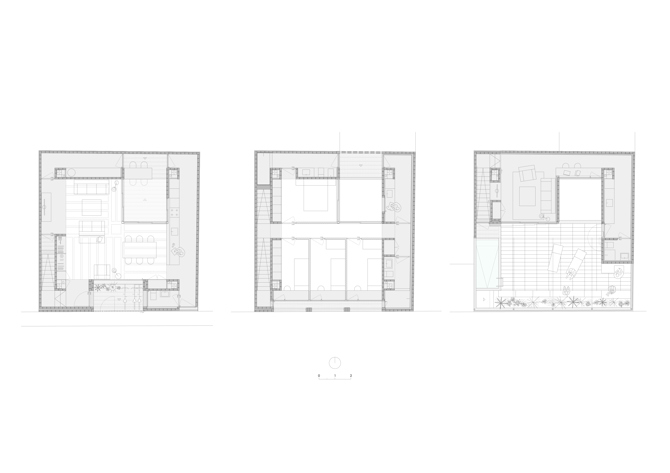
Una vivienda urbana con un extenso programa familiar precisa de un nutrido número de lugares técnicos y menores tan importantes para la vida doméstica como los que solemos llamar principales. Baños, aseos, cocinas, alacenas, lavaderos, tendederos, huecos de instalaciones, almacenes, roperos, jardineras, escaleras, guarda-bicicletas y terrazas constituyen un repertorio de espacios activos que resultan tan decisivos como aquellos dedicados al descanso y al ocio.
La geometría del solar donde se implanta la casa, un cuadrado de diez metros de lado con tres medianeras y fachada orientada al sur, y el elevado tráfico de la calle donde se encuentra, sugieren desplazar esta colección de pequeños espacios activos al perímetro del solar, liberando el centro del cuadrado para los lugares de estancia.
Una doble caja muraria de ladrillo gris regruesa los límites del solar y alberga los cuatro pilares de hormigón sobre los que se apoyan las losas de cada planta, de modo que el espacio central vividero queda protegido por un cinturón de recintos intermedios de almacenamiento e instalaciones. Esta materialidad cerámica exterior e interior, y el entrevigado de los forjados de hormigón, dotan al espacio de una expresión constructiva que matiza la abstracción de la planta.
Se confía en la geometría concéntrica que conlleva esta disposición espacial como argumento para establecer relaciones fluidas y densas entre los distintos espacios de la casa, entre aquellos que habitamos lentamente y los que permiten el devenir de la vida cotidiana.
Información general
Casa 10 x 10
AÑO
Opción de visitas
Dirección
c/ Alonso Carrillo, 27
41007 Sevilla - Sevilla
Latitud: 37.388241939
Longitud: -5.969364157
Clasificación
Sistema constructivo
Doble caja muraria de ladrillo interior y exterior y forjado serliano de hormigón sobre cuatro apoyos
Superficie construida
Colaboradores
Alejandro Cabanas (Consultor de estructuras)
Elena González, Rosa Gallardo y Mª Luisa Benítez (Arquitectas colaboradoras)
Estudios de arquitectura participantes
Información aportada por
Sol89
-
Secciones - Sol89 -
Plantas - Sol89 -
Foto 4 - Fernando Alda
Ubicación
https://content.gnoss.ws/carq/https://content.gnoss.ws/carq//imagenes/Documentos/imgsem/47/4778/4778d89e-7ab0-49d4-ace1-14f720d27bdb/496a2167-ab63-4479-a952-53c3cbe2b75c.jpg, 0000005246/04.JPG
https://content.gnoss.ws/carq/https://content.gnoss.ws/carq//imagenes/Documentos/imgsem/47/4778/4778d89e-7ab0-49d4-ace1-14f720d27bdb/b5da9098-aa54-4b5b-b939-07bb32449be3.jpg, 0000005246/1.jpg
https://content.gnoss.ws/carq/https://content.gnoss.ws/carq//imagenes/Documentos/imgsem/47/4778/4778d89e-7ab0-49d4-ace1-14f720d27bdb/7bbd8eaf-b1d8-4d75-b602-f60e1ffb829a.jpg, 0000005246/02.JPG
https://content.gnoss.ws/carq/https://content.gnoss.ws/carq//imagenes/Documentos/imgsem/47/4778/4778d89e-7ab0-49d4-ace1-14f720d27bdb/8a0aa743-c39b-45e4-b7d8-5b3ee4245954.jpg, 0000005246/07.JPG
https://content.gnoss.ws/carq/https://content.gnoss.ws/carq//imagenes/Documentos/imgsem/47/4778/4778d89e-7ab0-49d4-ace1-14f720d27bdb/547e72f2-148a-4e1c-b6a3-cfeec268e10a.jpg, 0000005246/09.JPG
https://content.gnoss.ws/carq/https://content.gnoss.ws/carq//imagenes/Documentos/imgsem/47/4778/4778d89e-7ab0-49d4-ace1-14f720d27bdb/5e4a25d9-4dd4-44eb-8bf9-c230b743b01d.jpg, 0000005246/10.JPG
https://content.gnoss.ws/carq/https://content.gnoss.ws/carq//imagenes/Documentos/imgsem/47/4778/4778d89e-7ab0-49d4-ace1-14f720d27bdb/ce9755a4-54e3-48ad-af7d-cc008d067e70.jpg, 0000005246/11.JPG
https://content.gnoss.ws/carq/https://content.gnoss.ws/carq//imagenes/Documentos/imgsem/47/4778/4778d89e-7ab0-49d4-ace1-14f720d27bdb/34aa592a-6644-4171-9894-dee8d26fea46.jpg, 0000005246/08.JPG
https://content.gnoss.ws/carq/https://content.gnoss.ws/carq//imagenes/Documentos/imgsem/47/4778/4778d89e-7ab0-49d4-ace1-14f720d27bdb/dd5bda59-252f-42fb-aa61-d5e84b5e0c80.jpg, 0000005246/05.JPG
https://content.gnoss.ws/carq/https://content.gnoss.ws/carq//imagenes/Documentos/imgsem/47/4778/4778d89e-7ab0-49d4-ace1-14f720d27bdb/54e19e46-38c5-4394-8e81-aae65509dcd0.jpg, 0000005246/06.JPG
https://content.gnoss.ws/carq/https://content.gnoss.ws/carq//imagenes/Documentos/imgsem/47/4778/4778d89e-7ab0-49d4-ace1-14f720d27bdb/ef8d0d52-178a-4b74-bd17-6fa334c00395.jpg, 0000005246/03.JPG
https://content.gnoss.ws/carq//imagenes/Documentos/imgsem/47/4778/4778d89e-7ab0-49d4-ace1-14f720d27bdb/d8639d32-60d2-4098-b5ac-bb6452c04b0b.jpg, 0000005246/05 Casa 10x10 - Plantas.jpg
https://content.gnoss.ws/carq//imagenes/Documentos/imgsem/47/4778/4778d89e-7ab0-49d4-ace1-14f720d27bdb/30810918-076e-435d-af4c-a8af2177a438.jpg, 0000005246/06 Casa 10x10 - Secciones.jpg
https://content.gnoss.ws/carq//imagenes/Documentos/imgsem/47/4778/4778d89e-7ab0-49d4-ace1-14f720d27bdb/1c2d58d4-1d19-476d-8da3-9f31dff815e2.jpg, 0000005246/01Situacion.jpg
https://content.gnoss.ws/carq//imagenes/Documentos/imgsem/47/4778/4778d89e-7ab0-49d4-ace1-14f720d27bdb/c796501c-d524-4ea4-b5d6-739649147942.jpg, 0000005246/02 Casa 10x10 - Sol89 - Croquis - copia.jpg
https://content.gnoss.ws/carq//imagenes/Documentos/imgsem/47/4778/4778d89e-7ab0-49d4-ace1-14f720d27bdb/c52430af-02e5-4532-b5af-e6a1c4ccee47.jpg, 0000005246/03 Casa 10x10 - Axonometrica - Sol89 En linea.jpg
https://content.gnoss.ws/carq//imagenes/Documentos/imgsem/47/4778/4778d89e-7ab0-49d4-ace1-14f720d27bdb/b1429891-0e41-4ebd-a604-71062e14e861.jpg, 0000005246/07 Sec Cons.jpg
https://content.gnoss.ws/carq//imagenes/Documentos/imgsem/47/4778/4778d89e-7ab0-49d4-ace1-14f720d27bdb/717770fc-b2fb-4232-ac22-fd7889dd345a.jpg, 0000005246/04 Maqueta.jpg




