Cargando...
Se trata de un proyecto de casa unifamiliar entre medianeras que nos propuso un amigo de Granollers. Nos pidió una casa que debía admitir hasta cuatro situaciones familiares distintas; solo en casa, con su pareja o en distintas combinaciones con los hijos de ambos.
La parcela, ocupada por una casa de planta baja entre medianeras en el momento de iniciar el proyecto, va de calle a calle en sentido Este-Oeste, la fachada Oeste mira a una calle principal del pueblo y es por tanto el ámbito natural de acceso, dejando el lado Este como acceso rodado que podía aprovechar una antigua construcción como parking. La aplicación de la normativa urbanística permite un volumen de medianera a medianera (4,80 m.) alineado con la calle. Planta baja más tres plantas piso (14,60m de altura) y 14m de profundidad desde la fachada de la calle. A pesar de disponer de un magnífico patio En el interior de la manzana, una de las edificaciones vecinas, la que ocupa la medianera Sur, agota la altura reguladora y, al ser una finca testero de la manzana, tapa prácticamente toda la longitud del patio obstaculizando la luz del sol durante gran parte del día. La reducida altura de la construcción existente en el solar respecto al vecino Sur y su volumen disconforme fueron las razones principales por las que se decidió no aprovechar dicha construcción.
A partir de las condiciones descritas, decidimos hacer una casa que utilizase toda la altura disponible para conseguir captación solar “por encima” del vecino construyendo así el volumen máximo posible aunque sin completar todo la superficie construida admitida. Esto se convierte en una sección dividida en dos partes muy diferenciadas; en primer lugar una sala vertical altísima con captación solar cenital sin sombra del vecino, a continuación una torre de planta baja y tres plantas piso que acogen una única habitación en cada nivel.
La sala vertical, al conseguir luz y captación por la cubierta, se cierra completamente en la fachada Oeste, evitando los problemas de esta orientación, especialmente en verano y cerrando la casa al ruido y la indiscreción de la calle principal de
acceso. El espacio resultante es de una naturaleza excepcional debido a sus dimensiones, tiene capacidad captadora y unas características muy singulares que lo convierten en una sala para acoger todo lo no programado.
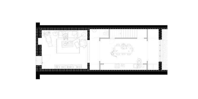
El siguiente episodio es la “torre” de habitaciones, en planta baja y contigua a la sala acogerá comedor y cocina, la de planta primera será la habitación del propietario, la siguiente será para la hija, la cuarta y última será para invitados. Esta configuración permite ocupar completamente las plantas de la casa en función del número de usuarios, no teniendo sensación de habitaciones vacías. Si una planta no se ocupa, el habitante no lo percibe. Al tener una única pieza por planta, esta puede tener ventilación cruzada y dos fuentes de luz natural provenientes del jardín y de la sala de acceso. Para facilitar este efecto de luz y ventilación, la escalera pierde su tradicional crujía estructural que separa las salas de calle de las salas interiores y se diluye alrededor de la columna de habitaciones modificando en cada planta la posición. Así, subiendo a planta primera no vemos que existe una planta segunda y así sucesivamente. La franja que ocupa la escalera se complementa con el resto de programa complementario a las habitaciones: baños, almacenaje de ropa, cama, zona de agua…
La estrategia material-estructural se traduce en forma de estructura cerámica para la envolvente – medianeras, fachadas y espacio captador – y estructura de madera (paneles CLT) para el programa doméstico y servidor. La primera nos aporta la inercia y ventilación necesaria para el buen funcionamiento climático del edificio comportándose como espacio adiabático. La segunda genera un confort basado en el aislamiento y la gestión del aire. Esta dualidad material se percibe tanto desde el espacio polivalente como desde el doméstico gracias a unas aberturas que permiten el paso y las vistas entre ellos.
La normativa permite la construcción de una edificación auxiliar que en este caso se aprovecha como extensión de la planta baja. Se coloca un porche estratégicamente para diferenciar dos espacios exteriores con carácter diferentes: un patio-terraza y un jardín.
Información general
Casa 1721
AÑO
Opción de visitas
Dirección
C/ de Francesc Macià i Llussà,, 77
08402 Granollers - Barcelona -Granollers
Latitud: 41.60096
Longitud: 2.287782
Clasificación
Superficie construida
Colaboradores
Estudios de arquitectura participantes
Información aportada por
Harquitectes
Enlaces web
Ubicación
https://content.gnoss.ws/carq/https://content.gnoss.ws/carq//imagenes/Documentos/imgsem/08/081a/081ae682-5b81-466f-b0bd-4af57538d2b8/c3a6f6a0-a6fb-41d8-8eb9-2dedd1287c91.jpg, 0000102257/1721-1.jpg
https://content.gnoss.ws/carq/https://content.gnoss.ws/carq//imagenes/Documentos/imgsem/08/081a/081ae682-5b81-466f-b0bd-4af57538d2b8/764c53cc-fb37-450a-b5c6-09ce52b05b9a.jpg, 0000102257/1721-harquitectes-casa-granollers-9.jpg
https://content.gnoss.ws/carq/https://content.gnoss.ws/carq//imagenes/Documentos/imgsem/08/081a/081ae682-5b81-466f-b0bd-4af57538d2b8/a0266edf-4118-4ae8-8527-236e72b7a8ae.jpg, 0000102257/1721-harquitectes-casa-granollers-10.jpg
https://content.gnoss.ws/carq/https://content.gnoss.ws/carq//imagenes/Documentos/imgsem/08/081a/081ae682-5b81-466f-b0bd-4af57538d2b8/68c663a8-9aa7-4abc-9fa8-7a31593d15f2.jpg, 0000102257/1721-harquitectes-casa-granollers-11.jpg
https://content.gnoss.ws/carq/https://content.gnoss.ws/carq//imagenes/Documentos/imgsem/08/081a/081ae682-5b81-466f-b0bd-4af57538d2b8/478b355c-5234-456b-809e-9ba1adf4588a.jpg, 0000102257/1721-harquitectes-casa-granollers-12.jpg
https://content.gnoss.ws/carq/https://content.gnoss.ws/carq//imagenes/Documentos/imgsem/08/081a/081ae682-5b81-466f-b0bd-4af57538d2b8/db8dcb85-20cc-45e2-8a96-c2bfe5e8ce30.jpg, 0000102257/1721-harquitectes-casa-granollers-13.jpg
https://content.gnoss.ws/carq/https://content.gnoss.ws/carq//imagenes/Documentos/imgsem/08/081a/081ae682-5b81-466f-b0bd-4af57538d2b8/b71d0ec4-2437-41fd-bf18-a7d92a6cfb9b.jpg, 0000102257/1721-harquitectes-casa-granollers-14.jpg
https://content.gnoss.ws/carq/https://content.gnoss.ws/carq//imagenes/Documentos/imgsem/08/081a/081ae682-5b81-466f-b0bd-4af57538d2b8/09beebfa-9554-480c-b3b7-52474a83ae35.webp, 0000102257/1721-2.webp
https://content.gnoss.ws/carq/https://content.gnoss.ws/carq//imagenes/Documentos/imgsem/08/081a/081ae682-5b81-466f-b0bd-4af57538d2b8/bf508bd3-f895-4305-b661-8327f1394cb9.jpg, 0000102257/1721-3.jpg
https://content.gnoss.ws/carq/https://content.gnoss.ws/carq//imagenes/Documentos/imgsem/08/081a/081ae682-5b81-466f-b0bd-4af57538d2b8/0ffafea4-d01f-4ae2-a81b-5c10a4a90056.jpg, 0000102257/1721-4.jpg
https://content.gnoss.ws/carq/https://content.gnoss.ws/carq//imagenes/Documentos/imgsem/08/081a/081ae682-5b81-466f-b0bd-4af57538d2b8/bc540e37-94f8-41fa-a7ff-2972bfd519b9.jpg, 0000102257/1721-5.jpg
https://content.gnoss.ws/carq/https://content.gnoss.ws/carq//imagenes/Documentos/imgsem/08/081a/081ae682-5b81-466f-b0bd-4af57538d2b8/e22d2ebe-de4c-45bd-8e76-1a0e2a230072.jpg, 0000102257/1721-harquitectes-casa-granollers-6.jpg
https://content.gnoss.ws/carq/https://content.gnoss.ws/carq//imagenes/Documentos/imgsem/08/081a/081ae682-5b81-466f-b0bd-4af57538d2b8/93e8f79e-364c-4034-a14d-d16fe4811971.jpg, 0000102257/1721-harquitectes-casa-granollers-7.jpg
https://content.gnoss.ws/carq/https://content.gnoss.ws/carq//imagenes/Documentos/imgsem/08/081a/081ae682-5b81-466f-b0bd-4af57538d2b8/ebdca4f6-584b-46d1-9b06-c69d2de41e2a.jpg, 0000102257/1721-harquitectes-casa-granollers-8.jpg
https://content.gnoss.ws/carq/https://content.gnoss.ws/carq//imagenes/Documentos/imgsem/08/081a/081ae682-5b81-466f-b0bd-4af57538d2b8/50f88fec-d767-46dc-8996-257c3c6d2154.jpg, 0000102257/1721-harquitectes-casa-granollers-15.jpg
https://content.gnoss.ws/carq/https://content.gnoss.ws/carq//imagenes/Documentos/imgsem/08/081a/081ae682-5b81-466f-b0bd-4af57538d2b8/0aaeb70b-9a05-41ca-8a21-18a002e13600.jpg, 0000102257/1721-harquitectes-casa-granollers-16.jpg
https://content.gnoss.ws/carq/https://content.gnoss.ws/carq//imagenes/Documentos/imgsem/08/081a/081ae682-5b81-466f-b0bd-4af57538d2b8/f586843c-cc37-423e-8337-2ae52c29bdb1.jpg, 0000102257/1721-harquitectes-casa-granollers-17.jpg
https://content.gnoss.ws/carq/https://content.gnoss.ws/carq//imagenes/Documentos/imgsem/08/081a/081ae682-5b81-466f-b0bd-4af57538d2b8/26928d17-8b57-4c65-a70f-e503f30533cb.jpg, 0000102257/1721-harquitectes-casa-granollers-18.jpg
https://content.gnoss.ws/carq/https://content.gnoss.ws/carq//imagenes/Documentos/imgsem/08/081a/081ae682-5b81-466f-b0bd-4af57538d2b8/685b0d3c-b333-4e5d-a601-8b7227d1a794.jpg, 0000102257/1721-harquitectes-casa-granollers-19.jpg
https://content.gnoss.ws/carq/https://content.gnoss.ws/carq//imagenes/Documentos/imgsem/08/081a/081ae682-5b81-466f-b0bd-4af57538d2b8/a8f6eab8-b959-4657-b2e4-a86d9ee57ae6.jpg, 0000102257/1721-harquitectes-casa-granollers-20.jpg
https://content.gnoss.ws/carq/https://content.gnoss.ws/carq//imagenes/Documentos/imgsem/08/081a/081ae682-5b81-466f-b0bd-4af57538d2b8/7fb8ab67-8bfb-4981-abdb-8e7e1b188e25.jpg, 0000102257/1721-harquitectes-casa-granollers-21.jpg
https://content.gnoss.ws/carq//imagenes/Documentos/imgsem/08/081a/081ae682-5b81-466f-b0bd-4af57538d2b8/1c1e5280-12c7-4b26-bdbf-3757f8db1f03.jpg, 0000102257/1721-harquitectes-casa-granollers-29.jpg
https://content.gnoss.ws/carq//imagenes/Documentos/imgsem/08/081a/081ae682-5b81-466f-b0bd-4af57538d2b8/23923579-c13c-4e10-aac6-284d3f415623.jpg, 0000102257/1721-harquitectes-casa-granollers-34.jpg
https://content.gnoss.ws/carq//imagenes/Documentos/imgsem/08/081a/081ae682-5b81-466f-b0bd-4af57538d2b8/3bb5dd44-f0d9-456d-b1e3-6f0349994527.jpg, 0000102257/1721-harquitectes-casa-granollers-32.jpg
https://content.gnoss.ws/carq//imagenes/Documentos/imgsem/08/081a/081ae682-5b81-466f-b0bd-4af57538d2b8/9ec2a37d-5a1b-4b0d-bacf-8766e89d64e7.jpg, 0000102257/1721-harquitectes-casa-granollers-30.jpg
https://content.gnoss.ws/carq//imagenes/Documentos/imgsem/08/081a/081ae682-5b81-466f-b0bd-4af57538d2b8/c55bd67b-32f0-485a-9b3f-481bb5cb9da3.jpg, 0000102257/1721-harquitectes-casa-granollers-28.jpg
https://content.gnoss.ws/carq//imagenes/Documentos/imgsem/08/081a/081ae682-5b81-466f-b0bd-4af57538d2b8/472dbd66-e9ec-4319-a572-9f7cc0df5c2d.jpg, 0000102257/1721-harquitectes-casa-granollers-27_v2.jpg
https://content.gnoss.ws/carq//imagenes/Documentos/imgsem/08/081a/081ae682-5b81-466f-b0bd-4af57538d2b8/ea3c1459-fc0d-49d7-9f41-d6544f571e98.jpg, 0000102257/1721-harquitectes-casa-granollers-31.jpg
https://content.gnoss.ws/carq//imagenes/Documentos/imgsem/08/081a/081ae682-5b81-466f-b0bd-4af57538d2b8/56289d5a-5f3f-4936-860a-1d0bcc4f1a02.jpg, 0000102257/1721-harquitectes-casa-granollers-35.jpg
https://content.gnoss.ws/carq//imagenes/Documentos/imgsem/08/081a/081ae682-5b81-466f-b0bd-4af57538d2b8/ff89219a-fd5f-406e-987e-6ec702bc9286.jpg, 0000102257/1721-harquitectes-casa-granollers-33.jpg



