Cargando...
El contexto de digitalización y transformación del comercio está repercutiendo en el espacio urbano, donde el vaciamiento de muchos locales es imparable. Esta dinámica que empobrece la ciudad requiere una respuesta que aproveche el potencial que tienen estos espacios en contacto con la calle. Suponen una oportunidad para nuevos lugares de trabajo y ocio complementarios al tejido residencial. El espacio doméstico también bajará a la calle dando una respuesta especifica más allá de las habituales.
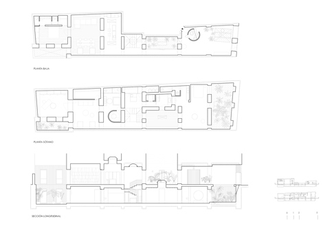
Casa A12 reúne espacio de trabajo + doméstico + espacio flexible, ubicada en un antiguo almacén comercial, cerrado años atrás. Es concebida como una mezcla entre la casa mediterránea –introvertida y volcada a un patio– y la casa fenomenológica descrita por Gaston Bachelard: un espacio regido por el poder de la imaginación. La eficacia funcional y climática de la primera convive con la capacidad de trascender la realidad propia de la segunda gracias a la luz, introducida en el atrio interior con lucernarios, huecos e incluso un patio inglés ajardinado que funciona como un oasis urbano, casi tropical, al que vuelca, oníricamente, todo el nivel inferior de la casa.
Desde el punto de vista funcional, el reto fue el de resolver las circulaciones, dado el programa amplio y el carácter lineal de la casa. La solución consistió en concatenar una serie de atmósferas diferentes cuyas cualidades particulares son el fruto de la conjugación libre de geometría, iluminación y color. En la paleta de acabados los tonos cálidos cohabitan con texturas más frías y de carácter industrial.
Información general
Casa A12
AÑO
Opción de visitas
Dirección
c/ de Apodaca, 12
28004 Madrid - Madrid
Latitud: 40.427328489
Longitud: -3.700446849
Clasificación
Superficie construida
Colaboradores
Sara Urriza Nolan (Arquitecta colaboradora)
Estudios de arquitectura participantes
Información aportada por
Lucas y Hernández Gil arquitectos
-
Lucas y Hernández-Gil Arquitectos -
Lucas y Hernández-Gil Arquitectos -
José Hevia -
José Hevia
Ubicación
https://content.gnoss.ws/carq/https://content.gnoss.ws/carq//imagenes/Documentos/imgsem/f0/f0d7/f0d75340-7589-4e63-92b6-b63dd0df2cf4/d7591012-6168-4715-8a66-dc04cbbc660e.jpg, 0000005194/1.JPG
https://content.gnoss.ws/carq/https://content.gnoss.ws/carq//imagenes/Documentos/imgsem/f0/f0d7/f0d75340-7589-4e63-92b6-b63dd0df2cf4/47495828-0ed8-48a0-9ac3-d4dd6ddbf0da.jpg, 0000005194/2.jpg
https://content.gnoss.ws/carq/https://content.gnoss.ws/carq//imagenes/Documentos/imgsem/f0/f0d7/f0d75340-7589-4e63-92b6-b63dd0df2cf4/962ee8c6-1ad3-430a-9c7f-306cb06dcd6b.jpg, 0000005194/3.jpg
https://content.gnoss.ws/carq/https://content.gnoss.ws/carq//imagenes/Documentos/imgsem/f0/f0d7/f0d75340-7589-4e63-92b6-b63dd0df2cf4/315f3b3f-a94f-4912-898c-0fc769506a7f.jpg, 0000005194/DOM0275-foto02.jpg
https://content.gnoss.ws/carq/https://content.gnoss.ws/carq//imagenes/Documentos/imgsem/f0/f0d7/f0d75340-7589-4e63-92b6-b63dd0df2cf4/75329252-1776-4a20-b5d9-404bb2b37acf.jpg, 0000005194/DOM0275-foto03.jpg
https://content.gnoss.ws/carq/https://content.gnoss.ws/carq//imagenes/Documentos/imgsem/f0/f0d7/f0d75340-7589-4e63-92b6-b63dd0df2cf4/a127294c-3eb2-4549-b58c-275e56375995.jpg, 0000005194/DOM0275-foto04.jpg
https://content.gnoss.ws/carq/https://content.gnoss.ws/carq//imagenes/Documentos/imgsem/f0/f0d7/f0d75340-7589-4e63-92b6-b63dd0df2cf4/29d1c949-7a8f-4d2f-92a1-b3e63d6381f3.jpg, 0000005194/DOM0275-foto05.jpg
https://content.gnoss.ws/carq/https://content.gnoss.ws/carq//imagenes/Documentos/imgsem/f0/f0d7/f0d75340-7589-4e63-92b6-b63dd0df2cf4/4b087a77-98b6-4fd8-afaa-e007f7ae69d9.jpg, 0000005194/DOM0275-foto06.jpg
https://content.gnoss.ws/carq/https://content.gnoss.ws/carq//imagenes/Documentos/imgsem/f0/f0d7/f0d75340-7589-4e63-92b6-b63dd0df2cf4/8d161566-eacf-42a5-b08e-016fae532173.jpg, 0000005194/DOM0275-foto07.jpg
https://content.gnoss.ws/carq/https://content.gnoss.ws/carq//imagenes/Documentos/imgsem/f0/f0d7/f0d75340-7589-4e63-92b6-b63dd0df2cf4/ecae256b-adc2-4e16-b3c4-c7c1d8c8f940.jpg, 0000005194/DOM0275-foto09.jpg
https://content.gnoss.ws/carq//imagenes/Documentos/imgsem/f0/f0d7/f0d75340-7589-4e63-92b6-b63dd0df2cf4/2e4abe71-8c64-4e7d-8b3f-54acc850ddb6.jpg, 0000005194/DOM0275-plano01.jpg
https://content.gnoss.ws/carq//imagenes/Documentos/imgsem/f0/f0d7/f0d75340-7589-4e63-92b6-b63dd0df2cf4/816f6c33-525e-4fa1-b253-8bb5341fff49.jpg, 0000005194/DOM0275-plano02.jpg
https://content.gnoss.ws/carq//imagenes/Documentos/imgsem/f0/f0d7/f0d75340-7589-4e63-92b6-b63dd0df2cf4/1a701442-8381-4331-8cb8-5312f545f955.jpg, 0000005194/DOM0275-plano03.jpg
https://content.gnoss.ws/carq//imagenes/Documentos/imgsem/f0/f0d7/f0d75340-7589-4e63-92b6-b63dd0df2cf4/45a8f0c6-3476-4b7f-9d83-b617b2231cb3.jpg, 0000005194/DOM0275-plano04.jpg
https://content.gnoss.ws/carq//imagenes/Documentos/imgsem/f0/f0d7/f0d75340-7589-4e63-92b6-b63dd0df2cf4/51d3a857-cdc6-4fcc-90d7-750f3a91d540.jpg, 0000005194/DOM0275-plano05.jpg





