Cargando...
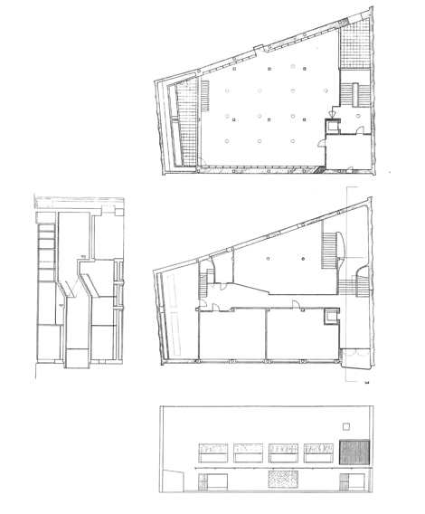
El edificio consta de tres plantas y se desarrolla en un solar de forma trapezoidal: uno de sus lados con frente a calle, dos de ellos medianeros con parcelas colindantes y, al fondo, con el patio de un edificio con frente a una calle paralela.
El volumen edificado deja un patio trasero en todo el ancho del solar con un fondo aproximado de cuatro metros. En la planta baja se alojan la sala de exposiciones, un salón de usos múltiples, un despacho y una cafetería; esta última se dispone de modo que puede tener un horario independiente respecto al resto del centro, contando también con una entrada de servicio propia.
La sala de exposiciones, de doble altura, se ilumina a través de un gran ventanal que da a la calle Mayor. Desde la sala de exposiciones se accede a la planta segunda a través de una escalera principal, con un amplio rellano intermedio sobre la misma sala que sirve de ampliación visual así como de uso.
Otra escalera secundaria arranca desde el zaguán para dar mayor flexibilidad de uso. En esta planta se proyectan tres aulas, una zona de información y un pequeño despacho.
Información general
Casa de la Cultura de Ciempozuelos
AÑO
Opción de visitas
Dirección
c/ Mayor, 27
28350 Ciempozuelos - Madrid
Latitud: 40.158240566
Longitud: -3.620459787
Clasificación
Superficie construida
Arquitectos participantes
Información aportada por
EUmies Award
-
Carlos Puente Fernández -
Carlos Puente Fernández -
EUmies Award
Ubicación
Itinerarios
https://content.gnoss.ws/carq/https://content.gnoss.ws/carq//imagenes/Documentos/imgsem/60/6043/6043d6e2-f3ae-4764-9407-4101661d5d1d/120c9d53-1478-458a-aed7-8d882573fc31.jpg, 0000003872/1671-11459.jpg
https://content.gnoss.ws/carq/https://content.gnoss.ws/carq//imagenes/Documentos/imgsem/60/6043/6043d6e2-f3ae-4764-9407-4101661d5d1d/5725101f-aa9c-4ced-bc6d-99c16ea4eded.jpg, 0000003872/casa cultura 2.jpg
https://content.gnoss.ws/carq/https://content.gnoss.ws/carq//imagenes/Documentos/imgsem/60/6043/6043d6e2-f3ae-4764-9407-4101661d5d1d/46b4e3ee-4422-468a-a63b-eed4e389106a.jpeg, 0000003872/casa cultura.jpeg
https://content.gnoss.ws/carq/https://content.gnoss.ws/carq//imagenes/Documentos/imgsem/60/6043/6043d6e2-f3ae-4764-9407-4101661d5d1d/0ab9c5f7-b4c6-40d1-aa25-50fc33422a29.jpg, 0000003872/1671-11455.jpg
https://content.gnoss.ws/carq/https://content.gnoss.ws/carq//imagenes/Documentos/imgsem/60/6043/6043d6e2-f3ae-4764-9407-4101661d5d1d/d9e19bfc-d9d9-4035-80f4-53750a0ee304.jpg, 0000003872/1671-11456.jpg
https://content.gnoss.ws/carq/https://content.gnoss.ws/carq//imagenes/Documentos/imgsem/60/6043/6043d6e2-f3ae-4764-9407-4101661d5d1d/ddcbb32c-9c47-42a4-946e-e659ac3434a6.jpg, 0000003872/1671-11458.jpg
https://content.gnoss.ws/carq/https://content.gnoss.ws/carq//imagenes/Documentos/imgsem/60/6043/6043d6e2-f3ae-4764-9407-4101661d5d1d/227873ac-e808-4a38-8117-13372fbfe475.jpg, 0000003872/1671-11457.jpg
https://content.gnoss.ws/carq//imagenes/Documentos/imgsem/60/6043/6043d6e2-f3ae-4764-9407-4101661d5d1d/a5427b76-f504-4b75-a212-8beac4d63719.png, 0000003872/plantas .png
https://content.gnoss.ws/carq//imagenes/Documentos/imgsem/60/6043/6043d6e2-f3ae-4764-9407-4101661d5d1d/b253517f-b894-444c-95f1-48193a4e62a0.png, 0000003872/plantas y secciones .png




