Cargando...
Las palabras “hotelitos”, “chalets” son una de tantas expresiones nefastas que han contribuido a que esas primeras o segundas casas en las proximidades de las grandes poblaciones se hayan llenado de cursilerías. No se diga ya los chalets adosados que aparecen encarimados albergando a tantos jóvenes matrimonios.
Por otro lado, una casa en el campo tiene ya, de por sí y por herencia, una gran seriedad y gran presencia. Están claras las raíces de las que hemos de partir. Naturalmente, hoy existen pensamientos contradictorios entre una casa de campo heredada y otra proyectada hoy, con todas las posibilidades tanto constructivas como las que corresponden a las exigencias actuales de la vida y con las que hoy contamos.
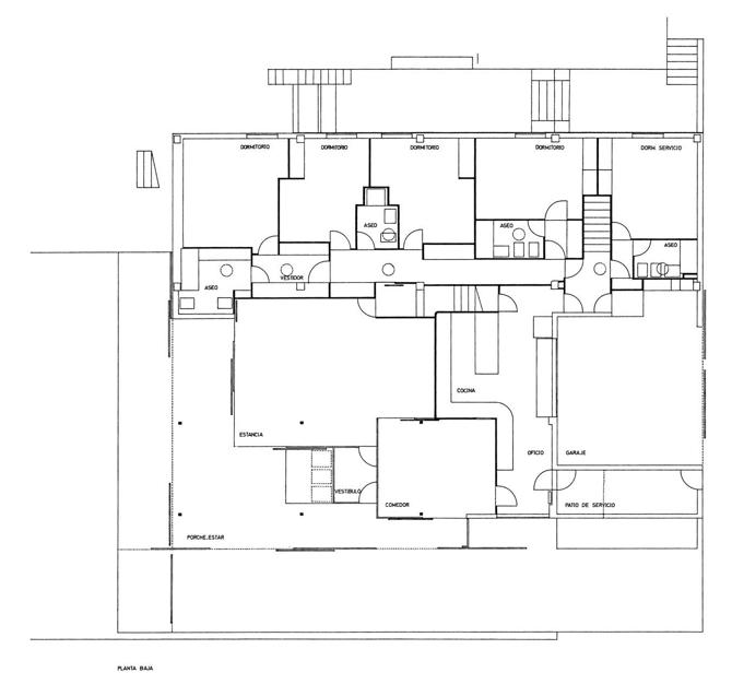
La parcela de esta casa es un rectángulo con la dimensión mayor perpendicular a la carretera, donde tiene el acceso, rectángulo que cae en su lado opuesto sobre el único gran paisaje de la cuenca del río Jarama. La cota más alta está en esa cornisa sobre el paisaje: ahí estará la casa. Por el buen clima en primavera, verano y otoño, se dispone la zona de estar muy abierta al exterior. Terrazas enlazadas en distintas alturas. Estudio del conjunto muy en relación con el paisaje.
Construcción: estructura mixta de hormigón y acero. Cerramientos de ladrillo con revestimiento de plaqueta. Lo bueno de hoy día es que podemos hacer casa abierta, abierta, que se cierre, cierre. Parece que es una tontería pero así es, esa es la gran novedad. Estar dentro de tu casa y que en ella penetre el jardín, que no pises la raya al pasar sobre ese dentro-fuera. Vienen después todas esas otras cosas de situación de cota para vistas, dominio, recogimiento, etc.; esas otras cosas de orientación y tantas otras de todo: seguridad.
Es importantísimo sentirse bien dentro de toda ella, en cada rincón. Hablamos de vez en cuando del peso específico de una construcción para un determinado fin. Hay que dejar que la casa flote, suba y baje y quede en su cota; la casa es un sólido flotando en un magma y ella sola fijará esa cota. Es precioso ser observador del sube y baja hasta el edificio final. ¡Gracias casa!
Información general
Casa Guzmán
AÑO
Opción de visitas
Dirección
call.n del Jarama, 6
28120 Santo Domingo - Madrid
Latitud: 40.64380797191584
Longitud: -3.5705490486489397
Clasificación
Superficie construida
Arquitectos participantes
Información aportada por
Fundación Alejandro de la Sota
Enlaces web
Ubicación
https://content.gnoss.ws/carq/https://content.gnoss.ws/carq//imagenes/Documentos/imgsem/a0/a0df/a0df073c-6099-4f94-8246-52dc51490706/c1f5abb6-0494-459a-962a-1ec04fb2299c.jpg, 0000022662/72_C_FO_D_1_lg.jpg
https://content.gnoss.ws/carq/https://content.gnoss.ws/carq//imagenes/Documentos/imgsem/a0/a0df/a0df073c-6099-4f94-8246-52dc51490706/40012f62-e425-4c08-9213-d7d8ad2f331d.jpg, 0000022662/72_C_FO_D_20_lg.jpg
https://content.gnoss.ws/carq//imagenes/Documentos/imgsem/a0/a0df/a0df073c-6099-4f94-8246-52dc51490706/d3513c1b-ef29-40d7-90d5-c96b6bd8033e.jpg, 0000022662/72_C_PL_A_3_lg.jpg



