Cargando...
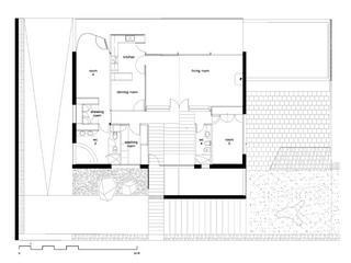
En una zona montañosa a unos 3 km de la costa mediterránea construimos esta villa anclada en el terreno, proyectándose hacia el mar. La construcción fue concebida como un gran soporte de hormigón, casi como un accidente geográfico que opera según sus propias reglas, con el fin de crear una posición privilegiada en su entorno.
Dado que los edificios son mucho más expresivos durante la construcción que cuando están terminados, este edificio se presenta deliberadamente inacabado, con la presencia de la textura original de los muros externos de hormigón, y la estructura metálica y las losas del piso que forman el volumen interior. Sin embargo, las aberturas en la pared han recibido un acabado más delicado, con vidrieras, como gemas incrustadas en una roca maciza, creando paisajes personalizados en el interior.
La casa responde a su entorno con cuatro escalas diferentes: al oeste, frente a la vía de acceso, es un volumen de una sola planta que define una escala doméstica (característica de una casa pequeña) con un techo inclinado cubierto de rocas. Hacia el norte, el volumen se eleva desde la rampa de acceso al garaje de forma plana y compacta para crear un lugar para la movilidad. Hacia el sur, la piscina (que se puede cerrar parcialmente) se desliza debajo del soporte escalonado con una terraza para tomar el sol a su alrededor. Al este, frente al mar, la villa es metálica y transparente, un edificio casi urbano de tres plantas, con vistas al mar.
Información general
Casa Hortal
AÑO
Opción de visitas
Dirección
c/ Santa Isabel, 72
43880 El Vendrell - Tarragona
Latitud: 41.19404
Longitud: 1.51156
Clasificación
Materiales construcción
Superficie construida
Premios
Estudios de arquitectura participantes
Información aportada por
Guallart Architects
EUMies Award
Enlaces web
-
Guallart Architects, vía EUMies Award -
Guallart Architects, vía EUMies Award -
EUMies Award -
Vicente Guallart
Ubicación
https://content.gnoss.ws/carq/https://content.gnoss.ws/carq//imagenes/Documentos/imgsem/fb/fbc3/fbc3320a-5dac-4334-a717-ac962ec1ff1e/6b91f631-181e-42a6-b0f6-549c84d9f6d3.jpeg, 0000003350/ACUE2005_19_CASA_Cantarella_01.jpeg
https://content.gnoss.ws/carq/https://content.gnoss.ws/carq//imagenes/Documentos/imgsem/fb/fbc3/fbc3320a-5dac-4334-a717-ac962ec1ff1e/87d9c054-2159-4497-a2a2-2d12cfb33fe0.jpg, 0000003350/ACUE2005_19_CASA_Guallart_02.jpg
https://content.gnoss.ws/carq/https://content.gnoss.ws/carq//imagenes/Documentos/imgsem/fb/fbc3/fbc3320a-5dac-4334-a717-ac962ec1ff1e/304f4e55-2e5a-4604-9f03-c1f35b0dee08.jpg, 0000003350/552-4572.jpg
https://content.gnoss.ws/carq/https://content.gnoss.ws/carq//imagenes/Documentos/imgsem/fb/fbc3/fbc3320a-5dac-4334-a717-ac962ec1ff1e/21a4f83c-8742-41e5-93be-6af4a38ee04b.jpg, 0000003350/552-4573.jpg
https://content.gnoss.ws/carq/https://content.gnoss.ws/carq//imagenes/Documentos/imgsem/fb/fbc3/fbc3320a-5dac-4334-a717-ac962ec1ff1e/f6d6dca1-3ca5-4147-abf3-be345cc3b5c4.jpg, 0000003350/552-4574.jpg
https://content.gnoss.ws/carq/https://content.gnoss.ws/carq//imagenes/Documentos/imgsem/fb/fbc3/fbc3320a-5dac-4334-a717-ac962ec1ff1e/0e59c733-c699-4267-978c-96e8ac4fbca1.jpg, 0000003350/552-4575.jpg
https://content.gnoss.ws/carq/https://content.gnoss.ws/carq//imagenes/Documentos/imgsem/fb/fbc3/fbc3320a-5dac-4334-a717-ac962ec1ff1e/83c27840-99c3-4eaa-92e7-67da994823c5.jpg, 0000003350/552-4576.jpg
https://content.gnoss.ws/carq//imagenes/Documentos/imgsem/fb/fbc3/fbc3320a-5dac-4334-a717-ac962ec1ff1e/18ceda9b-f150-4913-86e3-e002a15424a9.jpg, 0000003350/552-4577.jpg
https://content.gnoss.ws/carq//imagenes/Documentos/imgsem/fb/fbc3/fbc3320a-5dac-4334-a717-ac962ec1ff1e/fadaf0ce-55e3-47ab-8edc-aac7fd896fbf.jpg, 0000003350/552-4578.jpg





