Cargando...
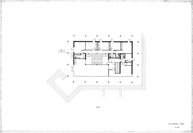
Vivienda unifamiliar aislada en el límite de Motrico, su mejor aportación al tipo residencial privado y referente de una arquitectura que mezcla tradición y modernidad. Sobre un solar en pendiente plantea una vivienda unifamiliar bajo una gran cubierta y organizada en torno a un patio que resuelve los problemas derivados de la orientación norte de la parcela. “Se adoptó la tipología de patio central por varias razones; por una parte para resolver el problema de la orientación y las vistas, ya que el magnífico panorama sobre la costa está orientado a norte y el lucernario del patio permitiría una entrada del sol al estar; por otra parte, se quería que el edificio estuviese cerrado en sí mismo y constituyese un elemento autónomo”.
“Se quiso hacer una arquitectura muy pegada al terreno, con un sentido de vivienda-refugio. Para ello se utilizó la topografía, se creó una única plataforma exterior, y se dispuso el estar en una cota más baja que esta plataforma, con objeto de conseguir que el alero de la cubierta tuviese una altura de 2,20 m”.
“El alero de la cubierta queda soportado por columnas dispuestas con un ritmo muy ordenado. Estas columnas tienen un capitel metálico que enlaza de una manera lógica con la estructura de la cubierta, que también es metálica, y hace que la cubierta adquiera independencia de sus soportes”.
Santiago Roqueta, Conversaciones (Blume,1979)
Información general
Casa Imanolena
AÑO
Estado
Obra protegida
Opción de visitas
Dirección
Galdona Auzoa, 19
20830 Mutriku - Gipuzkoa
Latitud: 43.312932
Longitud: -2.384624
Clasificación
Superficie construida
Arquitectos participantes
Colaboradores
Información aportada por
Fundación DOCOMOMO Ibérico
Archivo Peña Ganchegui
Ubicación
Itinerarios
https://content.gnoss.ws/carq/https://content.gnoss.ws/carq//imagenes/Documentos/imgsem/a4/a497/a497fa3a-abb7-4185-b615-b7d25940ba8d/b9a16d9c-621d-4dfc-a3ce-e85409310ea5.jpg, 0000017485/APG.S1.1964D001.05 - NOROESTE.jpg
https://content.gnoss.ws/carq//imagenes/Documentos/imgsem/a4/a497/a497fa3a-abb7-4185-b615-b7d25940ba8d/1195af7e-efda-43fd-acfc-08e3b704b842.jpg, 0000017485/APG.S1.1964D001.11.002 - SECCION Y ALZADOS.jpg
https://content.gnoss.ws/carq//imagenes/Documentos/imgsem/a4/a497/a497fa3a-abb7-4185-b615-b7d25940ba8d/0c5f857f-f4ca-4bf1-8dd1-4fb365109751.jpg, 0000017485/APG.S1.1964D001.11.001 - PLANTA.jpg



