Cargando...
Escenario doméstico:
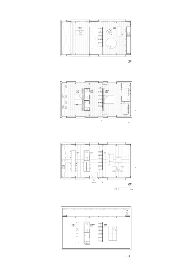
Hoy en día se reclama una arquitectura con una flexibilidad más allá de lo estrictamente funcional. Se imagina una vivienda esencial, en la que los elementos servidores se reducen al máximo en favor de espacios servidos libres y abiertos, buscando que la adaptabilidad de su uso a lo largo del tiempo sea máxima. Al exterior, esta intención se traduce en un volumen compacto, abierto a norte y sur de forma que la vista lejana de la sierra de Madrid se convierte en el lienzo de fondo de todas las estancias vivideras. Los materiales, con muro exterior de granito de Colmenar, lienzos blancos, lamas venecianas y cubierta a cuatro aguas de pizarra, junto con el ciprés existente y la lámina de agua que acompaña el conjunto, reivindican los elementos que conformaban las viviendas originales de la colonia Mirasierra al norte de Madrid.
Confort y consumo cero:
El diseño de la pieza atiende a criterios de ahorro energético y sostenibilidad para acercarse al ideal de una vivienda energética de consumo energético casi cero. Por un lado, de cara a reducir la demanda, se implementan estrategias pasivas tales como la compacidad, el aislamiento, la ausencia de puentes térmicos, la protección solar, una buena orientación, la iluminación natural o la ventilación cruzada de todas las estancias. Por otro lado, las estrategias activas ayudan a minimizar el consumo al máximo, basándose en el empleo de la energía geotérmica para ACS y un suelo radiante/refrescante que, unido al uso de un recuperador entálpico termodinámico para la ventilación mecánica, se encargan de alcanzar el confort climático óptimo en el interior de la vivienda.
Información general
Casa Mirasierra
AÑO
Opción de visitas
Dirección
c/ Valle de Laciana, 16
28034 Madrid - Madrid
Latitud: 40.48840195
Longitud: -3.705244944
Clasificación
Superficie construida
Estudios de arquitectura participantes
Información aportada por
Estudio Juarranz
-
Estudio Juarranz
Ubicación
https://content.gnoss.ws/carq/https://content.gnoss.ws/carq//imagenes/Documentos/imgsem/43/43c3/43c37327-bfe3-4800-a8b7-6f3450212fbf/0e39e41f-d8f1-4b69-98e9-aa16b89fcee8.jpg, 0000005723/1.jpg
https://content.gnoss.ws/carq/https://content.gnoss.ws/carq//imagenes/Documentos/imgsem/43/43c3/43c37327-bfe3-4800-a8b7-6f3450212fbf/f6936b4b-e974-4f81-b54d-30339fc1b38d.jpg, 0000005723/3.jpg
https://content.gnoss.ws/carq/https://content.gnoss.ws/carq//imagenes/Documentos/imgsem/43/43c3/43c37327-bfe3-4800-a8b7-6f3450212fbf/112d3a7e-413c-4d12-9854-c5e4d4390085.jpg, 0000005723/2.jpg
https://content.gnoss.ws/carq//imagenes/Documentos/imgsem/43/43c3/43c37327-bfe3-4800-a8b7-6f3450212fbf/cdb4d77a-3335-4853-b7b0-4b721f84de28.jpg, 0000005723/axonometria.jpg
https://content.gnoss.ws/carq//imagenes/Documentos/imgsem/43/43c3/43c37327-bfe3-4800-a8b7-6f3450212fbf/46082852-cc63-4005-ac8d-fe57d3af19de.jpg, 0000005723/z-floors 2018.jpg
https://content.gnoss.ws/carq//imagenes/Documentos/imgsem/43/43c3/43c37327-bfe3-4800-a8b7-6f3450212fbf/9abbdb71-a8e1-4b3f-93b2-c1fd9d62cd59.jpg, 0000005723/z-seccion.jpg
https://content.gnoss.ws/carq//imagenes/Documentos/imgsem/43/43c3/43c37327-bfe3-4800-a8b7-6f3450212fbf/ace90017-14b8-47bb-9309-076879c65578.jpg, 0000005723/planta baja.jpg
https://content.gnoss.ws/carq//imagenes/Documentos/imgsem/43/43c3/43c37327-bfe3-4800-a8b7-6f3450212fbf/1677b919-7d7b-48b1-9902-e7f3bc44f32b.jpg, 0000005723/z-z 2017 07 24.jpg




