Cargando...
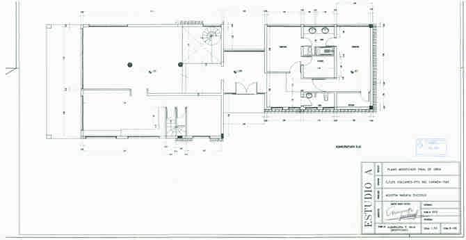
La vivienda se desarrolla en tres plantas, y cuenta con cuatro dormitorios con baños individuales y vestidores. Salones de grandes dimensiones conectados con la terraza y la piscina climatizada y jardines. Sala de música, biblioteca, amplia cocina-comedor, áreas de servicio, despensa, lavandería y sala de máquinas y trasteros.
Las maravillosas vistas panorámicas, junto a la flora autóctona y exótica de sus jardines, que contienen especies vegetales típicas del lugar (veroles, tajinastes, aloe vera etc.), la convierten en un lugar único y paradisíaco. Un diseño concebido desde un carácter minimalista que integra austeridad y jerarquía. Su diseño reproduce las formas de los antiguos “bancales”, que eran construcciones en forma longitudinal que se utilizaban para contener las tierras de sembradíos.
En su interior los espacios continuos y de grandes dimensiones están dotados de grandes ventanales que permiten obtener vistas excepcionales al mar (viéndose inclusive las islas de Lobos y Fuerteventura).
Los materiales utilizados para su construcción son el hierro, en todas las barandillas y escaleras; y la madera para los suelos. Granito y mármol para el revestimiento de algunos baños y cristal en remates de exquisito buen gusto.
Información general
Casa Nadaya
AÑO
Opción de visitas
Dirección
c/ los Volcanes, 41
35510 Puerto del Carmen - Las Palmas
Latitud: 28.926539475
Longitud: -13.67511652
Clasificación
Sistema constructivo
Tradicional
Superficie construida
Arquitectos participantes
Información aportada por
Agustín Alberto Nadaya Zuccolo
Colegio de Arquitectos de Lanzarote (COALZ)
Ubicación
Itinerarios
https://content.gnoss.ws/carq/https://content.gnoss.ws/carq//imagenes/Documentos/imgsem/e3/e391/e3918e71-e801-4fdf-b8f3-6641021a4e66/3e604188-ef46-489f-bccf-0a3de07f3593.jpg, 0000029075/Imagen3.jpg
https://content.gnoss.ws/carq/https://content.gnoss.ws/carq//imagenes/Documentos/imgsem/e3/e391/e3918e71-e801-4fdf-b8f3-6641021a4e66/c15e842a-733d-4990-8941-305292fc370a.jpg, 0000029075/1.jpg
https://content.gnoss.ws/carq/https://content.gnoss.ws/carq//imagenes/Documentos/imgsem/e3/e391/e3918e71-e801-4fdf-b8f3-6641021a4e66/5eee45be-0ccb-4a43-ac57-61bdcc4f309b.jpg, 0000029075/4.jpg
https://content.gnoss.ws/carq/https://content.gnoss.ws/carq//imagenes/Documentos/imgsem/e3/e391/e3918e71-e801-4fdf-b8f3-6641021a4e66/ae7f2012-4f32-4502-9d28-9c247ec6e0eb.jpg, 0000029075/5.jpg
https://content.gnoss.ws/carq/https://content.gnoss.ws/carq//imagenes/Documentos/imgsem/e3/e391/e3918e71-e801-4fdf-b8f3-6641021a4e66/f3c75a8c-b75d-4721-abb1-5aaabe850dea.jpg, 0000029075/9.jpg
https://content.gnoss.ws/carq/https://content.gnoss.ws/carq//imagenes/Documentos/imgsem/e3/e391/e3918e71-e801-4fdf-b8f3-6641021a4e66/d6728bae-57c0-42f1-9957-6dff14823476.jpg, 0000029075/8.jpg
https://content.gnoss.ws/carq//imagenes/Documentos/imgsem/e3/e391/e3918e71-e801-4fdf-b8f3-6641021a4e66/e5a67e3f-8b47-43f2-95f8-ec7a4b0d886b.jpg, 0000029075/plano.jpg



