Cargando...
En la calle de Sa Pobla donde se sitúa la casa proyectada aún encontramos edificaciones tradicionales que comparten todas la misma tipología: una gran apertura de acceso en planta baja y un macizo superior. Se trata de una composición de fachada tan sencilla como efectiva.
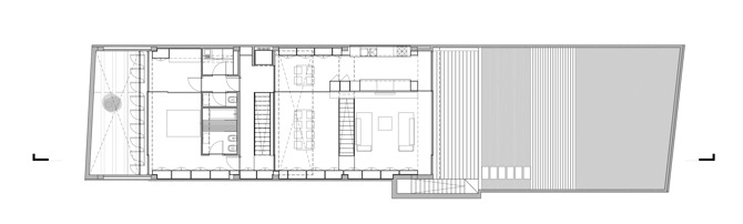
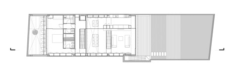
La propuesta de la casa Portassa* se enmarca en el entorno urbano cercano con una fachada respetuosa con la tradición y valiente en su diseño y definición. Una lectura atenta y respetuosa con el lugar no significa tener que renunciar a un lenguaje contemporáneo. Dentro del vacío creado en el tejido urbano se desarrollan los diferentes espacios habitables, buscando un acuerdo confortable con el sol. La sección garantiza la privacidad, la ventilación cruzada y las relaciones visuales entre el interior y el exterior.
Cada una de las plantas busca conseguir el recorrido visual más largo posible, que se alarga des el patio de la calle hasta el huerto posterior, en sentido longitudinal, y que recorre las medianeras como límite del espacio habitable. La suavidad de sus acabados y materiales, además de toda la superficie acristalada pretenden un estar y un vivir amable.
*Portassa: Puerta grande que da desde la calle al jardín o patio descubierto de ciertas casas antiguas.
Información general
Casa Portassa
AÑO
Opción de visitas
Dirección
07420 Sa Pobla, Mallorca - Illes Balears
Clasificación
Sistema constructivo
Estructura prefabricada placas alveolares
Superficie construida
Estudios de arquitectura participantes
Información aportada por
Colegio Oficial de Arquitectos de las Islas Baleares (COAIB)
Sagristà Simó Arquitectes
-
Planta Baja - Sagristà Simó Arquitectes -
Sección Longitudinal - Sagristà Simó Arquitectes -
Carlos Manuel González Baute -
Carlos Manuel González Baute
https://content.gnoss.ws/carq/https://content.gnoss.ws/carq//imagenes/Documentos/imgsem/00/0085/00853f40-b431-4a02-b615-5f3c70930ebe/01b64ddf-3048-4dd9-9304-25a8c7a458e1.jpg, 0000042276/39.jpg
https://content.gnoss.ws/carq/https://content.gnoss.ws/carq//imagenes/Documentos/imgsem/00/0085/00853f40-b431-4a02-b615-5f3c70930ebe/5317bdff-b6a0-4dc2-85ab-644d589d0630.jpg, 0000042276/15.jpg
https://content.gnoss.ws/carq/https://content.gnoss.ws/carq//imagenes/Documentos/imgsem/00/0085/00853f40-b431-4a02-b615-5f3c70930ebe/36072743-bccc-4c2d-9e73-ac77e5a9e387.jpg, 0000042276/53.jpg
https://content.gnoss.ws/carq/https://content.gnoss.ws/carq//imagenes/Documentos/imgsem/00/0085/00853f40-b431-4a02-b615-5f3c70930ebe/25b863ee-0233-4563-ae25-8d48532d5625.jpg, 0000042276/02.jpg
https://content.gnoss.ws/carq/https://content.gnoss.ws/carq//imagenes/Documentos/imgsem/00/0085/00853f40-b431-4a02-b615-5f3c70930ebe/7d6f3665-af4c-4dfe-9650-c7becc1e4e68.jpg, 0000042276/25.jpg
https://content.gnoss.ws/carq/https://content.gnoss.ws/carq//imagenes/Documentos/imgsem/00/0085/00853f40-b431-4a02-b615-5f3c70930ebe/996caf21-3bc0-44d1-ab73-a0e596634aea.jpg, 0000042276/56.jpg
https://content.gnoss.ws/carq/https://content.gnoss.ws/carq//imagenes/Documentos/imgsem/00/0085/00853f40-b431-4a02-b615-5f3c70930ebe/1d676830-f51b-42c2-bca2-eb68179a48ab.jpg, 0000042276/52.jpg
https://content.gnoss.ws/carq/https://content.gnoss.ws/carq//imagenes/Documentos/imgsem/00/0085/00853f40-b431-4a02-b615-5f3c70930ebe/e6ee4f07-c334-4799-b7e3-2d3758c048cc.jpg, 0000042276/05.jpg
https://content.gnoss.ws/carq/https://content.gnoss.ws/carq//imagenes/Documentos/imgsem/00/0085/00853f40-b431-4a02-b615-5f3c70930ebe/9b446d4c-56d6-45d2-b55c-87e2f5143b19.jpg, 0000042276/36.jpg
https://content.gnoss.ws/carq/https://content.gnoss.ws/carq//imagenes/Documentos/imgsem/00/0085/00853f40-b431-4a02-b615-5f3c70930ebe/1e9283b7-e39e-489e-bad9-1b7125e8fe7c.jpg, 0000042276/26.jpg
https://content.gnoss.ws/carq/https://content.gnoss.ws/carq//imagenes/Documentos/imgsem/00/0085/00853f40-b431-4a02-b615-5f3c70930ebe/c8b66ac1-8103-46d5-85a7-35d6d1ee0622.jpg, 0000042276/51.jpg
https://content.gnoss.ws/carq/https://content.gnoss.ws/carq//imagenes/Documentos/imgsem/00/0085/00853f40-b431-4a02-b615-5f3c70930ebe/dbedc467-6f0c-4716-92d9-f4c279a0fe65.jpg, 0000042276/(01).jpg
https://content.gnoss.ws/carq/https://content.gnoss.ws/carq//imagenes/Documentos/imgsem/00/0085/00853f40-b431-4a02-b615-5f3c70930ebe/5a6c880c-c6a9-4710-a136-438f9b72e62a.jpg, 0000042276/50.jpg
https://content.gnoss.ws/carq/https://content.gnoss.ws/carq//imagenes/Documentos/imgsem/00/0085/00853f40-b431-4a02-b615-5f3c70930ebe/4dddbcc8-77e2-44d8-8909-6d6957614c4b.jpg, 0000042276/38.jpg
https://content.gnoss.ws/carq/https://content.gnoss.ws/carq//imagenes/Documentos/imgsem/00/0085/00853f40-b431-4a02-b615-5f3c70930ebe/19de3611-b4d1-4d6d-b255-b2bd603b2452.jpg, 0000042276/49.jpg
https://content.gnoss.ws/carq/https://content.gnoss.ws/carq//imagenes/Documentos/imgsem/00/0085/00853f40-b431-4a02-b615-5f3c70930ebe/c0abfda5-1d35-4fc0-bd63-b71770489885.jpg, 0000042276/55.jpg
https://content.gnoss.ws/carq/https://content.gnoss.ws/carq//imagenes/Documentos/imgsem/00/0085/00853f40-b431-4a02-b615-5f3c70930ebe/32cd0bd2-1989-40ae-92dc-8f350e94c89a.jpg, 0000042276/44.jpg
https://content.gnoss.ws/carq/https://content.gnoss.ws/carq//imagenes/Documentos/imgsem/00/0085/00853f40-b431-4a02-b615-5f3c70930ebe/ee7c8dfd-e59c-472f-a640-8ee987535fa4.jpg, 0000042276/21.jpg
https://content.gnoss.ws/carq/https://content.gnoss.ws/carq//imagenes/Documentos/imgsem/00/0085/00853f40-b431-4a02-b615-5f3c70930ebe/53667bce-6c64-446b-bd09-627a9dc4b487.jpg, 0000042276/12.jpg
https://content.gnoss.ws/carq/https://content.gnoss.ws/carq//imagenes/Documentos/imgsem/00/0085/00853f40-b431-4a02-b615-5f3c70930ebe/c0808487-e0a1-4533-a7e7-ea8eee7a805b.jpg, 0000042276/19.jpg
https://content.gnoss.ws/carq/https://content.gnoss.ws/carq//imagenes/Documentos/imgsem/00/0085/00853f40-b431-4a02-b615-5f3c70930ebe/adbd1b25-7b5c-4970-a94d-f8ab537edee0.jpg, 0000042276/09.jpg
https://content.gnoss.ws/carq/https://content.gnoss.ws/carq//imagenes/Documentos/imgsem/00/0085/00853f40-b431-4a02-b615-5f3c70930ebe/c51b5260-8948-4537-aae2-e722cbb4a915.jpg, 0000042276/37.jpg
https://content.gnoss.ws/carq/https://content.gnoss.ws/carq//imagenes/Documentos/imgsem/00/0085/00853f40-b431-4a02-b615-5f3c70930ebe/b05c9757-59fc-4898-b944-27291ca14460.jpg, 0000042276/54.jpg
https://content.gnoss.ws/carq/https://content.gnoss.ws/carq//imagenes/Documentos/imgsem/00/0085/00853f40-b431-4a02-b615-5f3c70930ebe/5090a6c6-3230-4ebd-b019-0bf11d118fa7.jpg, 0000042276/18.jpg
https://content.gnoss.ws/carq/https://content.gnoss.ws/carq//imagenes/Documentos/imgsem/00/0085/00853f40-b431-4a02-b615-5f3c70930ebe/2950fbe9-718f-4436-81f8-5f3f82213022.jpg, 0000042276/35.jpg
https://content.gnoss.ws/carq/https://content.gnoss.ws/carq//imagenes/Documentos/imgsem/00/0085/00853f40-b431-4a02-b615-5f3c70930ebe/be655840-6aea-49e6-b5ff-f5164d963dbc.jpg, 0000042276/28.jpg
https://content.gnoss.ws/carq/https://content.gnoss.ws/carq//imagenes/Documentos/imgsem/00/0085/00853f40-b431-4a02-b615-5f3c70930ebe/fb4c3541-7886-4722-b872-4cebee5be732.jpg, 0000042276/33.jpg
https://content.gnoss.ws/carq/https://content.gnoss.ws/carq//imagenes/Documentos/imgsem/00/0085/00853f40-b431-4a02-b615-5f3c70930ebe/b7032b7f-2532-4303-9bcf-6efbec8a4dfc.jpg, 0000042276/31.jpg
https://content.gnoss.ws/carq/https://content.gnoss.ws/carq//imagenes/Documentos/imgsem/00/0085/00853f40-b431-4a02-b615-5f3c70930ebe/81d54696-e6dc-45e2-9897-3926ad5a2942.gif, 0000042276/esquema-conceptual.gif
https://content.gnoss.ws/carq/https://content.gnoss.ws/carq//imagenes/Documentos/imgsem/00/0085/00853f40-b431-4a02-b615-5f3c70930ebe/7f23f70e-dc0d-4d68-a079-a5216e2ecf6e.jpg, 0000042276/47.jpg
https://content.gnoss.ws/carq//imagenes/Documentos/imgsem/00/0085/00853f40-b431-4a02-b615-5f3c70930ebe/1944c794-66d7-4c6b-9f97-cf4602ba1a3d.jpg, 0000042276/005.jpg
https://content.gnoss.ws/carq//imagenes/Documentos/imgsem/00/0085/00853f40-b431-4a02-b615-5f3c70930ebe/3989fda8-602e-483f-8650-a6eb30c254eb.jpg, 0000042276/001.jpg
https://content.gnoss.ws/carq//imagenes/Documentos/imgsem/00/0085/00853f40-b431-4a02-b615-5f3c70930ebe/3afc6e7c-10fc-403d-bb4c-2ae41e6a75de.jpg, 0000042276/004.jpg
https://content.gnoss.ws/carq//imagenes/Documentos/imgsem/00/0085/00853f40-b431-4a02-b615-5f3c70930ebe/c7169fb1-b7b7-4021-bb26-c134751672bd.jpg, 0000042276/002.jpg
https://content.gnoss.ws/carq//imagenes/Documentos/imgsem/00/0085/00853f40-b431-4a02-b615-5f3c70930ebe/76250f09-0607-4497-922b-9f1e3085af27.jpg, 0000042276/003.jpg





