Cargando...
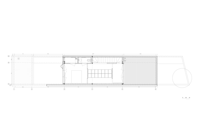
El proyecto es una vivienda unifamiliar y una casa de dos plantas en el casco antiguo de Sant Feliu de Llobregat.
Se prestó atención a la orientación norte del jardín existente y a la necesidad de distribuir el programa en tres plantas; la organización del programa que se propone ofrece un patio-terraza en el centro del plano que permite iluminar y ventilar el interior de la casa correctamente.
Todos los espacios están organizados en bandas laterales de servicios que concentran el “servidor espacios” con una distribución fija en el tiempo para permitir liberar los espacios “servidos” con una distribución abierta y flexible.
Información general
Casa unifamiliar entre medianeras en Sant Feliu de Llobregat
AÑO
Opción de visitas
Dirección
c/ Joan Maragall, 88
08980 Sant Feliu de Llobregat - Barcelona
Latitud: 41.379961431
Longitud: 2.0489011144
Clasificación
Sistema constructivo
Entramado de acero.
Superficie construida
Estudios de arquitectura participantes
Información aportada por
DataAE
Enlaces web
Ubicación
https://content.gnoss.ws/carq/https://content.gnoss.ws/carq//imagenes/Documentos/imgsem/55/5537/55379df0-6ff9-4dd6-98a8-11eda3bfbc57/0f9ac06c-2e3f-4cb8-8248-5ff0615cb364.jpg, 0000004232/FAD2007_09_MEDIANERAS_GOULA_01.jpg
https://content.gnoss.ws/carq/https://content.gnoss.ws/carq//imagenes/Documentos/imgsem/55/5537/55379df0-6ff9-4dd6-98a8-11eda3bfbc57/4010c9f3-21c5-4c38-b434-a43b2f30467d.jpg, 0000004232/FAD2007_09_MEDIANERAS_GOULA_02.jpg
https://content.gnoss.ws/carq//imagenes/Documentos/imgsem/55/5537/55379df0-6ff9-4dd6-98a8-11eda3bfbc57/66076f44-d50b-4e7c-87cf-f16a2fd4e7e0.jpg, 0000004232/esquemas.jpg
https://content.gnoss.ws/carq//imagenes/Documentos/imgsem/55/5537/55379df0-6ff9-4dd6-98a8-11eda3bfbc57/c8efa5e1-efba-4168-8dcb-512fdb1a52ac.jpg, 0000004232/planta_segunda.jpg
https://content.gnoss.ws/carq//imagenes/Documentos/imgsem/55/5537/55379df0-6ff9-4dd6-98a8-11eda3bfbc57/ae75eee7-48dd-4b40-8596-013c0fb1ce42.jpg, 0000004232/seccion_transversal.jpg
https://content.gnoss.ws/carq//imagenes/Documentos/imgsem/55/5537/55379df0-6ff9-4dd6-98a8-11eda3bfbc57/9a6016df-f81d-480b-8f73-acb46aaea9e4.jpg, 0000004232/planta_baja.jpg
https://content.gnoss.ws/carq//imagenes/Documentos/imgsem/55/5537/55379df0-6ff9-4dd6-98a8-11eda3bfbc57/cd7b49e7-6955-45b9-be98-d34f3e6c904a.jpg, 0000004232/planta_primera.jpg



