Cargando...
Estaba esa escultura de Joel Shapiro de 1974. Un perfil de bronce oscuro simulando un terreno artificial en forma de “L” atornillado por una de las puntas a la pared de la sala de exposiciones. Una pieza de pequeñas dimensiones que explica la fascinación por las bases.
Sobre este balcón volado Shapiro sitúa una pequeña pieza de hierro negro muy densa y pesada para su dimensión que describe el icono de una casa con sus dos cubiertas. Un balcón suspendido de una pared, una primera construcción que explica cómo las mesas sirven para disponer cosas sobre ellas O bajo ellas.
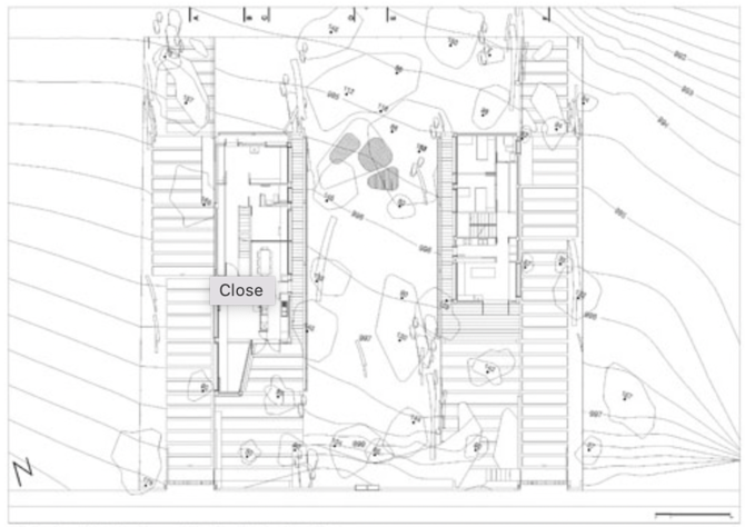
Ideas de la misma fuerza expresiva habíamos encontrado en la serie Salto al vacío de Ángeles Marcos (Puente 1986). Las casa M&M se construyeron con este mismo principio. El proyecto de las casas M&M, como las llamamos en el despacho, se remonta a 1999 . Unos amigos nos ponen en contacto con tres arqueólogos, profesores todos del Departamento de Prehistoria de la Universidad de Bellaterra, que querían hacerse una casa. Llevaban varios años viviendo juntos. Desde los laboratorios de la universidad donde tienen sus despachos veían la riera de Malena, un espacio natural protegido, y, algo más allá, algunas viviendas entre los pinos de una urbanización. Nos pidieron que fuésemos con ellos a visitar la zona.
El proyecto empezó con la elección del solar. Desde esta primera visita, el bosque se fue convirtiendo a lo largo de todo un año en nuestro refugio. Teníamos un encargo para una gran casa pero decidimos hacer una casa en dos: una casa porque comparten un corredor de 10 m de ancho que se sitúa entre las dos y al cual miran los balcones de ambas casas, un espacio donde el bosque de la riera, casi tan salvaje como nos lo encontramos el primer día que visitamos el sitio, penetra en el solar.
Información general
Casas M&M
AÑO
Opción de visitas
Dirección
c/ Mercè Rodoreda, 11B
08193 Cerdanyola del Valles - Barcelona
Latitud: 41.496723
Longitud: 2.091866
Clasificación
Superficie construida
Estudios de arquitectura participantes
Información aportada por
VII BEAU
EUMies Award
-
Eva Serrats y José Miguel Roldán -
Roldan & Berengué Arquitectos -
Eva Serrats
Ubicación
https://content.gnoss.ws/carq/https://content.gnoss.ws/carq//imagenes/Documentos/imgsem/28/284f/284f6a35-11da-456c-8bdd-8aa63c90528b/c428808e-05c3-452a-ae45-356cd2189eba.jpg, 0000003404/429-3699.jpg
https://content.gnoss.ws/carq/https://content.gnoss.ws/carq//imagenes/Documentos/imgsem/28/284f/284f6a35-11da-456c-8bdd-8aa63c90528b/9f2dbf8e-9143-4cd3-ae5f-19979f40f344.jpg, 0000003404/3.jpg
https://content.gnoss.ws/carq/https://content.gnoss.ws/carq//imagenes/Documentos/imgsem/28/284f/284f6a35-11da-456c-8bdd-8aa63c90528b/1f5fc86e-a299-415a-bbc5-129f25ed8503.jpg, 0000003404/4.jpg
https://content.gnoss.ws/carq/https://content.gnoss.ws/carq//imagenes/Documentos/imgsem/28/284f/284f6a35-11da-456c-8bdd-8aa63c90528b/f87dbff8-d880-4b7e-8d6f-660d7acf5276.jpg, 0000003404/2.jpg
https://content.gnoss.ws/carq/https://content.gnoss.ws/carq//imagenes/Documentos/imgsem/28/284f/284f6a35-11da-456c-8bdd-8aa63c90528b/0fa9d2a5-3b17-43d4-8c20-fc615d8df636.jpg, 0000003404/1.jpg
https://content.gnoss.ws/carq//imagenes/Documentos/imgsem/28/284f/284f6a35-11da-456c-8bdd-8aa63c90528b/849991e7-d505-47f2-97f5-7cdee5851b95.png, 0000003404/planta m m.png





