Cargando...
Ejercicio de rehabilitación de un palacete del Siglo XIX situado en el Paseo de la Castellana, Madrid. Original Casa Palacio de don Pablo del Puerto, fue ampliado y rehabilitado en 1903 por los arquitectos Miguel de Olabarría y Benito González del Valle, hecho que le ha permitido convertirse en uno de los pocos palacios de la Castellana que han llegado hasta nuestros días.
La situación emblemática de la edificación es acorde al enorme interés histórico-artístico del inmueble, protegido y catalogado por patrimonio como Bien de Interés Cultural. El proyecto propone revertir una serie de actuaciones desafortunadas producidas en los últimos 40 años, recuperando la tipología original en planta, restaurando fielmente los elementos históricos en el interior y hacia la Castellana, y organizando el nuevo programa de oficinas en torno a dos patios interiores ajardinados.
La rehabilitación se propone como una “activación” ambiental del inmueble para su uso como oficinas para la administración pública. El potencial de la inercia térmica en los gruesos muros de piedra y ladrillo, los patios ventilados y ajardinados, o los torreones simétricos como nuevos exutorios de aire caliente, se completan con una nueva fachada sur invernadero y una pérgola de madera en cubierta como elemento de sombra.
En cuanto a sistemas activos de aportación de energías renovables, el proyecto cuenta con una planta fotovoltaica integrada en cubierta y una instalación geotérmica bajo el aparcamiento existente. El cuidado y detalle en la construcción de la envolvente térmica ha conducido a la obtención de la exigente certificación Passivhaus EnerPHit, la primera en un edificio del Siglo XIX en Madrid. El proyecto ha obtenido además las certificaciones LEED Platino y la certificación AIS (5*) en accesibilidad.
La Rehabilitación del inmueble Castellana 19 (Madrid) demuestra cómo el esfuerzo de la administración pública en la renovación de edificios patrimoniales, puede llevarse a cabo desde criterios de recuperación urbana, calidad arquitectónica, rigor histórico y máxima exigencia ambiental.
Diseño Urbano: transiciones. Rehabilitado y ampliado una planta en 1903, el edificio presenta un único acceso desde el número 19 del Paseo de la Castellana, una de las arterias más emblemáticas de Madrid. La fachada principal, de escala monumental, interesante ornamentación escultórica, y simetría armónica, responde al espíritu cosmopolita de finales del Siglo XIX y principios del XX, cuando la ciudad iniciaba la transformación evolutiva de las grandes capitales europeas.
Se propone el máximo respeto por la edificación actual, reduciendo al mínimo imprescindible la intervención sobre la estructura existente. De este modo, el patio de parcela permanece intacto, restaurándose con sumo cuidado y discreción tanto la galería original interior como la fachada principal. Se persigue de este modo la formación de un frente urbano continuo y armonioso, un frontispicio monumental pero oculto gran parte del año por el portentoso arbolado del Paseo.
Solo durante el invierno, el sol revelará el vibrante juego de luces y sombras sobre las fachadas.
Existen únicamente dos elementos visibles desde el exterior: la fachada principal al Paseo y la medianera sur, en realidad “fachada” al jardín protegido como BIC perteneciente al palacete Castellana 17, actual Fiscalía General del Estado. Si bien la restauración de la fachada histórica se ha llevado a cabo desde criterios de recuperación patrimonial, cabe señalar la enorme especialización de los oficios (madera, piedra, estucos, esculturas de zinc, etc.) o la sutileza en la elección de la gama cromática, discreta y acorde a la edificación original, pero sofisticada en cuanto a la variedad de tonos solo apreciables para el ojo atento. El almohadillado horizontal gira y se prolonga sobre la fachada-medianera sur, que introduce un gran hueco acristalado de geometría cuadrada formalizando una enorme doble ventana: la exterior visible, formada por vidrios translúcidos con junta abierta para permitir la ventilación de la cámara; y la interior y envolvente térmica, que formaliza el frente interior de las oficinas. Entre ambas, estores motorizados sombrean automáticamente la fachada en condiciones de verano. Por la noche, este gran hueco equipado se convierte en un fanal de luz cálida sobre las fuentes y jardines de la Fiscalía General del Estado. Maravillas del destino, esta entidad ocupará finalmente ambos inmuebles (Castellana 17 y 19).
La iluminación artificial del patrimonio resulta siempre un tema espinoso. En este caso, existía la necesidad de iluminar la fachada a Castellana durante las primeras horas de la tarde-noche. Las nuevas reconversiones en uso hotelero o comercial, iluminan en exceso las fachadas históricas, exponiéndolas a un aspecto artificioso -blanquecino o amarillento- a base de “flashes” lineales procedentes de focos ubicados como gárgolas contemporáneas sobre las aceras. En este caso, se ha estudiado una iluminación discreta de planta primera a cuarta, integrando muy pequeñas luminarias de temperatura de color variable (Lamp). La posición oculta entre los balcones y balaustradas existentes, o bien alojadas en el interior de miradores y portalón histórico protegido, crean un resultado tan sutil, que los diversos tonos de blancos, cremas y grises aligerados son aún perceptibles durante el anochecer.
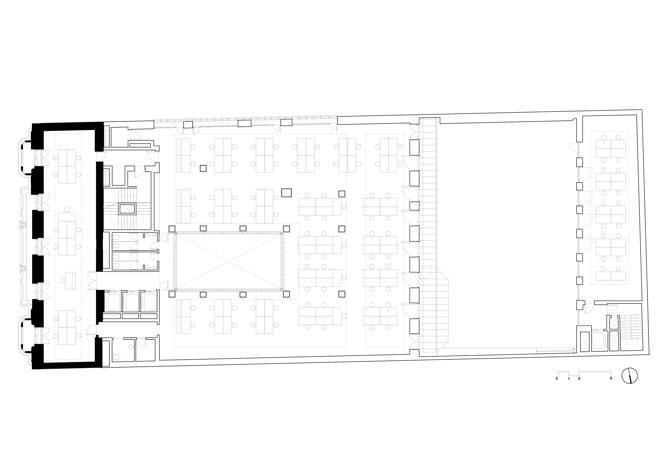
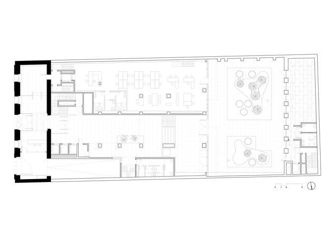
Funcionamiento general e integración global del programa. La planta baja integra el control de accesos y la zona pública y de eventos de la edificación. Desde la puerta principal, un espacioso vestíbulo conecta el Paseo de la Castellana con el patio interior ajardinado y el jardín posterior, configurando entre ellos el espacio “Entre Patios”, equipado con un graderío para eventos o descanso informal. El patio central está dotado de un gran lucernario que conecta visualmente todos los niveles al tiempo que ilumina de forma natural el centro del edificio: la sección longitudinal revela en este caso las principales estrategias de proyecto desde el punto de vista programático.
La planta tipo de oficinas favorece la flexibilidad en el uso: la posición del núcleo de comunicación vertical permite maximizar la ocupación del espacio, favoreciendo el alquiler de plantas completas a un solo inquilino, o bien su división en dos, tres o hasta cuatro superficies independientes. El proyecto presenta plantas diáfanas a disposición de la propiedad para su posterior división u organización en función de la demanda.
Un pequeño volumen posterior se recupera como cafetería en planta baja y biblioteca en sus plantas primera y segunda. Destacar la conexión de este volumen con el jardín interior y el espacio “Entre-patios”, formando un área pública continua y cualificada en planta baja.
La planta de cubierta se dispone como un moderno roof-top urbano con vistas sobre la Castellana hacia el norte, con el edificio La Unión y El Fénix, Torre Picasso y las Cuatro Torres en la lejanía, o las recién ampliadas Torres de Colón hacia el Sur: la cubierta “mirador” y la aspiración atemporal de conquistar el paisaje. Entre áreas pavimentadas y cubiertas verdes, una pérgola de madera equipa la necesaria dotación audiovisual, al tiempo que genera sombra durante las horas centrales del día tanto sobre la cubierta, como sobre el lucernario.
La reactivación ambiental del patrimonio. El proyecto de arquitectura se presenta como una síntesis de todos los análisis, estudios e investigaciones previas. Al análisis histórico, urbano y arquitectónico propio del edificio histórico que nos ocupa, se cuenta en este caso con un riguroso análisis climático de la zona. El objetivo del proyecto sería pues responder con una solución sintética, unitaria y efectiva desde el despliegue de estrategias urbanas, arquitectónicas y ambientales a un tiempo. Interesa la consideración de este último apartado, teniendo en cuenta no solo las soluciones inmediatas en materias importantes como la eficiencia energética, sostenibilidad o la salud de las personas: la evolución del clima en los últimos años permite pensar en la arquitectura como un activo ambiental, un recurso habilitante que genera energía, recupera agua, ofrece refugio y plantea una posibilidad para la vida en condiciones adversas e impredecibles. En esta línea, la propuesta cuenta con una sucesión coordinada de soluciones de bajo impacto ambiental y mitigación del cambio climático:
Sistemas pasivos: (1) envolvente de alta eficiencia energética y estanqueidad; (2) iluminación natural inducida a través de fachadas, patios acristalados y lucernarios; (3) ventilación natural efecto chimenea a través del patio central y el invernadero sur; (4) inercia térmica y acumulación de calor en muros de carga existentes en crujía protegida; (5) cubiertas vegetales y/o ventiladas; (6) enfriamiento adiabático a través de la membrana vegetal del patio; (7) invernadero o “caldera solar” en medianería Sur; (8) sistemas de protección ante la radiación en verano, como estores, celosías o contraventanas; (9) jardín bioclimático interior.
Sistemas activos: (1) instalación de geotermia activa; (2) sistema de recuperación de calor; (3) aerotermia; (4) instalación fotovoltaica en cubierta como sistema de producción de energía renovable. Esta hibridación de sistemas optimiza la producción energética y permite reducir la demanda de energía casi un 40% (respecto al edificio de referencia del CTE), así como minimizar el consumo de espacio de las instalaciones.
Materiales y sistemas: construcción sencilla y eficaz, industrializada, de montaje rápido y bajo mantenimiento. Materiales certificados Cradle to Cradle o similar para asegurar una mínima huella ecológica; carpintería de madera UniOne con triple acristalamiento; solado de piedra natural en planta baja, acceso desde Castellana, escaleras y vestíbulos; mobiliario, estanterías y accesorios en madera para aportar calidez en la pequeña escala.
Análisis del ciclo de vida, incluyendo el estudio y la cuantificación de los impactos ambientales asociados a la vida de todos los materiales y productos, así como su reutilización o reciclaje en su vida futura.
Edificio Passivhaus: la estrategia de proyecto planteada en el concurso permite certificar el proyecto mediante el método de rehabilitación Passivhaus (EnerPhit), presentando la ventaja de poder conseguir unos valores de referencia mucho más exigentes que los correspondientes a una rehabilitación convencional, tanto desde el punto de vista de la demanda (frío y calor) como de las infiltraciones de aire.
Gestión sostenible del agua: recuperación de agua de lluvia mediante aljibe en planta sótano, incluyendo micro-depuradora para la reutilización de agua de lluvia; cubierta verde como instrumento de recuperación y alivio de la red de saneamiento; ahorro de agua potable: utilización de grifería y sanitarios de máxima eficiencia; ahorro de agua para riego: selección de vegetación con bajas necesidades hídricas, sistemas de retención del agua de lluvia, sistemas de riego por micro-goteo con sensor de humedad.
Certificaciones ambientales y otros reconocimientos. PASSIVHAUS EnerPHit, la primera en un edificio del Siglo XIX en Madrid; LEED Platino; AIS, en su máxima calificación posible (5*).
Información general
Castellana 19
AÑO
Opción de visitas
Dirección
P.º de la Castellana, 19
28046 Madrid - Madrid -Madrid
Latitud: 40.429006
Longitud: -3.690253
Clasificación
Superficie construida
Arquitectos participantes
Colaboradores
J. C. Arroyo, Eduardo Medina, Jesús Álvarez (Ingeniería de Estructuras)
J.A Alonso (Proskene), Alberto de Paredes (Dirección de Ejecución de Obra)
Ignacio Lucini, Mar García, Maria Jesús Conde (Certificación AIS)
Antonio Gómez, Diego Martínez, VAND (Certificación Passivhaus (diseño))
Q-Safety (Coordinación de Seguridad y Salud)
CBRe Bovis (Project Management)
Ejestru (Suministro y montaje de estructura de CLT)
CBRe Bovis (Certificación LEED)
JG. Ernesto García (Ingeniería de Instalaciones)
Información aportada por
MADC & Partners
Ubicación
https://content.gnoss.ws/carq/https://content.gnoss.ws/carq//imagenes/Documentos/imgsem/ad/ad71/ad715cf1-dea5-4db0-957c-df32417540b7/90b25c4c-7dfc-4aaa-9068-c208e283669b.jpg, 0000108035/2465-1343.jpg
https://content.gnoss.ws/carq/https://content.gnoss.ws/carq//imagenes/Documentos/imgsem/ad/ad71/ad715cf1-dea5-4db0-957c-df32417540b7/208d7301-4458-4a45-b82e-09d6cb33221b.jpg, 0000108035/2465-1363b.jpg
https://content.gnoss.ws/carq/https://content.gnoss.ws/carq//imagenes/Documentos/imgsem/ad/ad71/ad715cf1-dea5-4db0-957c-df32417540b7/d075093e-5de0-4721-a92d-d51989e8b163.jpg, 0000108035/2465-1311.jpg
https://content.gnoss.ws/carq/https://content.gnoss.ws/carq//imagenes/Documentos/imgsem/ad/ad71/ad715cf1-dea5-4db0-957c-df32417540b7/67f20e97-47b0-4e68-9588-600b4b3afa38.jpg, 0000108035/2465-1283.jpg
https://content.gnoss.ws/carq/https://content.gnoss.ws/carq//imagenes/Documentos/imgsem/ad/ad71/ad715cf1-dea5-4db0-957c-df32417540b7/80be9f3d-1756-4f86-8de8-db52d2ee1e05.jpg, 0000108035/2465-0015.jpg
https://content.gnoss.ws/carq/https://content.gnoss.ws/carq//imagenes/Documentos/imgsem/ad/ad71/ad715cf1-dea5-4db0-957c-df32417540b7/4244cc37-e491-457b-a3b2-c00bcaf2507e.jpg, 0000108035/2465-0928b.jpg
https://content.gnoss.ws/carq/https://content.gnoss.ws/carq//imagenes/Documentos/imgsem/ad/ad71/ad715cf1-dea5-4db0-957c-df32417540b7/e85e7c82-791a-4f23-a7fb-af57e7a668e1.jpg, 0000108035/2465-0802.jpg
https://content.gnoss.ws/carq/https://content.gnoss.ws/carq//imagenes/Documentos/imgsem/ad/ad71/ad715cf1-dea5-4db0-957c-df32417540b7/e93b5bb0-e901-43d0-9544-b5b3ed4e86c5.jpg, 0000108035/2465-0794b.jpg
https://content.gnoss.ws/carq/https://content.gnoss.ws/carq//imagenes/Documentos/imgsem/ad/ad71/ad715cf1-dea5-4db0-957c-df32417540b7/59ecd3eb-ab0c-448c-830c-6a7439ed8708.jpg, 0000108035/2465-0772b.jpg
https://content.gnoss.ws/carq/https://content.gnoss.ws/carq//imagenes/Documentos/imgsem/ad/ad71/ad715cf1-dea5-4db0-957c-df32417540b7/ab14e503-d047-4798-b2cc-cba0ec30f428.jpg, 0000108035/2465-0731b.jpg
https://content.gnoss.ws/carq/https://content.gnoss.ws/carq//imagenes/Documentos/imgsem/ad/ad71/ad715cf1-dea5-4db0-957c-df32417540b7/da2eb363-cce7-4d99-b4e0-35771cc281dc.jpg, 0000108035/2465-0706c.jpg
https://content.gnoss.ws/carq/https://content.gnoss.ws/carq//imagenes/Documentos/imgsem/ad/ad71/ad715cf1-dea5-4db0-957c-df32417540b7/1417ca72-9443-4610-8c0d-4ded2b553b35.jpg, 0000108035/2465-0671.jpg
https://content.gnoss.ws/carq/https://content.gnoss.ws/carq//imagenes/Documentos/imgsem/ad/ad71/ad715cf1-dea5-4db0-957c-df32417540b7/8a8505e3-b977-4dea-b80d-89a35ae8df7c.jpg, 0000108035/2465-0593b.jpg
https://content.gnoss.ws/carq/https://content.gnoss.ws/carq//imagenes/Documentos/imgsem/ad/ad71/ad715cf1-dea5-4db0-957c-df32417540b7/349b04b3-c2ea-4ab0-9033-8729e913294c.jpg, 0000108035/2465-0577.jpg
https://content.gnoss.ws/carq//imagenes/Documentos/imgsem/ad/ad71/ad715cf1-dea5-4db0-957c-df32417540b7/f6d9892a-44d5-4f88-ad78-480cfe210535.jpg, 0000108035/PLANTA TIPO.jpg
https://content.gnoss.ws/carq//imagenes/Documentos/imgsem/ad/ad71/ad715cf1-dea5-4db0-957c-df32417540b7/d32c069e-c7b8-498d-9aa8-fc9de83d6a25.jpg, 0000108035/PLANTA BAJA.jpg
https://content.gnoss.ws/carq//imagenes/Documentos/imgsem/ad/ad71/ad715cf1-dea5-4db0-957c-df32417540b7/1ebe5f01-dec1-4c29-a15d-d57f75cb861d.jpg, 0000108035/SECCIO769;N LONGITUDINAL.jpg
https://content.gnoss.ws/carq//imagenes/Documentos/imgsem/ad/ad71/ad715cf1-dea5-4db0-957c-df32417540b7/5765aaea-347a-4577-b724-f9b484d98d35.jpg, 0000108035/AXONOME769;TRICA DETALLE.jpg
https://content.gnoss.ws/carq//imagenes/Documentos/imgsem/ad/ad71/ad715cf1-dea5-4db0-957c-df32417540b7/bd221585-35eb-4785-8679-367c18d96160.jpg, 0000108035/AXONOME769;TRICA BIOCLIMA769;TICA.jpg
https://content.gnoss.ws/carq//imagenes/Documentos/imgsem/ad/ad71/ad715cf1-dea5-4db0-957c-df32417540b7/b963fac5-97c3-41bf-a93b-2d6f6fe90607.jpg, 0000108035/ALZADO SUR - FISCALI769;A.jpg
https://content.gnoss.ws/carq//imagenes/Documentos/imgsem/ad/ad71/ad715cf1-dea5-4db0-957c-df32417540b7/de9a1884-9997-439e-b4d1-4de984ffc19e.jpg, 0000108035/ALZADO ESTE - CASTELLANA.jpg
https://content.gnoss.ws/carq//imagenes/Documentos/imgsem/ad/ad71/ad715cf1-dea5-4db0-957c-df32417540b7/b1328664-ca76-4bc8-b49a-0aad6f7fc9ba.jpg, 0000108035/SITUACION.jpg
https://content.gnoss.ws/carq//imagenes/Documentos/imgsem/ad/ad71/ad715cf1-dea5-4db0-957c-df32417540b7/cffc48fa-ac0e-4fa5-a2bc-bc4ddff645bd.jpg, 0000108035/SECCIO769;N TRANSVERSAL.jpg



