Cargando...
El edificio proyectado para el CITTIB pretende ser una arquitectura estrictamente contemporánea entendiendo que, para serlo, ha de incorporar sin dudarlo todos los atributos de la experta arquitectura tradicional. Huyendo de todo lo que sea una aproximación a esta en base a cuestiones de imagen o tipología, el edificio proyectado asume el valor de la relación con el medio (entendida esta como una agradable conversación) como el mayor de los atributos de la tradición constructiva autóctona.
La inmediatez o prolongación del proceso de toma de contacto físico entre el ambiente interior y exterior da lugar a toda una arquitectura que permite servirse de las condiciones del clima en una manipulación intencionada del gradiente de influencias entre ambos ambientes. Patios, celosías, vuelos, muros, agua, vegetación y vidrio son los elementos que dan forma a esta arquitectura. Son los elementos que se encargan de propiciar una adecuada transición entre ambientes mediante sus efectos de luz, sombra, reflejo, transparencia, veladura...
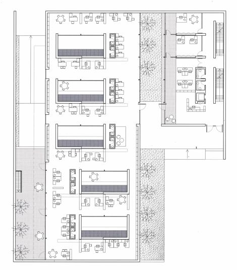
El edificio se descompone en dos cuerpos construidos. Cada uno de ellos agota una posibilidad: mientras el primero agota la altura permitida, el segundo se extiende sobre la parcela apurando el margen de ocupación. El acceso común, la relación en planta y sección y el rico juego de transparencias y vistas cruzadas, garantizan la unidad del conjunto.
Información general
Centro de Investigaciones y Tecnologías Turísticas de las Islas Baleares (CITTIB)
AÑO
Opción de visitas
Dirección
c/ Rita Levi,
07121 Palma - Illes Balears
Latitud: 39.6370627
Longitud: 2.6310928999
Clasificación
Superficie construida
Premios
Arquitectos participantes
Estudios de arquitectura participantes
Información aportada por
EUMies Award
Enlaces web
-
EUMies Award -
EUMies Award -
EUMies Award -
EUMies Award
Ubicación
https://content.gnoss.ws/carq/https://content.gnoss.ws/carq//imagenes/Documentos/imgsem/f7/f7cf/f7cf6e0e-b803-410d-8542-beaf6e404c61/d5fbac94-c846-4675-afde-d2757a42c86a.jpg, 0000003342/481-9560.jpg
https://content.gnoss.ws/carq/https://content.gnoss.ws/carq//imagenes/Documentos/imgsem/f7/f7cf/f7cf6e0e-b803-410d-8542-beaf6e404c61/5cb52026-c6c4-45f5-8f71-d22ccbdef0e8.jpg, 0000003342/481-9557.jpg
https://content.gnoss.ws/carq/https://content.gnoss.ws/carq//imagenes/Documentos/imgsem/f7/f7cf/f7cf6e0e-b803-410d-8542-beaf6e404c61/f9681b2a-ebd9-4b17-ba24-7f384363e65b.jpg, 0000003342/481-9558.jpg
https://content.gnoss.ws/carq/https://content.gnoss.ws/carq//imagenes/Documentos/imgsem/f7/f7cf/f7cf6e0e-b803-410d-8542-beaf6e404c61/16f537e2-8107-4626-95c1-7b8e90a95de4.jpg, 0000003342/481-9559.jpg
https://content.gnoss.ws/carq/https://content.gnoss.ws/carq//imagenes/Documentos/imgsem/f7/f7cf/f7cf6e0e-b803-410d-8542-beaf6e404c61/f21e89c5-d961-4252-9ce9-06acbb543f6c.jpg, 0000003342/481-9561.jpg
https://content.gnoss.ws/carq/https://content.gnoss.ws/carq//imagenes/Documentos/imgsem/f7/f7cf/f7cf6e0e-b803-410d-8542-beaf6e404c61/808aac57-6ceb-4b17-8e8f-903718b6016d.jpg, 0000003342/481-9563.jpg
https://content.gnoss.ws/carq//imagenes/Documentos/imgsem/f7/f7cf/f7cf6e0e-b803-410d-8542-beaf6e404c61/5715af42-bd9d-40eb-a4d5-41b2b502aede.jpg, 0000003342/Les-Illes-Balears-Investigation-(3).jpg
https://content.gnoss.ws/carq//imagenes/Documentos/imgsem/f7/f7cf/f7cf6e0e-b803-410d-8542-beaf6e404c61/854713a3-891e-4174-a722-76471dca51c0.jpg, 0000003342/Les-Illes-Balears-Investigation-(2).jpg





