Cargando...
El Centro de Natación de San Fernando de Henares completa una edificación deportiva municipal existente. El conjunto se desarrolla a lo largo del Paseo de los Pinos, en la proximidad del río Henares.
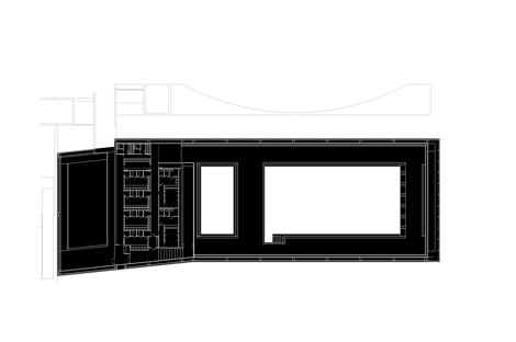
El Centro de Natación se organiza de acuerdo a una estructura lineal, disponiendo sucesivamente los diferentes elementos que lo configuran: vestíbulo de conexión, núcleo de vestuarios y aseos, vaso de enseñanza y vaso polivalente.
La fachada se construye como una cesta de piezas apiladas de hormigón prefabricado. Desde el interior se ven los árboles cercanos.
Información general
Centro de Natación
AÑO
Opción de visitas
Dirección
p.º de los Pinos,
28830 San Fernando de Henares - Madrid
Latitud: 40.431167388
Longitud: -3.523913906
Clasificación
Superficie construida
Colaboradores
Estudios de arquitectura participantes
Información aportada por
Tuñón y Albornoz Arquitectos
Enlaces web
-
Tuñón y Albornoz Arquitectos -
Tuñón y Albornoz Arquitectos -
Luis Asín -
Luis Asín
Ubicación
Itinerarios
https://content.gnoss.ws/carq/https://content.gnoss.ws/carq//imagenes/Documentos/imgsem/f1/f118/f11818d9-de92-4ee7-a3ac-b0863e5968a1/908416de-b9f7-4fed-8a97-ae7667daa985.jpg, 0000003259/centro natacion 1.jpg
https://content.gnoss.ws/carq/https://content.gnoss.ws/carq//imagenes/Documentos/imgsem/f1/f118/f11818d9-de92-4ee7-a3ac-b0863e5968a1/900a34a8-7cbd-4f20-9114-a661ce30a2f7.jpg, 0000003259/024. IMAGEN 1.jpg
https://content.gnoss.ws/carq/https://content.gnoss.ws/carq//imagenes/Documentos/imgsem/f1/f118/f11818d9-de92-4ee7-a3ac-b0863e5968a1/be0e6161-c4d7-4583-8c72-3076b251b38f.jpg, 0000003259/024. IMAGEN 2.jpg
https://content.gnoss.ws/carq/https://content.gnoss.ws/carq//imagenes/Documentos/imgsem/f1/f118/f11818d9-de92-4ee7-a3ac-b0863e5968a1/3c584f3f-a699-496f-b0ab-2093ae49d1c2.jpg, 0000003259/024. IMAGEN 3.jpg
https://content.gnoss.ws/carq/https://content.gnoss.ws/carq//imagenes/Documentos/imgsem/f1/f118/f11818d9-de92-4ee7-a3ac-b0863e5968a1/408d4b69-f041-4ddf-add9-2fd695c6aed3.jpg, 0000003259/024. IMAGEN 4.jpg
https://content.gnoss.ws/carq/https://content.gnoss.ws/carq//imagenes/Documentos/imgsem/f1/f118/f11818d9-de92-4ee7-a3ac-b0863e5968a1/31f55449-54e5-45db-b979-91d79d1c3928.jpg, 0000003259/024. IMAGEN 5.jpg
https://content.gnoss.ws/carq//imagenes/Documentos/imgsem/f1/f118/f11818d9-de92-4ee7-a3ac-b0863e5968a1/97060cfc-6bbb-4e11-b0b8-148e671250a1.jpg, 0000003259/024. AXO.jpg
https://content.gnoss.ws/carq//imagenes/Documentos/imgsem/f1/f118/f11818d9-de92-4ee7-a3ac-b0863e5968a1/91b20b3b-9f55-485b-ab71-e455ffb48a77.jpg, 0000003259/024. PLANTA.jpg
https://content.gnoss.ws/carq//imagenes/Documentos/imgsem/f1/f118/f11818d9-de92-4ee7-a3ac-b0863e5968a1/bdab659f-1227-4b5d-af99-afcc550be96e.jpg, 0000003259/024. CROQUIS.jpg





