Cargando...
Situado en un área degradada por el crecimiento urbano desaforado, el edificio responde a este no-lugar con una actitud de absoluta introversión. El proyecto se plantea como una caja de cristal dentro de otra de ladrillo.
La superficie exterior se trata como una piel de ladrillo tensada sobre un esqueleto de hormigón; la estructura tensante, desnuda al interior, se manifiesta al exterior en el arranque y la coronación del edificio. Grandes paños de celosías cierran a la calle los patios contenidos entre ambas cajas; esta estrategia permite obviar el problema de la composición de huecos en las fachadas ante la difícil competencia de escalas.
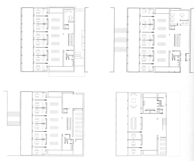
El desarrollo del programa requiere cuatro alturas: dos sobre el nivel de la calle de acceso y dos bajo la rasante. A pesar de la necesaria estratificación, el acceso por la planta intermedia hace posible que el paciente tenga que subir o bajar una planta para ser atendido.
Las consultas y despachos viven del patio ajardinado que surge entre la piel exterior del edificio y la fachada interior acristalada. La escalera –que taladra el edificio, arrastrando la luz al interior– organiza la separación entre las zonas de espera y las zonas de acceso y de servicio.
Información general
Centro de Salud en Azpilagaña
AÑO
Opción de visitas
Dirección
C/ Luis Morondo, 1
31006 Pamplona - Navarra
Latitud: 42.801715458
Longitud: -1.645226456
Clasificación
Materiales construcción
Superficie construida
Información aportada por
III BEAU
Enlaces web
Ubicación
Itinerarios
https://content.gnoss.ws/carq/https://content.gnoss.ws/carq//imagenes/Documentos/imgsem/38/3816/3816ca13-f283-4eef-8c76-4c80cf49bdea/3c9aaf0a-dd28-4fa1-81d1-35a89d249cd2.jpg, 0000004141/centro salud 1.jpg
https://content.gnoss.ws/carq/https://content.gnoss.ws/carq//imagenes/Documentos/imgsem/38/3816/3816ca13-f283-4eef-8c76-4c80cf49bdea/7d6efa0b-d921-4214-97b1-4634ff6c8169.jpg, 0000004141/centro salud 2.jpg
https://content.gnoss.ws/carq/https://content.gnoss.ws/carq//imagenes/Documentos/imgsem/38/3816/3816ca13-f283-4eef-8c76-4c80cf49bdea/5a29213d-6bec-4f62-b53f-089dfec8237c.jpg, 0000004141/centro salud 3.jpg
https://content.gnoss.ws/carq//imagenes/Documentos/imgsem/38/3816/3816ca13-f283-4eef-8c76-4c80cf49bdea/89760f0a-9bfc-47ad-bb9b-222f956d0ebd.jpg, 0000004141/Centro de Salud en Azpilagana p1.jpg



