Cargando...
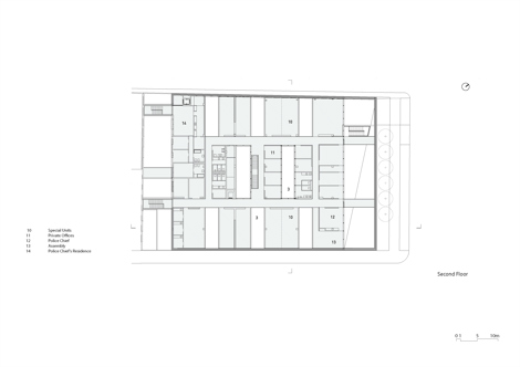
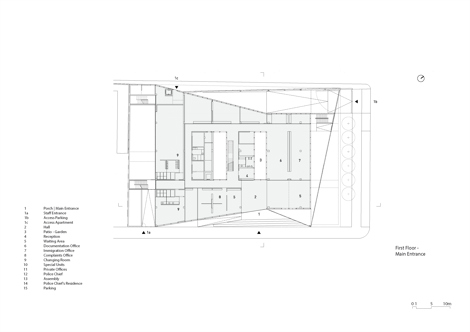
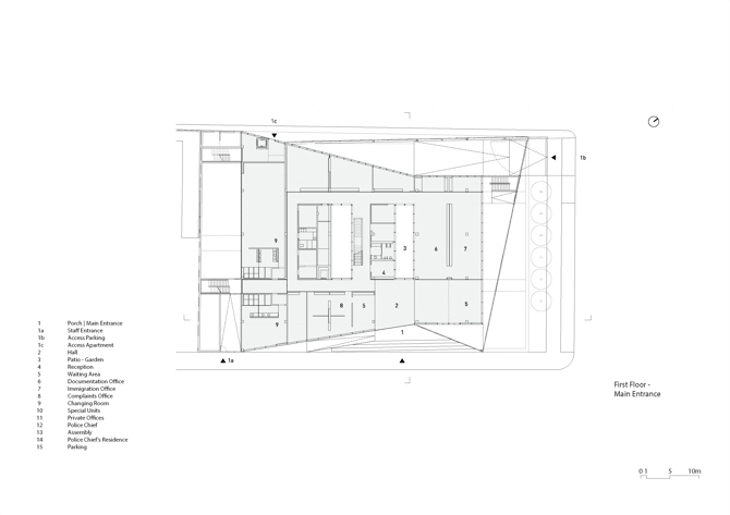
El edificio se sitúa en un barrio dormitorio caracterizado por un tejido urbano de edificación marginal, de crecimiento explosivo, desarrollado sin planificación inicial y carente de equipamientos públicos. En este contexto, el edificio completa el volumen aparente de la manzana mediante una envolvente continua que define los límites de la parcela en planta alta y se abre en planta baja, ofreciendo un espacio de encuentro urbano.
El volumen suspendido completamente cerrado hacia el exterior define la escala institucional del edificio, mientras protege en su interior un espacio luminoso e introvertido que se adapta a la naturaleza reservada de los trabajos de investigación policial. En planta baja se disuelven los límites entre interior y exterior en un espacio continuo, trasparente y abierto, prolongación del espacio urbano.
Transparencia y cercanía respecto a la sociedad es el nuevo concepto de Centro Integral de Seguridad como espacio abierto a la colectividad.
Información general
Centro Integral de Seguridad Santa Lucía
AÑO
Opción de visitas
Dirección
c/ de Escorial, 9
35110 Vecindario - Las Palmas
Latitud: 27.85039677
Longitud: -15.443763
Clasificación
Sistema constructivo
Estructura mixta: sistema porticado de hormigón armado y cerchas metálicas de gran canto; envolvente de paneles de aluminio, vidrio colado y carpintería de aluminio.
Superficie construida
Colaboradores
Samuel de Wilde Calero (Arquitecto)
Edward Lynch (Arquitecto técnico)
Reveriego & Asociados Arquitectos S.L. (Cálculo de estructuras)
Estudios de arquitectura participantes
Información aportada por
Colegio Oficial de Arquitectos de Gran Canaria (COAGC)
GPY Arquitectos
Enlaces web
-
Nivel 1 - GPY Arquitectos -
Nivel 0 - entrada - GPY Arquitectos -
Patio interior - Joaquín Ponce de León -
Patio interior (nivel 1) - Efraín Pintos
Ubicación
Itinerarios
https://content.gnoss.ws/carq/https://content.gnoss.ws/carq//imagenes/Documentos/imgsem/40/409f/409fefab-0eed-41f3-b267-e75c1d21c6fb/3353d39a-3646-41d9-88e5-b7b8288c7621.jpg, 0000028451/01_161_EP_90X3864-HDR(3).jpg
https://content.gnoss.ws/carq/https://content.gnoss.ws/carq//imagenes/Documentos/imgsem/40/409f/409fefab-0eed-41f3-b267-e75c1d21c6fb/ff8a14a4-b310-4af2-806c-7a15da7000e8.jpg, 0000028451/05_161_EP_90X3678-HDR(3).jpg
https://content.gnoss.ws/carq/https://content.gnoss.ws/carq//imagenes/Documentos/imgsem/40/409f/409fefab-0eed-41f3-b267-e75c1d21c6fb/70f7dc50-19e2-4752-b0d6-18c114600a96.jpg, 0000028451/03_161_JP_588 de 611__.jpg
https://content.gnoss.ws/carq/https://content.gnoss.ws/carq//imagenes/Documentos/imgsem/40/409f/409fefab-0eed-41f3-b267-e75c1d21c6fb/bbc7cada-3dd4-4eaf-a1f9-2d928745dea2.jpg, 0000028451/02_161_EP_90X3927-HDR(3).JPG
https://content.gnoss.ws/carq/https://content.gnoss.ws/carq//imagenes/Documentos/imgsem/40/409f/409fefab-0eed-41f3-b267-e75c1d21c6fb/26733271-6712-4013-9dba-c76b7723c400.jpg, 0000028451/04_161_JP_419 de 611R.jpg
https://content.gnoss.ws/carq/https://content.gnoss.ws/carq//imagenes/Documentos/imgsem/40/409f/409fefab-0eed-41f3-b267-e75c1d21c6fb/00c97660-2194-43a9-99cf-3e566d5292cc.jpg, 0000028451/07_161_EP_90X4029-HDR(3).jpg
https://content.gnoss.ws/carq/https://content.gnoss.ws/carq//imagenes/Documentos/imgsem/40/409f/409fefab-0eed-41f3-b267-e75c1d21c6fb/12a9d224-7205-4a2b-a33f-4dabd3cda7cc.jpg, 0000028451/06_161_EP_90X3696-HDR(3).jpg
https://content.gnoss.ws/carq//imagenes/Documentos/imgsem/40/409f/409fefab-0eed-41f3-b267-e75c1d21c6fb/f31f0b3f-fd49-4072-96b2-c5c2af519645.jpg, 0000028451/161_08_NIVEL 0.jpg
https://content.gnoss.ws/carq//imagenes/Documentos/imgsem/40/409f/409fefab-0eed-41f3-b267-e75c1d21c6fb/fadab7c4-75a7-4c38-867e-6ca55d8320a3.jpg, 0000028451/161_08_NIVEL 1.jpg
https://content.gnoss.ws/carq//imagenes/Documentos/imgsem/40/409f/409fefab-0eed-41f3-b267-e75c1d21c6fb/0d934dce-e680-4635-8795-bd299b3bc74a.jpg, 0000028451/161_08_SECCION_LONGITUDINAL.jpg
https://content.gnoss.ws/carq//imagenes/Documentos/imgsem/40/409f/409fefab-0eed-41f3-b267-e75c1d21c6fb/9057e39a-70e9-4949-9ab6-58a6f404f2a1.jpg, 0000028451/161_08_SITUACION.jpg





