Cargando...
El municipio de Getxo ha promovido la construcción de un edificio destinado a acoger actividades vinculadas al ámbito deportivo, aunque no estrictamente deportivas, como reuniones de confraternización entre equipos, ferias, encuentros técnicos, ceremonias de entrega de premios, exposiciones de equipamiento o la implantación de start-ups y empresas relacionadas con el sector.
El edificio adquiere así un carácter representativo, buscando una imagen de unidad pese a la diversidad de usos y volúmenes que alberga. Su ubicación, en el acceso principal al parque deportivo de Fadura, refuerza esta condición, funcionando como elemento de transición entre la trama urbana de Getxo y el nuevo ámbito deportivo, a modo de puerta o filtro de entrada.
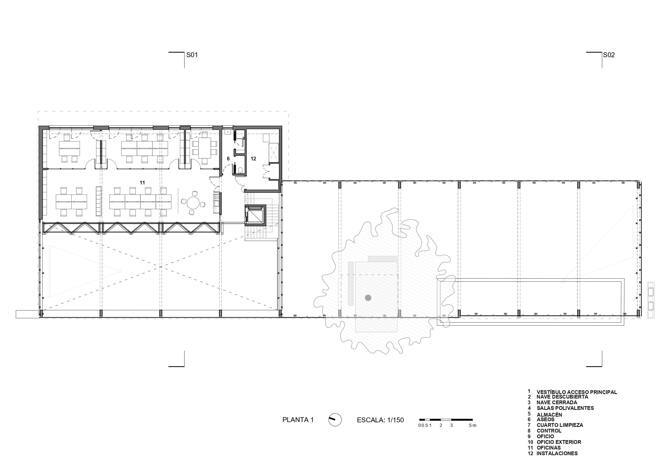
El proyecto se organiza en tres ámbitos diferenciados. Por un lado, el espacio exterior cubierto, concebido como una gran estructura a dos aguas con la altura necesaria para albergar un uso intensivo, pero cuyas fachadas laterales descienden hasta los 2,5 metros para proteger de la lluvia, manteniendo abierta la parte inferior y favoreciendo la ventilación natural y la conexión con el entorno ajardinado. En este espacio se integra un pino centenario preexistente, cuya preservación se convierte en elemento central del proyecto mediante una apertura en la cubierta. Este gesto articula tanto el acceso al complejo como la relación entre el espacio exterior cubierto y el interior.
El segundo ámbito lo constituye el espacio interior cubierto, un edificio cerrado de dos plantas con distintos niveles de acondicionamiento térmico según los usos. La planta baja alberga un espacio versátil y configurable que puede funcionar de manera independiente o en continuidad con el espacio exterior cubierto, mientras que en la planta superior se disponen oficinas destinadas a empresas vinculadas al deporte o iniciativas de emprendimiento tecnológico.
El tercer ámbito corresponde a las zonas ajardinadas, en contacto directo con el espacio exterior cubierto. Se trata de una pradera con arbolado preexistente de gran porte que aporta carácter al conjunto y complementa los usos sociales del edificio, especialmente en eventos de carácter más informal o familiar.
Desde el punto de vista constructivo, el proyecto responde a la voluntad de generar un edificio sostenible y de baja huella de carbono, priorizando el uso de la madera como material estructural principal. La proximidad al río Gobela y la condición inundable del emplazamiento motivan la disposición de una base de pilares de hormigón que eleva la estructura de madera por encima de la cota de riesgo. A partir de este punto, el edificio se desarrolla mediante pórticos de madera a dos aguas, unidos por cabios del mismo material.
Las fachadas se resuelven con subestructuras de madera y elementos oblicuos que cumplen una doble función estructural, absorbiendo tanto las cargas verticales como las acciones horizontales del viento. El resultado es una arquitectura en la que la estructura de madera adquiere un papel protagonista, definiendo tanto la expresión material como la atmósfera del espacio.
Información general
Centro Social Tiki Toki
AÑO
Opción de visitas
Dirección
Los Chopos Etorbidea, s/n
48991 Getxo - Bizkaia -Getxo
Latitud: 43.349654877
Longitud: -3.001145186
Clasificación
Materiales construcción
Superficie construida
Información aportada por
GA+
Ubicación
https://content.gnoss.ws/carq/https://content.gnoss.ws/carq//imagenes/Documentos/imgsem/b8/b8d0/b8d007f7-4adb-4be9-9c13-d66733a01945/d02562a1-5d3b-48a3-b3e3-c73fe1a524cc.jpg, 0000104350/TIKI.TOKI_001.jpg
https://content.gnoss.ws/carq/https://content.gnoss.ws/carq//imagenes/Documentos/imgsem/b8/b8d0/b8d007f7-4adb-4be9-9c13-d66733a01945/507ccb06-9539-4e29-a3a5-fc14788ed39c.jpg, 0000104350/TIKI.TOKI_066.jpg
https://content.gnoss.ws/carq/https://content.gnoss.ws/carq//imagenes/Documentos/imgsem/b8/b8d0/b8d007f7-4adb-4be9-9c13-d66733a01945/60b02daf-8a35-44e4-be6f-15f393855459.jpg, 0000104350/TIKI.TOKI_002.jpg
https://content.gnoss.ws/carq/https://content.gnoss.ws/carq//imagenes/Documentos/imgsem/b8/b8d0/b8d007f7-4adb-4be9-9c13-d66733a01945/f8ee13ba-d18b-4729-ad1d-92fd69aa7813.jpg, 0000104350/TIKI.TOKI_004.jpg
https://content.gnoss.ws/carq/https://content.gnoss.ws/carq//imagenes/Documentos/imgsem/b8/b8d0/b8d007f7-4adb-4be9-9c13-d66733a01945/f1cfca11-b225-43d4-a09d-a4853abae14a.jpg, 0000104350/TIKI.TOKI_005.jpg
https://content.gnoss.ws/carq/https://content.gnoss.ws/carq//imagenes/Documentos/imgsem/b8/b8d0/b8d007f7-4adb-4be9-9c13-d66733a01945/cd31a461-2b9e-453b-9a33-e0c4fb659806.jpg, 0000104350/TIKI.TOKI_006.jpg
https://content.gnoss.ws/carq/https://content.gnoss.ws/carq//imagenes/Documentos/imgsem/b8/b8d0/b8d007f7-4adb-4be9-9c13-d66733a01945/05503422-316b-4243-9d25-c8170fc868b3.jpg, 0000104350/TIKI.TOKI_009.jpg
https://content.gnoss.ws/carq/https://content.gnoss.ws/carq//imagenes/Documentos/imgsem/b8/b8d0/b8d007f7-4adb-4be9-9c13-d66733a01945/3dc26655-75da-45fd-8666-91715ca3586a.jpg, 0000104350/TIKI.TOKI_014.jpg
https://content.gnoss.ws/carq/https://content.gnoss.ws/carq//imagenes/Documentos/imgsem/b8/b8d0/b8d007f7-4adb-4be9-9c13-d66733a01945/46227821-7b0e-43bf-99e4-b420409da9e9.jpg, 0000104350/TIKI.TOKI_025.jpg
https://content.gnoss.ws/carq/https://content.gnoss.ws/carq//imagenes/Documentos/imgsem/b8/b8d0/b8d007f7-4adb-4be9-9c13-d66733a01945/f950f550-f640-4793-8759-068b3401e352.jpg, 0000104350/TIKI.TOKI_028.jpg
https://content.gnoss.ws/carq/https://content.gnoss.ws/carq//imagenes/Documentos/imgsem/b8/b8d0/b8d007f7-4adb-4be9-9c13-d66733a01945/2b13a689-7f4e-4e95-8a1a-76215a4151db.jpg, 0000104350/TIKI.TOKI_042.jpg
https://content.gnoss.ws/carq/https://content.gnoss.ws/carq//imagenes/Documentos/imgsem/b8/b8d0/b8d007f7-4adb-4be9-9c13-d66733a01945/ec16b510-aa2a-46aa-ae96-9ee4ab22899e.jpg, 0000104350/TIKI.TOKI_064.jpg
https://content.gnoss.ws/carq/https://content.gnoss.ws/carq//imagenes/Documentos/imgsem/b8/b8d0/b8d007f7-4adb-4be9-9c13-d66733a01945/5b66fe56-6185-41cb-9f63-dfde9c49e822.jpg, 0000104350/TIKI.TOKI_065.jpg
https://content.gnoss.ws/carq//imagenes/Documentos/imgsem/b8/b8d0/b8d007f7-4adb-4be9-9c13-d66733a01945/24a9fcf3-04e1-48ed-add3-ae5c4309c87e.jpg, 0000104350/25M01_TIKITOKI_PLANOS_page-0003.jpg
https://content.gnoss.ws/carq//imagenes/Documentos/imgsem/b8/b8d0/b8d007f7-4adb-4be9-9c13-d66733a01945/f056cf43-b393-490a-ac9f-3858a6188efe.jpg, 0000104350/25M01_TIKITOKI_PLANOS_page-0004.jpg
https://content.gnoss.ws/carq//imagenes/Documentos/imgsem/b8/b8d0/b8d007f7-4adb-4be9-9c13-d66733a01945/93da5e12-1d2f-4020-8151-4d1eecbca125.jpg, 0000104350/25M01_TIKITOKI_PLANOS_page-0001.jpg
https://content.gnoss.ws/carq//imagenes/Documentos/imgsem/b8/b8d0/b8d007f7-4adb-4be9-9c13-d66733a01945/681ebc4d-2147-4eb1-af84-2e7097e30ae3.jpg, 0000104350/25M01_TIKITOKI_PLANOS_page-0006.jpg
https://content.gnoss.ws/carq//imagenes/Documentos/imgsem/b8/b8d0/b8d007f7-4adb-4be9-9c13-d66733a01945/4d695c18-8494-4b94-adf3-ab94a1577b73.jpg, 0000104350/25M01_TIKITOKI_PLANOS_page-0005.jpg
https://content.gnoss.ws/carq//imagenes/Documentos/imgsem/b8/b8d0/b8d007f7-4adb-4be9-9c13-d66733a01945/0f435821-d7e7-4b20-89a0-6374d26b435b.jpg, 0000104350/25M01_TIKITOKI_PLANOS_page-0007.jpg
https://content.gnoss.ws/carq//imagenes/Documentos/imgsem/b8/b8d0/b8d007f7-4adb-4be9-9c13-d66733a01945/47038a9d-abca-43a1-8add-072bac5c11ee.jpg, 0000104350/25M01_TIKITOKI_PLANOS_page-0002.jpg



