Cargando...
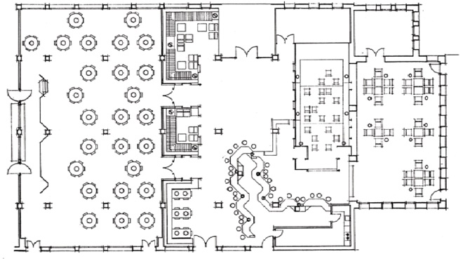
Una estancia de techos altos, dimensiones generosas y presidida por una serie ordenada de pilares, jácenas y grandes ventanales se fragmentó y organizó para dar lugar a ambientes diversos. El elemento protagonista de la intervención era un tabique de alturas diferentes que buscaba en su geometría quebrada la máxima estabilidad en planta. Todo a la manera de un biombo complejo que contenía ventanas, cortinas correderas, apliques, bandas de plástico lavables, cantoneras, zócalos y tapajuntas.
Ya se observa en este ejercicio inicial una manera de hacer que estará presente en muchas de las obras posteriores. La preocupación por el confort, el cuidado por la construcción por sencilla que fuere y la valoración del lugar en que se interviene fueron los guías que acompañaron al proyecto en su camino para llegar a una forma, que ya aquí se quería más como una consecuencia que como un apriorismo.
Con la perspectiva que da mirar este trabajo al cabo de cincuenta años es fácil detectar el mundo cultural del que recibió tantas y fundamentales influencias. Los admirados arquitectos italianos del momento estaban entonces dedicados a recuperar aspectos olvidados por las primeras vanguardias, a ampliar consecuentemente el vocabulario utilizado por ellas, a rescatar la ornamentación como expresión del proceso constructivo, a tener en cuenta el envejecimiento de las cosas, a considerar el entorno como un tema prioritario... Y todo esto interesaba muchísimo y sus obras estaban a pocos kilómetros.
Información general
Colegio Mayor San Raimundo de Peñafort. Adecuación de la planta baja como comedor-estar
AÑO
Estado
Desaparecida
Opción de visitas
Dirección
avda. Diagonal, 639
08028 Barcelona - Barcelona
Latitud: 41.386309829
Longitud: 2.1213839697
Clasificación
Superficie construida
Estudios de arquitectura participantes
Información aportada por
(2015). Lluís Clotet, premio nacional de arquitectura 2010. Ministerio de Fomento Secretaría General Técnica Centro de Publicaciones.
Ministerio de Transportes, Movilidad y Agenda urbana (MITMA)
Enlaces web
-
Oriol Maspons
Ubicación
https://content.gnoss.ws/carq/https://content.gnoss.ws/carq//imagenes/Documentos/imgsem/db/dbc3/dbc3e0d5-0b0d-4ecf-9f9d-0ce9c774975d/4618e9db-bc17-4a21-b270-c43add575c23.jpg, 0000023354/Colegio Mayor San Raimundo .jpg
https://content.gnoss.ws/carq/https://content.gnoss.ws/carq//imagenes/Documentos/imgsem/db/dbc3/dbc3e0d5-0b0d-4ecf-9f9d-0ce9c774975d/34fb354a-98e7-481d-afb2-9c15ee1f2d77.jpg, 0000023354/Colegio Mayor San Raimundo 1 .jpg
https://content.gnoss.ws/carq/https://content.gnoss.ws/carq//imagenes/Documentos/imgsem/db/dbc3/dbc3e0d5-0b0d-4ecf-9f9d-0ce9c774975d/39904626-74da-40a9-93a0-bdf7d427fadd.jpg, 0000023354/Colegio Mayor San Raimundo 2 .jpg
https://content.gnoss.ws/carq//imagenes/Documentos/imgsem/db/dbc3/dbc3e0d5-0b0d-4ecf-9f9d-0ce9c774975d/8baf3c15-5d1e-4153-8356-84c08203cc99.jpg, 0000023354/Colegio Mayor San Raimundo planta .jpg
https://content.gnoss.ws/carq//imagenes/Documentos/imgsem/db/dbc3/dbc3e0d5-0b0d-4ecf-9f9d-0ce9c774975d/d85a7bbf-e21f-4481-808d-838791709242.jpg, 0000023354/Colegio Mayor San Raimundo axonometria .jpg
https://content.gnoss.ws/carq//imagenes/Documentos/imgsem/db/dbc3/dbc3e0d5-0b0d-4ecf-9f9d-0ce9c774975d/7862ace4-1974-48c8-8c9c-c3d290e229ff.jpg, 0000023354/Colegio Mayor San Raimundo axonometria 1 .jpg




