Cargando...
En el margen derecho de la desembocadura del río Tinto, sobre una llanura adyacente a las marismas del Nicoba, se extiende el mayor polígono industrial de la provincia de Huelva. A las puertas del mismo, en una parcela limítrofe entre lo urbanizado y el vacío, el fabricante sueco de camiones Scania decidió situar sus nuevas instalaciones en la región.
La principal cualidad de esta ubicación era la de poseer una conexión directa con las distintas infraestructuras que la circundaban, ofreciendo el reto de enfrentarse a una completa exposición visual, donde la arquitectura deviene en elemento publicitario tanto como contenedor funcional.
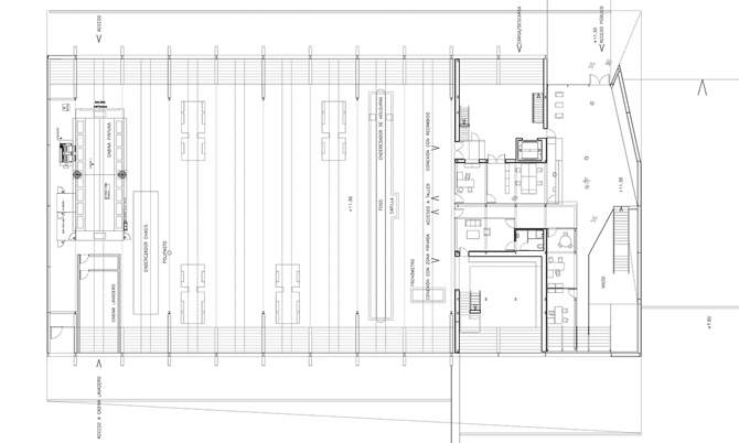
El programa solicitado era simple pero con condicionantes opuestos. Por un lado, un gran espacio diáfano horizontal y cenitalmente iluminado para la puesta a punto de los camiones. Por otro, una zona expositiva y comercial a varios niveles con necesidades de luz natural para las dependencias administrativas.
El requisito de crear un edificio de carácter dominante en el entorno nos lleva a englobar las distintas partes del programa en un único volumen, con un único material, confiando en que esta decisión ayude a suplir las carencias que un programa relativamente reducido nos generaba para este fin. De este modo, el acusado desnivel de la parcela se intenta utilizar a favor de estos intereses, creando una gran explanada frente a la zona de acceso, retrasando la posición del muro de contención y también superponiendo el programa verticalmente en la cabeza del edificio, todo para incrementar la altura del volumen desde los 10 m de las zonas traseras hasta los casi 20 m en la esquina principal de poniente.
Este conjunto de necesidades volumétricas se resuelve mediante una sencilla operación formal, una inclinación o abatimiento de los planos de fachada hasta alcanzar casi los 45º, en un gesto que empieza rotundo y simétrico para a continuación modificarse según las condiciones específicas de cada orientación, prolongando el umbral entre el interior y el exterior sin más elementos añadidos, desde la intemperie hasta la zona protegida del edificio.
Para ello, se decidió emplear un sistema estructural de vigas y pilares atirantados y postesados, un esquema híbrido que rigidiza la estructura hasta no necesitar más elementos de arriostramiento que los pórticos principales del edificio. Pero también con un sistema constructivo directo y preciso de revestimientos metálicos de junta seca, materiales pertenecientes a la retórica industrial pero también al mundo del motor, buscando un diálogo natural con los verdaderos usuarios del edificio.
Información general
Complejo industrial SCANIA
AÑO
Opción de visitas
Dirección
avda. La Gamba, 7
21007 Parque Huelva Empresarial - Huelva
Latitud: 37.305933811
Longitud: -6.888566582
Sistema constructivo
Estructura metálica sobre losa flotante de hormigón, con envolvente multicapa de termoarcilla y policarbonato celular, o doble capa de policarbonato.
Superficie construida
Premios
Estudios de arquitectura participantes
Información aportada por
Premio Mies van der Rohe (ACUE)
EOVASTUDIO
Enlaces web
Ubicación
https://content.gnoss.ws/carq/https://content.gnoss.ws/carq//imagenes/Documentos/imgsem/ec/ec8a/ec8af1e0-c319-40fe-bb95-931244ef6012/54141043-4e45-42a4-931f-a963bc4d0b13.jpeg, 0000011817/SCANIA Industrial Complex 1_EOVASTUDIO.jpeg
https://content.gnoss.ws/carq/https://content.gnoss.ws/carq//imagenes/Documentos/imgsem/ec/ec8a/ec8af1e0-c319-40fe-bb95-931244ef6012/2978f0dd-188e-4e70-87da-312f520884d8.jpeg, 0000011817/SCANIA Industrial Complex 2_EOVASTUDIO.jpeg
https://content.gnoss.ws/carq/https://content.gnoss.ws/carq//imagenes/Documentos/imgsem/ec/ec8a/ec8af1e0-c319-40fe-bb95-931244ef6012/ec4bfe78-50d5-45fc-81d0-4e6465f5d882.jpeg, 0000011817/SCANIA Industrial Complex 3_EOVASTUDIO.jpeg
https://content.gnoss.ws/carq//imagenes/Documentos/imgsem/ec/ec8a/ec8af1e0-c319-40fe-bb95-931244ef6012/94704087-bd34-407d-9760-c88ed9d70768.jpg, 0000011817/seccion scania.jpg
https://content.gnoss.ws/carq//imagenes/Documentos/imgsem/ec/ec8a/ec8af1e0-c319-40fe-bb95-931244ef6012/a000e0e2-6bea-4898-89c0-fc1c92f06656.jpg, 0000011817/planta scania.jpg



