Cargando...
Se propuso un sistema que fuera modelo de crecimiento y cambio, permitiendo la construcción del conjunto por partes. En su definición actual, la fachada sur se presenta como una radiografía de la segunda fase, exhibiendo como ventanas lo que en un futuro serán puertas de aulas, pasillos y ventanales de patios interiores. Nueve núcleos de escalera dispuestos regularmente definen la matriz en la que se insertan aulas, auditorios y patios. Los atrios actúan como espacios de actividad y como colchón acústico, además de iluminar las salas.
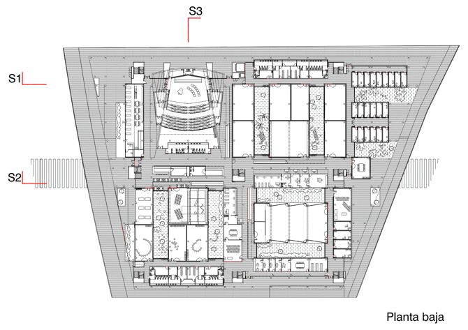
La planta baja agrupa así los usos públicos, transformando los intersticios entre ellos en una suerte de ágora que se extenderá en el parque en que se convertirán los terrenos adyacentes al norte y al sur del recinto. Una entreplanta surge allí donde los 5 metros de altura del edificio no se encuentran ocupados por el volumen de las grandes salas. Su organización parte de la célula mínima del conjunto, la cabina individual de ensayo de 10 m2 delimitados por una doble hoja de ladrillo y hormigón que garantiza su independencia acústica. Agrupados en número variable, estos cubículos se identifican a través del alicatado azul cobalto que los envuelve y establecen mediante rampas y vacíos un diálogo con el ágora.
Tras su envolvente de chapa de aluminio perforada, el interior del conservatorio despliega un complejo código cromático que elude la necesidad de señalización tipográfica. Las distintas actividades previstas en las salas llevaron a usar un sistema de absorción acústica a base de cortinas regulables. De distinto gramaje, su tono fue elegido para apoyar una orientación intuitiva dentro de la ciudad: los colores básicos (rojo, amarillo y azul) se asignaron a las áreas de actividad, mientras sus complementarios (naranja, verde y violeta) identifican las zonas de reposo. En un juego de equívocos, reflejos y sombras, la actividad del centro se filtra a través de las fachadas tentando al transeúnte con una aproximación fenomenológica a la música y la danza.
Información general
Conservatorio de música y danza. Escuela de teatro y orquesta sinfónica
AÑO
Opción de visitas
Dirección
c/ d`Alfons el Magnànim, 64
07004 Palma - Illes Balears
Latitud: 39.590014009
Longitud: 2.6537293195
Superficie construida
Colaboradores
J.M. Ollér (Arquitecto técnico)
Enric Peña (Arquitecto técnico)
Estudios de arquitectura participantes
Información aportada por
COLL-LECLERC
Enlaces web
-
Alzados - COLL-LECLERC -
COLL-LECLERC
Ubicación
https://content.gnoss.ws/carq/https://content.gnoss.ws/carq//imagenes/Documentos/imgsem/48/480f/480fcf2f-09e0-49c9-857a-19d1c6972fd1/a85273f8-10b0-457a-b7f6-27de5616fbb1.jpeg, 0000003564/2.jpeg
https://content.gnoss.ws/carq/https://content.gnoss.ws/carq//imagenes/Documentos/imgsem/48/480f/480fcf2f-09e0-49c9-857a-19d1c6972fd1/eb0f76fa-31c6-42a0-858f-969e68a6a21a.jpeg, 0000003564/3.jpeg
https://content.gnoss.ws/carq/https://content.gnoss.ws/carq//imagenes/Documentos/imgsem/48/480f/480fcf2f-09e0-49c9-857a-19d1c6972fd1/5812a661-0f64-4598-af5e-0c68d9ea6f4d.jpeg, 0000003564/1.jpeg
https://content.gnoss.ws/carq/https://content.gnoss.ws/carq//imagenes/Documentos/imgsem/48/480f/480fcf2f-09e0-49c9-857a-19d1c6972fd1/0b7fbfb7-5407-4531-aaff-b4b67162c069.jpeg, 0000003564/4.jpeg
https://content.gnoss.ws/carq/https://content.gnoss.ws/carq//imagenes/Documentos/imgsem/48/480f/480fcf2f-09e0-49c9-857a-19d1c6972fd1/bd9c10ec-8986-4023-86bc-e984734c8f08.jpeg, 0000003564/0.jpeg
https://content.gnoss.ws/carq//imagenes/Documentos/imgsem/48/480f/480fcf2f-09e0-49c9-857a-19d1c6972fd1/cd6a31e8-29f6-4118-9d59-23790328e00f.png, 0000003564/planta.png
https://content.gnoss.ws/carq//imagenes/Documentos/imgsem/48/480f/480fcf2f-09e0-49c9-857a-19d1c6972fd1/74511338-f1fb-4ace-a5c1-f24276ca70cd.png, 0000003564/alzados.png
https://content.gnoss.ws/carq//imagenes/Documentos/imgsem/48/480f/480fcf2f-09e0-49c9-857a-19d1c6972fd1/d6033827-994e-444c-a4a8-13f490721b32.jpeg, 0000003564/maqueta.jpeg
https://content.gnoss.ws/carq//imagenes/Documentos/imgsem/48/480f/480fcf2f-09e0-49c9-857a-19d1c6972fd1/76c64629-bec6-4d23-b99e-bdf5dd1adc48.png, 0000003564/secciones.png




