Cargando...
El edificio trata de explicar la relación que establece la nueva arquitectura que se propone en ese lugar privilegiado con su entorno más inmediato y con el más amplio de la colina de la Sabika. Se utiliza la libertad concedida al encargo para proponer una pieza adecuada al emplazamiento, utilizando la condición de no-programa prefijado como la mejor forma de trabajo que requiere una respuesta específica. Esto es posible principalmente por varios motivos. En primer lugar la confianza del cliente en el planteo de la metodología de trabajo donde a priori se cuenta solo con las limitaciones inmediatas, físicas del territorio sobre las que la pieza arquitectónica se instala.
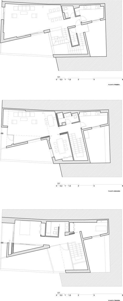
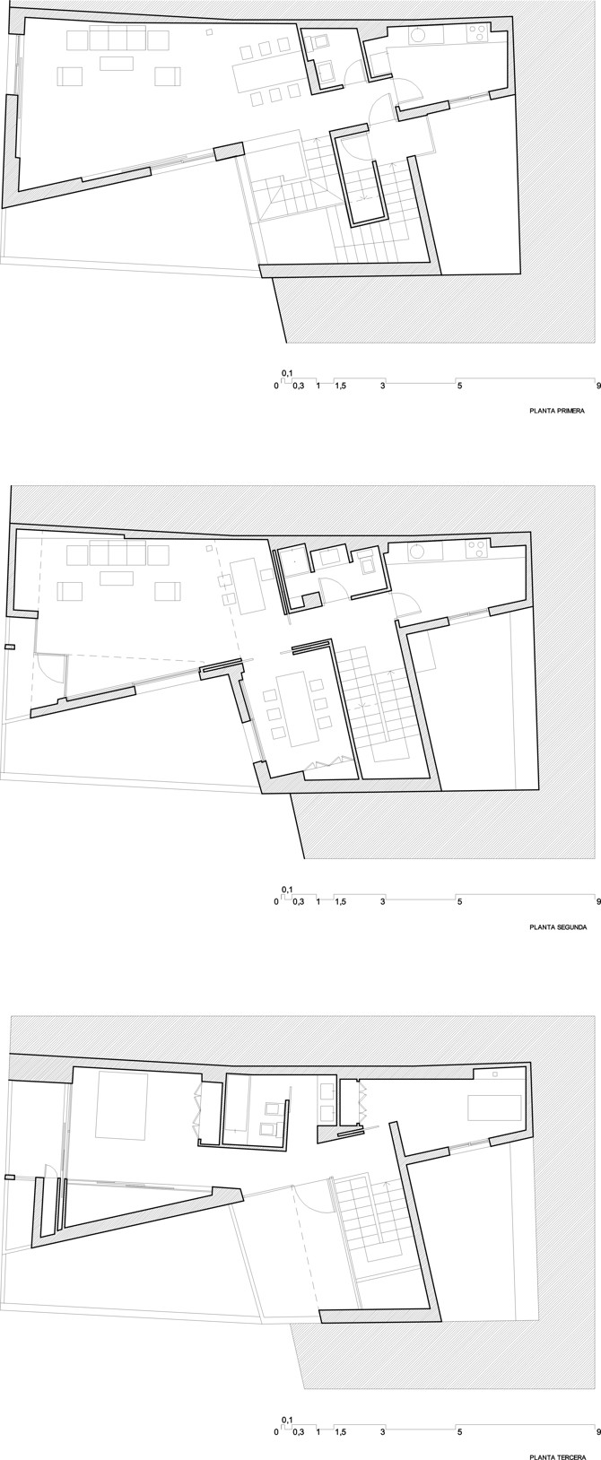
Frente a normativas urbanísticas el proyecto analiza y reconoce como limitaciones propias otras derivadas de un detenido análisis como son: las pendientes diversas del solar, en particular la de la calle Parra de San Cecilio a la que el edificio da frente, el estrangulamiento de la citada calle, la diferente cota y altura de los edificios colindantes... Todos elementos que estructuran una respuesta de edificio particularmente atenta con su enclave físico, o lugar en el más estricto sentido, resolviendo su acuerdo con los edificios colindantes y, al mismo tiempo en una lectura más amplia, con la ciudad a la que se muestra.
Por otro lado el reconocimiento de que la intensidad de la respuesta arquitectónica debe de ser proporcionada en medida con la escenografía urbana donde esta se inserta. En este orden de cosas la adecuada escala de intervención ha sido un factor decisivo que ha condicionado toda la intervención desde la implantación del programa específico, el ordenamiento y jerarquización de sus espacios interiores y la selección mediante la condicionada perspectiva de las volumetrías externas del objeto arquitectónico.
Información general
Dos dúplex en el Campo del Príncipe
AÑO
Opción de visitas
Dirección
c/ Parra de San Cecilio, 7
18009 Granada - Granada
Latitud: 37.173781324
Longitud: -3.590741287
Clasificación
Sistema constructivo
Fábrica de ladrillo enfoscado. Estructura de hormigón.
Superficie construida
Arquitectos participantes
Colaboradores
Estudios de arquitectura participantes
Información aportada por
VII BEAU
Ramón Fernández-Alonso y asociados
Enlaces web
-
Ramón Fernández-Alonso y asociados -
Ramón Fernández-Alonso y asociados -
Ramón Fernández-Alonso y asociados
Ubicación
https://content.gnoss.ws/carq/https://content.gnoss.ws/carq//imagenes/Documentos/imgsem/d6/d61b/d61b23e6-5fcd-45b7-bb37-1ce58b249e24/9f5b0055-3307-41b8-8efa-218f0236b2c1.jpg, 0000014330/FOTO02.jpg
https://content.gnoss.ws/carq/https://content.gnoss.ws/carq//imagenes/Documentos/imgsem/d6/d61b/d61b23e6-5fcd-45b7-bb37-1ce58b249e24/3b443f0b-a812-4d57-9445-962a14279bbf.jpg, 0000014330/3_1.jpg
https://content.gnoss.ws/carq/https://content.gnoss.ws/carq//imagenes/Documentos/imgsem/d6/d61b/d61b23e6-5fcd-45b7-bb37-1ce58b249e24/508b5b2f-4c09-4477-bcaf-04a751a6e922.jpg, 0000014330/FOTO01.jpg
https://content.gnoss.ws/carq/https://content.gnoss.ws/carq//imagenes/Documentos/imgsem/d6/d61b/d61b23e6-5fcd-45b7-bb37-1ce58b249e24/5a9ecaa6-b51e-48ab-8003-908bc8279fb2.jpg, 0000014330/Duplex._RMonFdz-Aonso.jpg
https://content.gnoss.ws/carq//imagenes/Documentos/imgsem/d6/d61b/d61b23e6-5fcd-45b7-bb37-1ce58b249e24/3a6bb64b-1b0e-4351-a4c5-e27f543872e5.jpg, 0000014330/plantas2.jpg
https://content.gnoss.ws/carq//imagenes/Documentos/imgsem/d6/d61b/d61b23e6-5fcd-45b7-bb37-1ce58b249e24/5acf9278-f132-44b3-9971-693a250e4b64.jpg, 0000014330/plantas1.jpg
https://content.gnoss.ws/carq//imagenes/Documentos/imgsem/d6/d61b/d61b23e6-5fcd-45b7-bb37-1ce58b249e24/8a037cba-1bdb-4ecc-a0c6-229502a12391.jpg, 0000014330/situacion.jpg
https://content.gnoss.ws/carq//imagenes/Documentos/imgsem/d6/d61b/d61b23e6-5fcd-45b7-bb37-1ce58b249e24/0f6812a3-5ed8-4e01-ba46-0f36549d260b.jpg, 0000014330/Secciones1.jpg
https://content.gnoss.ws/carq//imagenes/Documentos/imgsem/d6/d61b/d61b23e6-5fcd-45b7-bb37-1ce58b249e24/514b58c8-3877-4e6f-a296-a0ab2214a5cc.jpg, 0000014330/Secciones2.jpg




