Cargando...
Cuando nos planteamos este proyecto, partimos de un condicionante básico que era el emplazamiento del mismo, en un polígono de nueva creación con una configuración de bulevar central (peatonal y de tráfico rodado) acompañado a ambos lados por edificaciones en manzana abierta y que, como inicio o final, ocupaba su posición con una volumetría preconcebida de Torre cúbica de 24 m. x 24 m. x 4 + 24 m. ( PB + 8 P.).
Por tanto, debía ser un elemento rotundo, con un volumen “pregnante” y que al estar inserto dentro de la trama del urbanismo “moderno”, aislado en su propia parcela y sin referencia urbana cercana, debía definirse y tener escala por sí mismo. Por ello, optamos por una composición clásica en altura, desarrollando BASA, de acceso y local comercial; CUERPO, de 7 plantas de viviendas y CORONACIÓN con planta ático retranqueada y alero superior perimetral que remata la edificación. Para acentuar más su valor de paralepípedo exento, se configuraran los 4 planos de fachadas con el mismo valor, concentrando los huecos en un paño central de piedra y vidrio, y macizando las esquinas con fabrica de ladrillo que “apoyan” el edificio en el suelo.
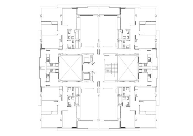
La distribución en planta refleja un esquema sencillo de patio central interior con el núcleo de comunicaciones y 4 viviendas iguales que ocupan los 4 cuadrantes del edificio y que, según los 2 ejes de simetría, desarrollan un programa funcional donde las piezas básicas de cocina y salones ocupan los frentes de fachadas con terrazas dejando los dormitorios y baños como piezas-bloque independientes. Así, todas las piezas de uso principal dan a fachada exterior y el patio interior ilumina el pasillo-hall, configurando la cocina como pieza pasante con doble iluminación y ventilación (resolviendo así también el “molesto” tema del tendido de la ropa).
La aceptación del planteamiento global del edificio y la ilusión demostrada en llevarlo a cabo por parte del promotor fueron fundamentales para el resultado final de la obra. Sin embargo, la realidad comercial no entiende de conceptos globales siendo patente en este caso la mala resolución final de la “basa” del edificio donde la configuración definitiva atiende más a los intereses parciales de los nuevos propietarios de los locales.
Información general
Edificio de 32 viviendas en Paseo de Longares
AÑO
Opción de visitas
Dirección
p.º de Longares, 35
50014 Zaragoza - Zaragoza
Latitud: 41.657625316
Longitud: -0.864017092
Clasificación
Sistema constructivo
Fachada de ladrillo caravista, con forjado unidireccional y pilares de hormigón in situ.
Superficie construida
Estudios de arquitectura participantes
Información aportada por
Colegio Oficial de Arquitectos de Aragón (COAA)
-
Portales - Manuel Castillo Arquitectura y Paisaje
Ubicación
Itinerarios
https://content.gnoss.ws/carq/https://content.gnoss.ws/carq//imagenes/Documentos/imgsem/df/df11/df1191a5-e696-4bf0-9c7e-fa695378b4e8/3532fd7e-318d-4e9b-b586-e9e4deb7b209.jpg, 0000028474/32-VIV-1.jpg
https://content.gnoss.ws/carq/https://content.gnoss.ws/carq//imagenes/Documentos/imgsem/df/df11/df1191a5-e696-4bf0-9c7e-fa695378b4e8/5fb4ca4d-6744-498f-a929-c10c4fe2f312.jpg, 0000028474/32-VIV-4.jpg
https://content.gnoss.ws/carq/https://content.gnoss.ws/carq//imagenes/Documentos/imgsem/df/df11/df1191a5-e696-4bf0-9c7e-fa695378b4e8/9d944537-b9a3-461e-bb7e-a485cf916f80.jpg, 0000028474/32-VIV-3.jpg
https://content.gnoss.ws/carq/https://content.gnoss.ws/carq//imagenes/Documentos/imgsem/df/df11/df1191a5-e696-4bf0-9c7e-fa695378b4e8/d93a23ea-8108-4d89-b773-1c4ad837eaea.jpg, 0000028474/32-VIV-2.jpg
https://content.gnoss.ws/carq//imagenes/Documentos/imgsem/df/df11/df1191a5-e696-4bf0-9c7e-fa695378b4e8/725413ee-1cdd-4765-ba0b-ba31b9176837.jpg, 0000028474/32VIVIENDAS Model (1).jpg




