Cargando...
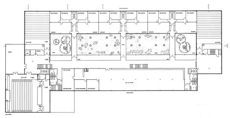
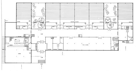
Por desconocidos, no existió posible acuerdo con los edificios circundantes que se realizarían con posterioridad. Se cierra sobre sí mismo, sobre un patio central ajardinado cubierto con toldos desde primavera hasta otoño, al modo de las calles y patios andaluces, y da sus espaldas cerradas al dudoso porvenir exterior del conjunto.
Por programa es simétrico: así, simétricamente, se resolvió su interior. El elemento aislado del programa general, salón de actos y cafetería, se coloca, se “arrima” al bloque de aulas y seminarios, en el lugar lógico.
Su aproximación crea tensiones interiores que acusa la composición general. Por densidad de uso se sitúan las aulas importantes en planta baja y las que no caben se amontonan en curiosas torres en los extremos.
El mayor número de alumnos se concentra en la planta baja. Los seminarios, tan lejos como se ha podido. Se llega a ellos atravesando el patio por ligeras pasarelas como si de un jardín o de un bosque se tratase. Se repite, al exterior se cierra, con muros y persianas; al interior se abre al jardín. Fuerte expresión en la cuidada estructura metálica.
Información general
Edificio de Aulas y Seminarios de Sevilla. Facultad de Matemáticas
AÑO
Opción de visitas
Dirección
c/ Tarfia, s/n
41012 Sevilla - Sevilla
Latitud: 37.359421395
Longitud: -5.988001719
Clasificación
Superficie construida
Premios
Arquitectos participantes
Información aportada por
Fondo documental DOCOMOMO Ibérico
Fundación Alejandro de la Sota
Enlaces web
-
Fundación Alejandro de la Sota -
Fundación Alejandro de la Sota -
Fundación Alejandro de la Sota
Ubicación
https://content.gnoss.ws/carq/https://content.gnoss.ws/carq//imagenes/Documentos/imgsem/e1/e1eb/e1eb01ab-d797-4646-a5cc-1d2b1024bae9/58024641-8d2b-48cd-836d-6b44cd1bf609.jpg, 0000011230/facultad de matematicas.jpg
https://content.gnoss.ws/carq/https://content.gnoss.ws/carq//imagenes/Documentos/imgsem/e1/e1eb/e1eb01ab-d797-4646-a5cc-1d2b1024bae9/3a1b98f2-5d5b-4f47-9280-e53448cdf6e3.jpg, 0000011230/72_D_FO_D_24_lg.jpg
https://content.gnoss.ws/carq/https://content.gnoss.ws/carq//imagenes/Documentos/imgsem/e1/e1eb/e1eb01ab-d797-4646-a5cc-1d2b1024bae9/9eda0f74-03f6-48d5-b47e-ecb322ccaa66.jpg, 0000011230/PNA_1973_im 1.jpg
https://content.gnoss.ws/carq/https://content.gnoss.ws/carq//imagenes/Documentos/imgsem/e1/e1eb/e1eb01ab-d797-4646-a5cc-1d2b1024bae9/a17b3d63-d5a7-499e-a31c-b9b6620294b2.jpg, 0000011230/PNA_1973_im 2.jpg
https://content.gnoss.ws/carq/https://content.gnoss.ws/carq//imagenes/Documentos/imgsem/e1/e1eb/e1eb01ab-d797-4646-a5cc-1d2b1024bae9/dba16870-bee1-4214-bc75-14edf4d5cfde.jpg, 0000011230/PNA_1973_im 5.jpg
https://content.gnoss.ws/carq/https://content.gnoss.ws/carq//imagenes/Documentos/imgsem/e1/e1eb/e1eb01ab-d797-4646-a5cc-1d2b1024bae9/6587dded-03fc-4c87-91e0-35c3938420d8.jpg, 0000011230/PNA_1973_im 6.jpg
https://content.gnoss.ws/carq/https://content.gnoss.ws/carq//imagenes/Documentos/imgsem/e1/e1eb/e1eb01ab-d797-4646-a5cc-1d2b1024bae9/4f7f54f2-846f-43b6-b9e9-388b867fe20f.jpg, 0000011230/AMP_AND_OCC_A08_03.jpg
https://content.gnoss.ws/carq/https://content.gnoss.ws/carq//imagenes/Documentos/imgsem/e1/e1eb/e1eb01ab-d797-4646-a5cc-1d2b1024bae9/1466eb5f-ff5d-44ab-b6fd-cb059c3f4a53.jpg, 0000011230/AMP_AND_OCC_A08_04.jpg
https://content.gnoss.ws/carq//imagenes/Documentos/imgsem/e1/e1eb/e1eb01ab-d797-4646-a5cc-1d2b1024bae9/6d4c7149-011c-4a0b-939e-987069bdf732.jpg, 0000011230/72_D_VA_2_lg.jpg
https://content.gnoss.ws/carq//imagenes/Documentos/imgsem/e1/e1eb/e1eb01ab-d797-4646-a5cc-1d2b1024bae9/a3e902f4-b472-444a-bc54-5d8b30cbc34b.jpg, 0000011230/72_D_VA_4_lg.jpg
https://content.gnoss.ws/carq//imagenes/Documentos/imgsem/e1/e1eb/e1eb01ab-d797-4646-a5cc-1d2b1024bae9/f5dc40f7-f016-4798-a339-775094c82c1b.jpg, 0000011230/PNA_1973_im 7.jpg
https://content.gnoss.ws/carq//imagenes/Documentos/imgsem/e1/e1eb/e1eb01ab-d797-4646-a5cc-1d2b1024bae9/21e94a8d-e172-48ba-8aee-1ecb82bed8a4.jpg, 0000011230/PNA_1973_im 4.jpg
https://content.gnoss.ws/carq//imagenes/Documentos/imgsem/e1/e1eb/e1eb01ab-d797-4646-a5cc-1d2b1024bae9/821de5ba-4b55-44b3-8f23-ef42bb4fb5b5.jpg, 0000011230/PNA_1973_im 3.jpg




