Cargando...
Su reducida escala no impide que esta pieza asuma un papel de elemento referencial en el tejido heterogéneo del barrio de Santa Eulàlia, en la capital de Menorca. La verticalidad acentuada de su entrada principal, junto con el orden duplicado de sus pisos superiores, denota una función pública.
Manifestando abiertamente una voluntad de integración en el entorno vernáculo, las lamas de aluminio de la fachada oeste evocan las celosías de las estructuras características de Mahón, y la tradicional cantería del zócalo que envuelve la planta baja contrasta agradablemente con el yeso blanco y liso de las paredes restantes.
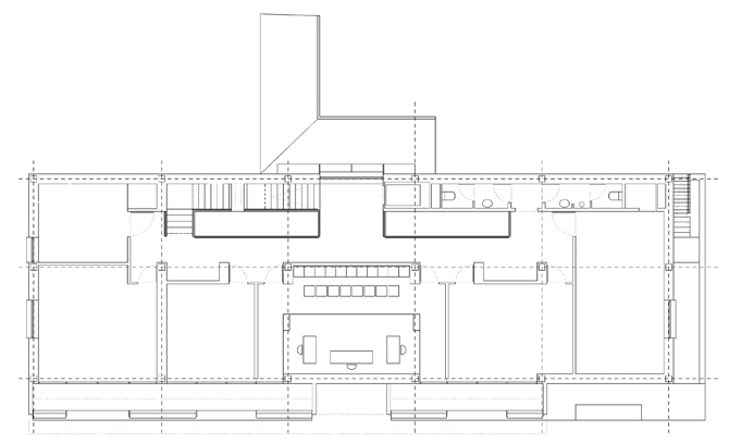
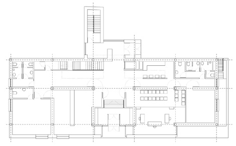
Un esquema simétrico dispuesto a ambos lados del eje de la entrada organiza la distribución de los interiores donde predomina la continuidad visual y la iluminación cenital.
Información general
Edificio de juzgados de Mahón
AÑO
Opción de visitas
Dirección
c/ d'Antoni Juan Alemany, 4
07701 Mao - Illes Balears
Latitud: 39.88583325
Longitud: 4.2715761065
Clasificación
Sistema constructivo
En la fachada se emplea mampostería tradicional de la arquitectura vernácula para el zócalo que envuelve la planta baja ofreciendo un contraste grato con el enfoscado blanco. La fachada poniente está compuesta por lamas de aluminio.
Superficie construida
Arquitectos participantes
Estudios de arquitectura participantes
Información aportada por
EUMies Award
Ministerio de Transportes, Movilidad y Agenda urbana (MITMA)
(2017). Juan Navarro Baldeweg. Ministerio de Fomento Secretaría General Técnica Centro de Publicaciones.
-
Navarro Baldeweg Asociados -
Duccio Malagamba
Ubicación
https://content.gnoss.ws/carq/https://content.gnoss.ws/carq//imagenes/Documentos/imgsem/42/42ca/42cae84e-e0d1-492b-8dbe-fd10779e3ac2/8e1b3c09-f25f-494f-8665-b0c639448d68.jpg, 0000003969/Entrada principal.jpg
https://content.gnoss.ws/carq/https://content.gnoss.ws/carq//imagenes/Documentos/imgsem/42/42ca/42cae84e-e0d1-492b-8dbe-fd10779e3ac2/cdbaa531-3256-4598-87eb-3ca718ed55d4.jpg, 0000003969/2.jpg
https://content.gnoss.ws/carq/https://content.gnoss.ws/carq//imagenes/Documentos/imgsem/42/42ca/42cae84e-e0d1-492b-8dbe-fd10779e3ac2/4fadf805-bea2-40cf-ba6d-4476cd03d6ef.jpg, 0000003969/Fachada Este.jpg
https://content.gnoss.ws/carq/https://content.gnoss.ws/carq//imagenes/Documentos/imgsem/42/42ca/42cae84e-e0d1-492b-8dbe-fd10779e3ac2/35b2b7d5-6534-42c5-ab85-8cf2c597a6f5.jpg, 0000003969/1.jpg
https://content.gnoss.ws/carq/https://content.gnoss.ws/carq//imagenes/Documentos/imgsem/42/42ca/42cae84e-e0d1-492b-8dbe-fd10779e3ac2/ab9c2e46-148d-4352-be0c-840a778c7ed5.jpg, 0000003969/3.jpg
https://content.gnoss.ws/carq//imagenes/Documentos/imgsem/42/42ca/42cae84e-e0d1-492b-8dbe-fd10779e3ac2/ee5ba8b6-80ab-479f-a40a-57b809f78bb5.jpg, 0000003969/Planta 1.jpg
https://content.gnoss.ws/carq//imagenes/Documentos/imgsem/42/42ca/42cae84e-e0d1-492b-8dbe-fd10779e3ac2/e073f794-2e87-4509-9741-96897b1b6fea.jpg, 0000003969/Planta 2.jpg
https://content.gnoss.ws/carq//imagenes/Documentos/imgsem/42/42ca/42cae84e-e0d1-492b-8dbe-fd10779e3ac2/8e013529-f46a-41ea-abc2-74dc7088c96a.jpg, 0000003969/4.jpg
https://content.gnoss.ws/carq//imagenes/Documentos/imgsem/42/42ca/42cae84e-e0d1-492b-8dbe-fd10779e3ac2/39b07fe6-22a4-43c7-9d34-0e77ef4ec207.jpg, 0000003969/seccion.jpg




