Cargando...
Se trata de una de las primeras realizaciones de vivienda social de posguerra, acometida en cuatro fases sucesivas por la Obra Sindical del Hogar.
Su construcción se comenzó en 1942, concluyéndose los trabajos en 1956. El proyecto abarcaba la construcción de 1.200 viviendas que responden a 25 tipologías arquitectónicas, de las que 451 se ejecutaron en la primera fase, proyectada por los arquitectos Luis Gámir y Eduardo Olasagasti. La ordenación de esta primera fase responde a una agrupación de cuatro bloques, de cuatro y cinco plantas, en torno a plazas ajardinadas interiores, con una calle principal de penetración rodada y otras perimetrales secundarias, conectadas entre sí por pasajes cubiertos o descubiertos, en ocasiones escalonados.
La segunda fase fue proyectada por Luis Gámir en 1943 y estaba integrada por tres manzanas, una de ellas similar a las de la primera fase y las otras dos bastante diferentes con su organización en peine y torres de ocho y nueve plantas.
La fase tercera fue proyectada por Francisco de Asís Cabrero en 1944, esta nueva promoción estaba integrada por dos bloques de 38 viviendas y uno más de 88 enfrentado a uno de los de la primera fase.
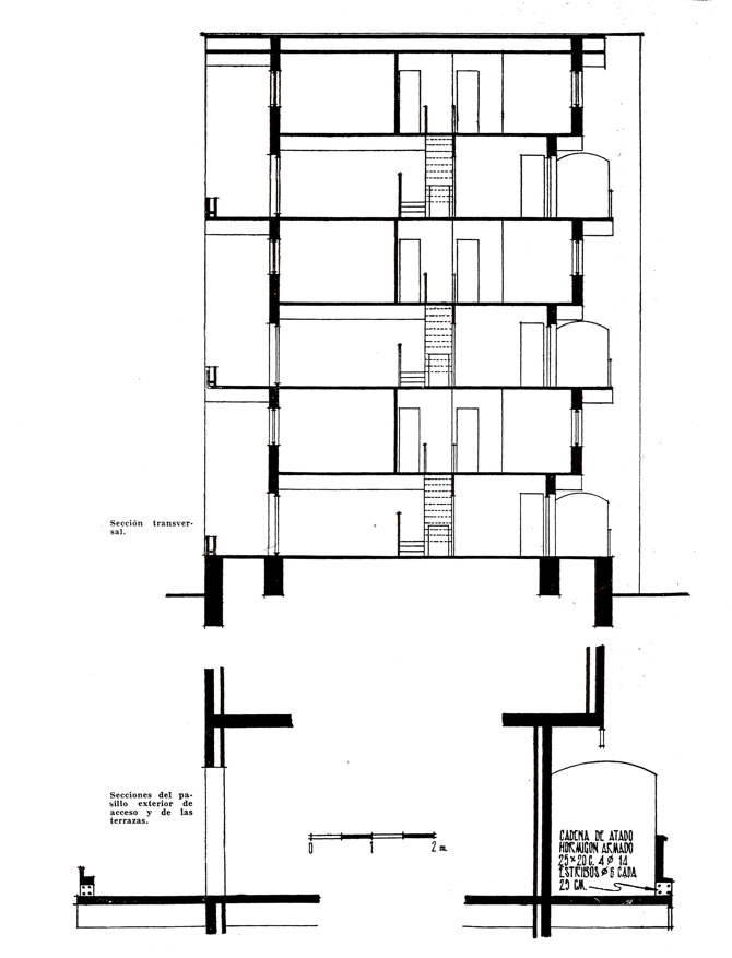
En 1947 redacta Francisco de Asís Cabrero la cuarta fase, integrada en un solo bloque aislado que albergaba 36 viviendas dúplex. El bloque fue concebido como un volumen cúbico de planta rectangular de tres alturas, generado por cuadrados adosados, de unos 12 x 12 m, cada uno de los cuales alberga tres viviendas. Estas viviendas tienen su antecedente en las casas abovedadas de Luis Moya, realizadas en Usera en 1942 con un planteamiento similar, pero sin la racionalización arquitectónica lograda por Cabrero en su proyecto.
Desde el punto de vista arquitectónico el bloque supone un paso importante respecto a los grupos similares contemporáneos por la funcionalidad de sus fachadas, descargadas de todo elemento de ornamentación “imperialista”.
La importancia de la colonia Virgen del Pilar radica en el tratamiento dado a la vivienda social por un grupo de arquitectos que, soslayando las corrientes oficiales megalómanas, imponen las teorías funcionalistas holandesas y alemanas, con especial influencia de las viviendas económicas de Mies van der Rohe y, sobre todo, en el caso de Cabrero, apuntan ya en ellas sus corrientes innovadoras.
Información general
Edificio de viviendas dúplex en la Colonia Virgen del Pilar
AÑO
Opción de visitas
Dirección
C/ Mataelpino, 1
28002 Madrid - Madrid
Latitud: 40.439396
Longitud: -3.675165
Clasificación
Superficie construida
Arquitectos participantes
Información aportada por
Fundación Alejandro de la Sota
Ministerio de Transportes, Movilidad y Agenda urbana (MITMA)
Servicio Histórico del Colegio Oficial de Arquitectos de Madrid (COAM)
Fondo documental DOCOMOMO Ibérico
Enlaces web
Ubicación
https://content.gnoss.ws/carq/https://content.gnoss.ws/carq//imagenes/Documentos/imgsem/61/61f9/61f99f8f-91ea-491e-8530-fdc62eedce10/eaf65f56-c0c8-46b3-8669-0917d85cc7f2.jpg, 0000018979/VP_gustavocatalan.jpg
https://content.gnoss.ws/carq/https://content.gnoss.ws/carq//imagenes/Documentos/imgsem/61/61f9/61f99f8f-91ea-491e-8530-fdc62eedce10/aba73d75-2a03-4743-a21d-26bdded102fc.jpg, 0000018979/CTQ_47_A_FO_FE_1.jpg
https://content.gnoss.ws/carq/https://content.gnoss.ws/carq//imagenes/Documentos/imgsem/61/61f9/61f99f8f-91ea-491e-8530-fdc62eedce10/8b71e607-5b0a-4953-9da2-95338026eabf.jpg, 0000018979/CTQ_47_A_FO_FE_2.jpg
https://content.gnoss.ws/carq/https://content.gnoss.ws/carq//imagenes/Documentos/imgsem/61/61f9/61f99f8f-91ea-491e-8530-fdc62eedce10/bba23115-887c-4200-9885-db8a9f49649f.jpg, 0000018979/CTQ_47_A_FO_FE_3.jpg
https://content.gnoss.ws/carq/https://content.gnoss.ws/carq//imagenes/Documentos/imgsem/61/61f9/61f99f8f-91ea-491e-8530-fdc62eedce10/885c7b7e-fb6d-4e44-9c4b-286b1bc75321.jpg, 0000018979/MAD.F2335_4.jpg
https://content.gnoss.ws/carq/https://content.gnoss.ws/carq//imagenes/Documentos/imgsem/61/61f9/61f99f8f-91ea-491e-8530-fdc62eedce10/c269cc91-0677-48ff-95c9-b57f0fd4a41e.jpg, 0000018979/EDIFICIO DE VIVIENDAS DUPLEX_Foto epoca1.jpg
https://content.gnoss.ws/carq/https://content.gnoss.ws/carq//imagenes/Documentos/imgsem/61/61f9/61f99f8f-91ea-491e-8530-fdc62eedce10/51eda84d-0ee2-4cb2-84e2-7dca637716cc.jpg, 0000018979/EDIFICIO DE VIVIENDAS DUPLEX_Foto epoca2.jpg
https://content.gnoss.ws/carq/https://content.gnoss.ws/carq//imagenes/Documentos/imgsem/61/61f9/61f99f8f-91ea-491e-8530-fdc62eedce10/3157f0e7-901c-410d-a505-139bdf769643.jpg, 0000018979/DSCN5355.JPG
https://content.gnoss.ws/carq/https://content.gnoss.ws/carq//imagenes/Documentos/imgsem/61/61f9/61f99f8f-91ea-491e-8530-fdc62eedce10/33047a2a-cf14-41b0-931c-3d6041a11f70.jpg, 0000018979/DSCN5353.JPG
https://content.gnoss.ws/carq/https://content.gnoss.ws/carq//imagenes/Documentos/imgsem/61/61f9/61f99f8f-91ea-491e-8530-fdc62eedce10/47204b6e-b65e-4eb8-a6e2-06f31d8f211a.jpg, 0000018979/V_MA_A12_43.JPG
https://content.gnoss.ws/carq/https://content.gnoss.ws/carq//imagenes/Documentos/imgsem/61/61f9/61f99f8f-91ea-491e-8530-fdc62eedce10/4ddc4e3e-2c21-4593-964b-cee229130d92.jpg, 0000018979/V_MA_A12_56.jpg
https://content.gnoss.ws/carq/https://content.gnoss.ws/carq//imagenes/Documentos/imgsem/61/61f9/61f99f8f-91ea-491e-8530-fdc62eedce10/a9d8568f-ecb7-4ab3-a863-cc672f25bef5.jpg, 0000018979/V_MA_A12_57.jpg
https://content.gnoss.ws/carq//imagenes/Documentos/imgsem/61/61f9/61f99f8f-91ea-491e-8530-fdc62eedce10/6bc40a84-d5d3-4672-a84c-477e342c181f.jpg, 0000018979/Informes.jpg
https://content.gnoss.ws/carq//imagenes/Documentos/imgsem/61/61f9/61f99f8f-91ea-491e-8530-fdc62eedce10/41efb745-2b5c-4200-a108-8facd3f3f238.jpg, 0000018979/MAD.F2335_planta.jpg
https://content.gnoss.ws/carq//imagenes/Documentos/imgsem/61/61f9/61f99f8f-91ea-491e-8530-fdc62eedce10/58a49e79-6068-4db6-b80e-efcb0b92a4e9.jpg, 0000018979/MAD.F2335_plano.jpg
https://content.gnoss.ws/carq//imagenes/Documentos/imgsem/61/61f9/61f99f8f-91ea-491e-8530-fdc62eedce10/73c424c0-c331-4b5e-9e98-a38d203417fb.jpg, 0000018979/IVIMA_6253.jpg
https://content.gnoss.ws/carq//imagenes/Documentos/imgsem/61/61f9/61f99f8f-91ea-491e-8530-fdc62eedce10/0bbc6865-5d2d-43b0-bd9b-ecaf469e1ed3.jpg, 0000018979/VIRGEN DEL PILAR.jpg
https://content.gnoss.ws/carq//imagenes/Documentos/imgsem/61/61f9/61f99f8f-91ea-491e-8530-fdc62eedce10/a09c276f-7226-4eb9-ada6-c1ce3760e627.jpg, 0000018979/IVIMA_6230 (1).jpg
https://content.gnoss.ws/carq//imagenes/Documentos/imgsem/61/61f9/61f99f8f-91ea-491e-8530-fdc62eedce10/eaf5e484-55d9-48e8-bf09-b1665586ba57.jpg, 0000018979/FCT_P067_01.jpg



