Cargando...
Se trata de una cuidadosa obra de superación de la etapa académica de Mitjans, en que incorpora numerosos descubrimientos que más tarde acontecerán característicos de su obra.
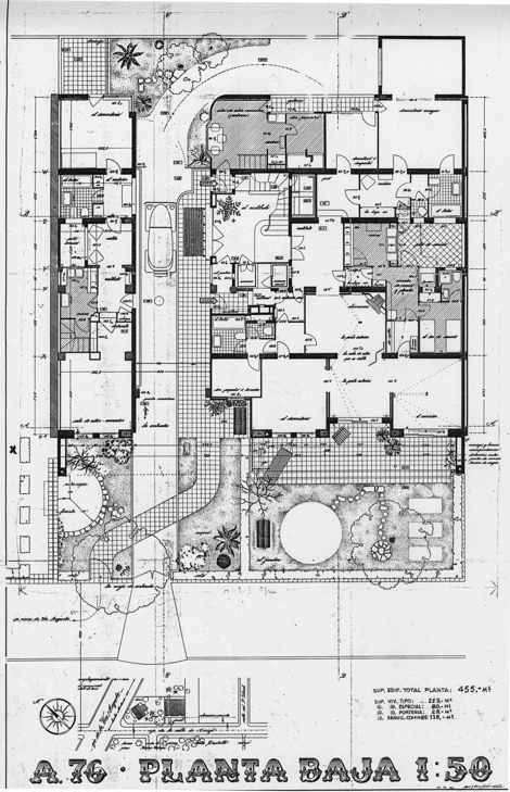
La planta tipo destina toda la crujía posterior a dormitorios y toda la crujía anterior en los espacios de estar, directamente vinculados a un amplio balcón que corre a ambos lados de la fachada. En el interior se evitan los corredores y se crea un recorrido circular alrededor de la cocina, con pequeños ámbitos de transición entre espacios de usos diferentes.
El tratamiento del vestíbulo combina magistralmente algunos elementos sacados del pasado con conceptos claramente modernos, más allá de cualquier adscripción a un estilo histórico determinado.
Información general
Edificio de viviendas para Francisco Oller Costa en Amigó 76
AÑO
Opción de visitas
Dirección
c/ Amigó, 76
08021 Barcelona - Barcelona
Latitud: 41.397700715
Longitud: 2.1417758764
Clasificación
Materiales construcción
Sistema constructivo
Muros de carga de ladrillo, muros y forjados de hormigón
Superficie construida
Arquitectos participantes
Información aportada por
Fundación DOCOMOMO Ibérico
Félix Solaguren-Beascoa de Corral
Enlaces web
-
PB - Archivo Mitjans -
La quinta crujía: Terraza - Archivo Mitjans -
Planta Tipo - Archivo Mitjans
Ubicación
Itinerarios
https://content.gnoss.ws/carq/https://content.gnoss.ws/carq//imagenes/Documentos/imgsem/09/090d/090de4ea-7b36-4f9c-8c37-4c2fee7f3e3a/915617c4-ea40-4021-9d8e-f207b8c8facd.jpg, 0000011365/V_CAT_A15_15_02.jpg
https://content.gnoss.ws/carq/https://content.gnoss.ws/carq//imagenes/Documentos/imgsem/09/090d/090de4ea-7b36-4f9c-8c37-4c2fee7f3e3a/bd7acdc2-d3fa-4e68-b2e2-08309994ff9f.jpg, 0000011365/viviendas amigo .jpg
https://content.gnoss.ws/carq/https://content.gnoss.ws/carq//imagenes/Documentos/imgsem/09/090d/090de4ea-7b36-4f9c-8c37-4c2fee7f3e3a/d31881f0-f69b-4728-afcc-0cc00fea7bb3.jpg, 0000011365/Entrada BW.jpg
https://content.gnoss.ws/carq/https://content.gnoss.ws/carq//imagenes/Documentos/imgsem/09/090d/090de4ea-7b36-4f9c-8c37-4c2fee7f3e3a/9d4f62f1-fd5d-4ad0-a6b8-80303b9fe8ea.jpg, 0000011365/Amigo terraza.jpg
https://content.gnoss.ws/carq//imagenes/Documentos/imgsem/09/090d/090de4ea-7b36-4f9c-8c37-4c2fee7f3e3a/5242fbeb-7080-4dd6-80ac-62fa3134ad43.jpeg, 0000011365/Planta baja mitjans (1)-min.jpeg
https://content.gnoss.ws/carq//imagenes/Documentos/imgsem/09/090d/090de4ea-7b36-4f9c-8c37-4c2fee7f3e3a/e56779fd-1254-4640-97c4-ad9700b5e8a8.jpg, 0000011365/planta001.jpg




