Cargando...
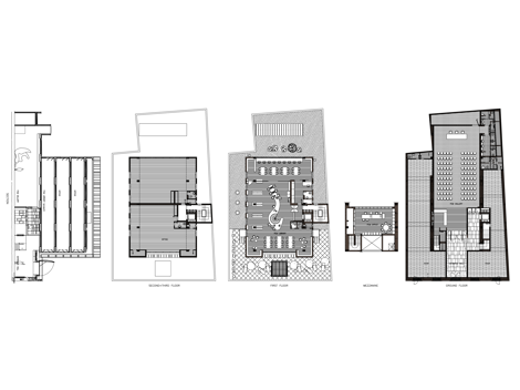
El edificio reestructura en parte, en la planta baja, las dependencias en ruina de una vivienda familiar.
Las plantas superiores se retranquean respecto de la alineación para posibilitar la lectura volumétrica diferenciada entre la obra reestructurada y la obra nueva. Se accede desde la plazuela (Plaza de la Constitución) mediante un vestíbulo distribuidor que organiza el tráfico tanto hacia la galería y salón de actos de la Fundación César Manrique, en planta baja, como hacia la biblioteca de la FCM y las oficinas de las plantas segunda y tercera. Dos locales laterales de uso comercial completan el programa. La biblioteca de primera planta está pendiente de ejecución.
.
Información general
Edificio Plazuela
AÑO
Opción de visitas
Dirección
plza. de la Constitución, 5
35500 Arrecife - Las Palmas
Latitud: 28.958603409
Longitud: -13.54978087
Sistema constructivo
Forjado nervado y pórticos de hormigón armado. Cerramientos y tabiquería de bloque de hormigón ligero. Carpintería de acero y madera. Celosías de acero cortén y piedra volcánica
Superficie construida
Arquitectos participantes
Colaboradores
Prado Sanjuán (arquitecta colaboradora)
Casilda Sabater (arquitecta colaboradora)
Información aportada por
Luis Díaz Feria
Colegio de Arquitectos de Lanzarote (COALZ)
-
Edificio Plazuela: nocturno - Natividad Betancor -
Edificio Plazuela: maqueta digital - Luis Díaz Feria -
Edificio Plazuela: planos - Luis Díaz Feria -
Edificio Plazuela: interior galería FCM - Natividad Betancor -
Edificio Plazuela: interior 3 FCM - Natividad Betancor -
Edificio Plazuela: vestíbulo - Natividad Betancor
Ubicación
Itinerarios
https://content.gnoss.ws/carq/https://content.gnoss.ws/carq//imagenes/Documentos/imgsem/0c/0c3e/0c3e8db4-0b45-4040-85fd-473a2941d9e3/b7cf6e75-fe92-4e5a-a03e-c1a2be5f0896.jpg, 0000029063/Edifcio Plazuela N_Betancor (3).jpg
https://content.gnoss.ws/carq/https://content.gnoss.ws/carq//imagenes/Documentos/imgsem/0c/0c3e/0c3e8db4-0b45-4040-85fd-473a2941d9e3/3cf14203-1f81-4294-b11e-ed7c60eb2b98.png, 0000029063/Ed_Plazuela 3d.png
https://content.gnoss.ws/carq/https://content.gnoss.ws/carq//imagenes/Documentos/imgsem/0c/0c3e/0c3e8db4-0b45-4040-85fd-473a2941d9e3/10d5cbdc-350e-4179-9bb4-22e35a249b06.jpg, 0000029063/Edifcio Plazuela N_Betancor (6).jpg
https://content.gnoss.ws/carq/https://content.gnoss.ws/carq//imagenes/Documentos/imgsem/0c/0c3e/0c3e8db4-0b45-4040-85fd-473a2941d9e3/ed6f137f-cd0a-406d-a928-4a70eb54657e.jpg, 0000029063/Edifcio Plazuela N_Betancor (7).jpg
https://content.gnoss.ws/carq/https://content.gnoss.ws/carq//imagenes/Documentos/imgsem/0c/0c3e/0c3e8db4-0b45-4040-85fd-473a2941d9e3/8a611411-695d-4c12-906d-9a84cec9be40.jpg, 0000029063/Edifcio Plazuela N_Betancor (8).jpg
https://content.gnoss.ws/carq/https://content.gnoss.ws/carq//imagenes/Documentos/imgsem/0c/0c3e/0c3e8db4-0b45-4040-85fd-473a2941d9e3/b38313b3-6a16-4084-a04e-d8d05d127341.jpg, 0000029063/Edifcio Plazuela N_Betancor (10).jpg
https://content.gnoss.ws/carq/https://content.gnoss.ws/carq//imagenes/Documentos/imgsem/0c/0c3e/0c3e8db4-0b45-4040-85fd-473a2941d9e3/ae327868-fc88-4088-99fc-6e185870b79e.jpg, 0000029063/Edifcio Plazuela NB (1).jpg
https://content.gnoss.ws/carq/https://content.gnoss.ws/carq//imagenes/Documentos/imgsem/0c/0c3e/0c3e8db4-0b45-4040-85fd-473a2941d9e3/acd8c6a2-1401-43ef-868d-b0395b66b3b8.jpg, 0000029063/Edifcio Plazuela NB (2).jpg
https://content.gnoss.ws/carq/https://content.gnoss.ws/carq//imagenes/Documentos/imgsem/0c/0c3e/0c3e8db4-0b45-4040-85fd-473a2941d9e3/83ef0354-a581-4e80-8db6-7a1298b393c4.jpg, 0000029063/Edifcio Plazuela NB (4).jpg
https://content.gnoss.ws/carq/https://content.gnoss.ws/carq//imagenes/Documentos/imgsem/0c/0c3e/0c3e8db4-0b45-4040-85fd-473a2941d9e3/c95ec8cc-9d93-43c7-86d1-0132a73b13e4.jpg, 0000029063/Edifcio Plazuela NB (5).jpg
https://content.gnoss.ws/carq//imagenes/Documentos/imgsem/0c/0c3e/0c3e8db4-0b45-4040-85fd-473a2941d9e3/72c11d0f-81f1-41fc-aa3f-cc5cc9ce8870.png, 0000029063/Plazuela plantas.png







