Cargando...
El conjunto se organiza en una Torre Central que engloba 2 TRÉBOLES y enlaza a la altura de la 2ª planta diáfana con el TRÉBOL de Juan Flórez y con la Torre de Medianería. Dando a Costa Rica está el último TRÉBOL que es el de menor altura.
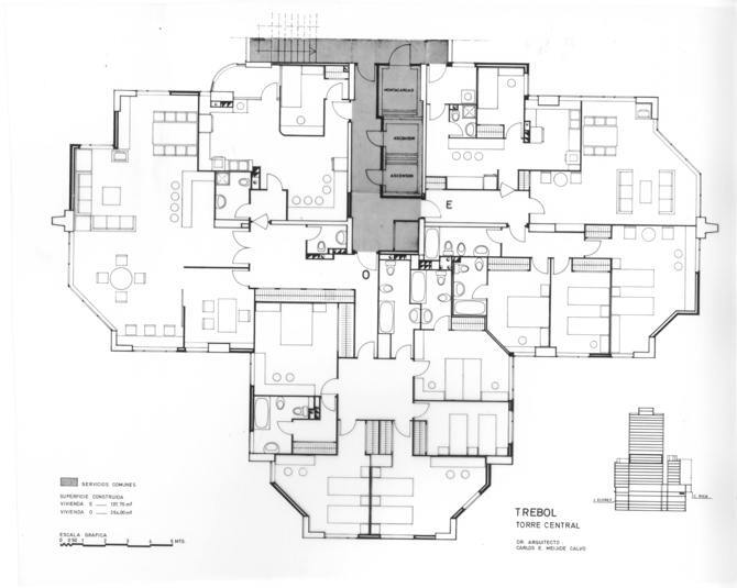
Las viviendas tienen una superficie que oscila entre los 120 y los 150 m², existiendo también viviendas para familias numerosas de 260 m². En total 196 viviendas.
Su programa está compuesto por 3 dormitorios principales y uno de servicio, todos con armarios empotrados, amplia zona de estar-comedor, cocina con oficio y tendedero, dos cuartos de baño completos y un aseo de servicio. Las viviendas del tipo A y A1 disponen de una dependencia más, que puede ser utilizada como dormitorio o incorporada al estar. Las viviendas de familia numerosa tienen 5 dormitorios y un despacho, y el resto del programa, igual con mayores dimensiones.
Tienen una entrada principal y otra secundaria, vestíbulo principal de ascensores con independencia de la escalera y todas sus dependencias son exteriores.
El conjunto tiene bajo la rasante tres sótanos. El primero se dedica a usos comerciales y recibe luz de la calle. Los otros dos se destinan a garaje de las viviendas y albergan también las instalaciones de calefacción, agua caliente central, grupo electrógeno, etc.
A nivel de Juan Flórez, está la planta baja que es sótano en Costa Rica y sobre ella una planta comercial o de oficinas, que es bajo a Costa Rica.
Sobre esta última existe una planta diáfana para esparcimiento de la comunidad que tiene zonas de césped, areneros y juegos de niños, láminas de agua, bancos, etc., y se organiza en 2 niveles. Cubriendo parte de esta planta existe una plataforma accesible desde la planta anterior y que sirve como arranque de las torres de viviendas. Al nivel de la cubierta de la Torre de Juan Flórez una nueva planta diáfana enlaza las terrazas y separa el último cuerpo de la Torre Central.
Finalmente, sobre la cubierta de la TORRE CENTRAL existe un mirador que permitirá contemplar una vista inigualable de toda la ciudad.
La calle de Juan Flórez (en la que se encuentra este edificio) está situada, alejada de la "ciudad vieja", en el borde del ensanche de principios de siglo. El plan de ordenación vigente en la época permitía la construcción de edificios de gran altura, mediante el sistema de "compensación de volúmenes", lo que ha dado lugar a la existencia de estos grandes edificios en toda el área. Un macizamiento del solar con altura uniforme y patios interiores fue desechado y la propiedad optó por utilizar el volumen permitido por las ordenanzas en una edificación en altura y abierta.
La estructura es de hormigón armado, utilizándose los núcleos de comunicaciones, mediante pantallas, como elementos rigidizadores, y unos grandes pilares en el contorno, de sección variable que reciben vigas perimetrales que al tiempo que absorben las torsiones sirven de apoyo al cerramiento. Exteriormente, aparecen vistos los pilares y las vigas, realizándose entre placas un cerramiento tradicional de fábrica de ladrillo con un acabado continuo de Cotegrán (mortero impermeable con árido de garbancillo).
La carpintería de aluminio a haces exteriores está compuesta por un único tipo de ventana proyectante que se combina con elementos fijos. Los tendederos están cerrados exteriormente por unas piezas translúcidas de fibra de vidrio de color cobrizo que impiden las vistas y permiten una ventilación permanente a través de unos paños de lamas móviles.
Se obtiene así un conjunto modulado y unitario que a pesar de su gran proporción de huecos, produce un aspecto compacto que acentúa su carácter de "torre".
En los primeros estudios realizados se planteó la necesidad de conseguir una disposición en planta con la máxima longitud de fachada dentro de la mínima superficie y al mismo tiempo un tanteo previo del volumen disponible, hizo desechar la idea de un solo edificio o torre central, por otra parte, tampoco posible al tener que "tapar" la medianería de Juan Flórez que tiene una altura en su punto más alto de 33 m desde la cota de la calle.
Se adoptó el octógono como aproximación al círculo y agrupándolos de tres en tres surgió el TRÉBOL. Esta disposición permitía una gran superficie de fachada y la posibilidad de adosarlos unos a otros por una de sus caras. Tenía también la ventaja de ofrecer menos resistencia al viento. Planteaba sin embargo algunos inconvenientes, tales como piezas a fachada de planta no ortogonal, que se procuró soslayar estudiando con detenimiento el contorno en cada caso, hasta lograr un buen acoplamiento de la planta. El TREBOL ofrece también buenas posibilidades estructurales y una óptima situación del núcleo vertical de comunicaciones respecto de su accesibilidad a las tres viviendas.
Todo esto determinó una forma espacial que analizada en detalle permitía una buena ordenación dentro del solar.
No quiere esto decir que un rígido formalismo haya presidido la creación de la obra arquitectónica, pero tampoco un rigor purista puede llevar a una simplificación formal que merme sus posibilidades funcionales, en aras de un planteamiento en el que muchas veces no es fácil diferenciar, al analizar el resultado, una posición esteticista de un rigor conceptual.
Existe un intento de obtener un orden jerarquizado para que la influencia sensible, que ha de producirse en el entorno urbano variándolo, no resulte inadecuada.
Información general
Edificio Trébol
AÑO
Opción de visitas
Dirección
C/ Juan Flórez, 56-58
15004 A Coruna - A Coruña -A Coruna
Latitud: 43.364527268
Longitud: -8.408450001
Superficie construida
Arquitectos participantes
Ubicación
https://content.gnoss.ws/carq/https://content.gnoss.ws/carq//imagenes/Documentos/imgsem/9b/9b8d/9b8dff0d-9140-4f05-b3a1-f2d17ffd7685/1672c58d-1dd8-4301-82c9-4007d9b29527.jpeg, 0000106765/Tre769;bol-foto 1bisbis.jpeg
https://content.gnoss.ws/carq/https://content.gnoss.ws/carq//imagenes/Documentos/imgsem/9b/9b8d/9b8dff0d-9140-4f05-b3a1-f2d17ffd7685/b1790576-9f61-4ec7-bdc0-2b4e4fc7c1c9.jpeg, 0000106765/Tre769;bol-foto 2bis.jpeg
https://content.gnoss.ws/carq/https://content.gnoss.ws/carq//imagenes/Documentos/imgsem/9b/9b8d/9b8dff0d-9140-4f05-b3a1-f2d17ffd7685/208be50d-5668-4d5d-a3a5-667f0d0a349f.jpeg, 0000106765/Tre769;bol-foto 4bis (cimientos).jpeg
https://content.gnoss.ws/carq/https://content.gnoss.ws/carq//imagenes/Documentos/imgsem/9b/9b8d/9b8dff0d-9140-4f05-b3a1-f2d17ffd7685/60b81524-7276-4190-ac37-a4d2a0e0e0bb.jpeg, 0000106765/Tre769;bol-foto 13 (obra).jpeg
https://content.gnoss.ws/carq/https://content.gnoss.ws/carq//imagenes/Documentos/imgsem/9b/9b8d/9b8dff0d-9140-4f05-b3a1-f2d17ffd7685/6ef25efe-3cbf-48a9-ba4f-d267f5405e1f.jpeg, 0000106765/Tre769;bol-foto 15.jpeg
https://content.gnoss.ws/carq/https://content.gnoss.ws/carq//imagenes/Documentos/imgsem/9b/9b8d/9b8dff0d-9140-4f05-b3a1-f2d17ffd7685/6a949a74-a0be-4772-b7df-7cfbca74cd69.jpeg, 0000106765/Tre769;bol-foto 17 (plt. dia769;fana).jpeg
https://content.gnoss.ws/carq/https://content.gnoss.ws/carq//imagenes/Documentos/imgsem/9b/9b8d/9b8dff0d-9140-4f05-b3a1-f2d17ffd7685/99ca4478-33e3-49dd-8933-460333ccee56.jpeg, 0000106765/Tre769;bol-foto 19 (plt. dia769;fana).jpeg
https://content.gnoss.ws/carq//imagenes/Documentos/imgsem/9b/9b8d/9b8dff0d-9140-4f05-b3a1-f2d17ffd7685/d5c17d2a-f75f-4f42-b54f-7a76ef81018c.jpg, 0000106765/trebol meijide005.jpg
https://content.gnoss.ws/carq//imagenes/Documentos/imgsem/9b/9b8d/9b8dff0d-9140-4f05-b3a1-f2d17ffd7685/5094d1a6-c976-48a8-afd1-22f5e554229d.jpg, 0000106765/trebol meijide003.jpg
https://content.gnoss.ws/carq//imagenes/Documentos/imgsem/9b/9b8d/9b8dff0d-9140-4f05-b3a1-f2d17ffd7685/03e668d7-d4d7-4ac5-a301-4cc651ef3805.jpeg, 0000106765/IMG_3215.jpeg
https://content.gnoss.ws/carq//imagenes/Documentos/imgsem/9b/9b8d/9b8dff0d-9140-4f05-b3a1-f2d17ffd7685/6c4b328a-9c2c-4258-bd89-c5ec68ee4e91.jpg, 0000106765/trebol meijide004.jpg
https://content.gnoss.ws/carq//imagenes/Documentos/imgsem/9b/9b8d/9b8dff0d-9140-4f05-b3a1-f2d17ffd7685/3ce1ccf4-6e49-41b4-b45c-aa1a5e6a33f9.jpg, 0000106765/trebol meijide007.jpg
https://content.gnoss.ws/carq//imagenes/Documentos/imgsem/9b/9b8d/9b8dff0d-9140-4f05-b3a1-f2d17ffd7685/d5fd7775-8d92-4f4f-abfc-d39d6d447e1f.jpg, 0000106765/trebol meijide006.jpg
https://content.gnoss.ws/carq//imagenes/Documentos/imgsem/9b/9b8d/9b8dff0d-9140-4f05-b3a1-f2d17ffd7685/43996cdc-e650-4a33-a7cd-15a7eb938a03.jpeg, 0000106765/IMG_3152.jpeg
https://content.gnoss.ws/carq//imagenes/Documentos/imgsem/9b/9b8d/9b8dff0d-9140-4f05-b3a1-f2d17ffd7685/d35cb41a-cc45-4f39-baf6-18e2273d0c03.jpeg, 0000106765/Tre769;bol 3-axo rellena.jpeg
https://content.gnoss.ws/carq//imagenes/Documentos/imgsem/9b/9b8d/9b8dff0d-9140-4f05-b3a1-f2d17ffd7685/8810bfad-146e-4017-9d58-8b36d0f87ac0.jpg, 0000106765/trebol meijide002.jpg
https://content.gnoss.ws/carq//imagenes/Documentos/imgsem/9b/9b8d/9b8dff0d-9140-4f05-b3a1-f2d17ffd7685/b6b475b3-81ba-4854-a09c-041602c3ab81.jpeg, 0000106765/IMG_3214.jpeg
https://content.gnoss.ws/carq//imagenes/Documentos/imgsem/9b/9b8d/9b8dff0d-9140-4f05-b3a1-f2d17ffd7685/31bae29b-f5e5-4aaa-85d5-e27aa91ac529.jpeg, 0000106765/IMG_3210.jpeg
https://content.gnoss.ws/carq//imagenes/Documentos/imgsem/9b/9b8d/9b8dff0d-9140-4f05-b3a1-f2d17ffd7685/e3746e3b-e7a3-4118-b1af-8bbad86c516c.jpg, 0000106765/trebol meijide001.jpg
https://content.gnoss.ws/carq//imagenes/Documentos/imgsem/9b/9b8d/9b8dff0d-9140-4f05-b3a1-f2d17ffd7685/7d44ff68-0418-4da8-813b-e3c237dad666.jpeg, 0000106765/Tre769;bol 2-axo portada proy..jpeg
https://content.gnoss.ws/carq//imagenes/Documentos/imgsem/9b/9b8d/9b8dff0d-9140-4f05-b3a1-f2d17ffd7685/ba66871b-d66c-413e-b574-a2c03d3a1065.jpg, 0000106765/trebol meijide009.jpg
https://content.gnoss.ws/carq//imagenes/Documentos/imgsem/9b/9b8d/9b8dff0d-9140-4f05-b3a1-f2d17ffd7685/e5ad75c4-8bb0-426b-892b-8b5e3924ca2b.jpg, 0000106765/trebol meijide008.jpg
https://content.gnoss.ws/carq//imagenes/Documentos/imgsem/9b/9b8d/9b8dff0d-9140-4f05-b3a1-f2d17ffd7685/b796b08c-f28e-4147-a77b-5eb6dbbd8974.jpeg, 0000106765/IMG_3213.jpeg
https://content.gnoss.ws/carq//imagenes/Documentos/imgsem/9b/9b8d/9b8dff0d-9140-4f05-b3a1-f2d17ffd7685/acb979e4-b63a-4f8b-b3be-309d5e10761f.jpeg, 0000106765/Tre769;bol 8-planta doble torre central.jpeg
https://content.gnoss.ws/carq//imagenes/Documentos/imgsem/9b/9b8d/9b8dff0d-9140-4f05-b3a1-f2d17ffd7685/ee6ab1e8-b96f-4a57-9cfc-d807bbcbb487.jpeg, 0000106765/IMG_3216.jpeg



