Cargando...
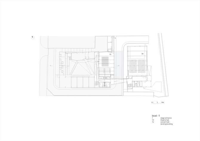
Este centro de ate dramático se sitúa en el Ramonal, en un área de equipamientos docentes. El proyecto aprovecha el desnivel del terreno existente, haciendo corresponder la cota de la cubierta con la rasante de la calle, disponiendo los usos del programa por debajo de este nivel. De esta forma se aprovecha el potencial paisajístico del lugar, y se evita una imagen recortada del edificio, que se presenta a la ciudad como una gran “tarima” escénica, escenario urbano con la ciudad y el paisaje como telón de fondo, un foro público donde los actores serán los ciudadanos y donde la ciudad y el paisaje de la isla cobran importancia como fondo de escena.
El espacio teatral no se reduce al edificio codificado, al que estamos acostumbrados a acudir, puede ser una plaza en la que se erige temporalmente una tarima, alrededor de la cual se reúne el gentío transeúnte.
La idea esencial de tarima como espacio escénico se sustrae aquí de su contexto habitual y se relaciona con los elementos de la vida cotidiana: la calle, la ciudad, el macizo de Anaga y el mar.
Por otro lado, el patio interior cubierto, generado por el despliegue en las tres dimensiones de la superficie de madera de la cubierta, se concibe como una “caja escénica” que se abre hacia la ciudad, y se afirma como punto de referencia espacial del edificio, lugar de relación e intercambio donde la acción, al desplegarse, dibuja el espacio de la representación.
El patio interior, definido como un plano inclinado quebrado, que se adapta a la ligera pendiente del terreno, es el elemento de referencia geográfica del edificio. Su relieve-graderío, patio de butacas al aire libre, se orienta hacia una pequeña plataforma.
Asimismo, este espacio interior de relación vertebra los recorridos peatonales, a través de una senda rampante, que relacionan los diferentes espacios escénicos del edificio, mediante la geometría oblicua del zigzag.
Información general
Escuela de Artes Escénicas de Tenerife
AÑO
Opción de visitas
Dirección
c/ Pedro Suárez Hernández,
38009 Santa Cruz de Tenerife - Santa Cruz de Tenerife
Latitud: 28.459948914
Longitud: -16.27824903
Clasificación
Sistema constructivo
Estructura porticada y pantallas de hormigón armado visto; estructura de vigas metálicas trianguladas en cubierta de patio; fachada ventilada de tablas de madera
Superficie construida
Arquitectos participantes
Colaboradores
Martínez Segovia, Fernández, Pallas y Asociados (Cálculo de estructuras)
Estudios de arquitectura participantes
Información aportada por
Colegio Oficial de Arquitectos de Tenerife, La Gomera y El Hierro (COATFE)
GPY Arquitectos
Enlaces web
-
Cubierta - acceso principal - GPY Arquitectos
Ubicación
Itinerarios
https://content.gnoss.ws/carq/https://content.gnoss.ws/carq//imagenes/Documentos/imgsem/4a/4a60/4a607057-1f79-4c0c-b396-3a2088f7cc7b/7d3f16b2-0d3c-45d0-83aa-541902c13ebc.jpg, 0000029321/01_097_TA_P01.jpg
https://content.gnoss.ws/carq/https://content.gnoss.ws/carq//imagenes/Documentos/imgsem/4a/4a60/4a607057-1f79-4c0c-b396-3a2088f7cc7b/ee8d53a8-9958-43db-a4ca-c25d0012fa6f.jpg, 0000029321/02_097_EP_02_2.jpg
https://content.gnoss.ws/carq/https://content.gnoss.ws/carq//imagenes/Documentos/imgsem/4a/4a60/4a607057-1f79-4c0c-b396-3a2088f7cc7b/4de687a5-e881-4cb9-8f79-b8d8e3d07ad2.jpg, 0000029321/03_097-MG_P_01.jpg
https://content.gnoss.ws/carq/https://content.gnoss.ws/carq//imagenes/Documentos/imgsem/4a/4a60/4a607057-1f79-4c0c-b396-3a2088f7cc7b/37ea472f-874c-4182-aeef-bcf583506216.jpg, 0000029321/04_097_EP_P_02.jpg
https://content.gnoss.ws/carq/https://content.gnoss.ws/carq//imagenes/Documentos/imgsem/4a/4a60/4a607057-1f79-4c0c-b396-3a2088f7cc7b/be4cf655-57e8-46c6-a71f-c158e90cf3a1.jpg, 0000029321/05_097_EP_P06.jpg
https://content.gnoss.ws/carq/https://content.gnoss.ws/carq//imagenes/Documentos/imgsem/4a/4a60/4a607057-1f79-4c0c-b396-3a2088f7cc7b/4af70abe-1747-4ab5-b99c-9285b2814347.jpg, 0000029321/06_097_EP_L05.jpg
https://content.gnoss.ws/carq/https://content.gnoss.ws/carq//imagenes/Documentos/imgsem/4a/4a60/4a607057-1f79-4c0c-b396-3a2088f7cc7b/0876afa6-c372-42e8-ba66-ec5b566c1c6a.jpg, 0000029321/07_097_JP_G_01.jpg
https://content.gnoss.ws/carq/https://content.gnoss.ws/carq//imagenes/Documentos/imgsem/4a/4a60/4a607057-1f79-4c0c-b396-3a2088f7cc7b/22b69176-8e90-4776-a955-72845e88ef52.jpg, 0000029321/08_097_MG_C_01.jpg
https://content.gnoss.ws/carq//imagenes/Documentos/imgsem/4a/4a60/4a607057-1f79-4c0c-b396-3a2088f7cc7b/d7a04990-5178-4501-b8ed-6eb11e430f17.jpg, 0000029321/097_LEVEL -1.jpg
https://content.gnoss.ws/carq//imagenes/Documentos/imgsem/4a/4a60/4a607057-1f79-4c0c-b396-3a2088f7cc7b/8369bf7f-c4b3-490c-877f-5ecc290a1acb.jpg, 0000029321/02_097_LEVEL 3.jpg
https://content.gnoss.ws/carq//imagenes/Documentos/imgsem/4a/4a60/4a607057-1f79-4c0c-b396-3a2088f7cc7b/5a257821-66ab-4efc-a4fb-df06c7de1012.jpg, 0000029321/01_097_SITE PLAN.jpg
https://content.gnoss.ws/carq//imagenes/Documentos/imgsem/4a/4a60/4a607057-1f79-4c0c-b396-3a2088f7cc7b/f80a6c0e-0198-46ac-8767-b64d2db0a16e.jpg, 0000029321/097_SECTION PATIO - VIEW TOWARDS NORTH.jpg
https://content.gnoss.ws/carq//imagenes/Documentos/imgsem/4a/4a60/4a607057-1f79-4c0c-b396-3a2088f7cc7b/a995af47-3140-472e-8b27-d19d04565090.jpg, 0000029321/07_097_SKETCH ROOF TERRACE.jpg
https://content.gnoss.ws/carq//imagenes/Documentos/imgsem/4a/4a60/4a607057-1f79-4c0c-b396-3a2088f7cc7b/4f20834d-6ee3-4760-b554-af0664c0b444.gif, 0000029321/097_JAGP_CROQUIS_05.gif
https://content.gnoss.ws/carq//imagenes/Documentos/imgsem/4a/4a60/4a607057-1f79-4c0c-b396-3a2088f7cc7b/7f7a7b21-1f93-4a46-bc0a-dd9e587d3054.jpg, 0000029321/097_LEVEL 2.jpg



