Cargando...
Se trata de un buen ejemplo de renovación edificatoria en el ámbito urbano.
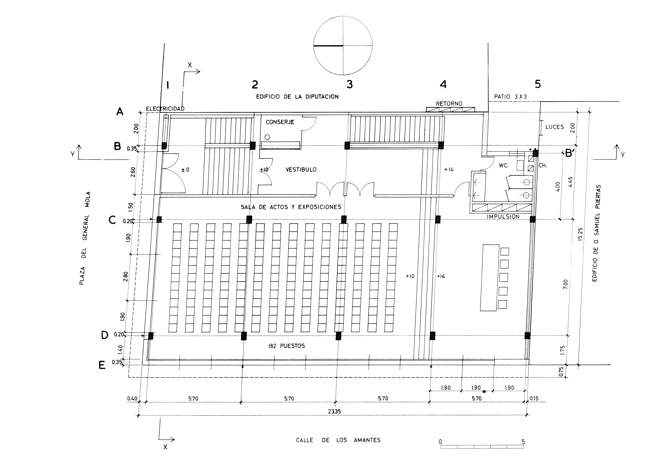
El edificio está emplazado en el centro histórico de la ciudad de Teruel, frente a la catedral y su torre mudéjar de ladrillo. Destinado a la enseñanza, se resuelve dentro de un pequeño solar en esquina y entre medianeras, que acomoda el programa de manera estratificada, ajustado por las alineaciones y la escasa superficie del solar. La altura de cornisa de los edificios colindantes, con las que dialoga, y un sencillo esquema estructural de dos crujías asimétricas y paralelas a la fachada completan la resolución funcional. Exteriormente, el edificio consigue un equilibrio entre las respuestas funcionales a los problemas de iluminación y ventilación de un centro educativo y también con el respeto a las invariantes del entorno. La importancia y volumen de las cubiertas, los aleros como elementos de sombra y coronación de la edificación, el predominio del macizo sobre el hueco, la importancia del basamento y la funcional asimetría de los huecos en la composición consiguen integrar de manera ejemplar este edificio contemporáneo en un entorno de expresividad singular.
.
Información general
Escuela de Artes y Oficios Artísticos de Teruel
AÑO
Opción de visitas
Dirección
plza. de la Catedral, 8
44001 Teruel - Teruel
Latitud: 40.343375577
Longitud: -1.107792451
Clasificación
Superficie construida
Arquitectos participantes
Información aportada por
Archivo `José María García de Paredes´, MNCARS. Documentación Ángela García de Paredes
Ubicación
Itinerarios
https://content.gnoss.ws/carq/https://content.gnoss.ws/carq//imagenes/Documentos/imgsem/5a/5a12/5a121e00-e80d-4bc4-aeaa-0c1394b88d56/dfeaf986-0a23-40d6-a0e4-f48a3d02d4f5.jpg, 0000011474/27 foto1.jpg
https://content.gnoss.ws/carq//imagenes/Documentos/imgsem/5a/5a12/5a121e00-e80d-4bc4-aeaa-0c1394b88d56/af055311-458a-4993-904e-6bb35f5fa149.jpg, 0000011474/27 palta.jpg
https://content.gnoss.ws/carq//imagenes/Documentos/imgsem/5a/5a12/5a121e00-e80d-4bc4-aeaa-0c1394b88d56/06a6e280-a6c8-471c-ad4d-c0d5e4c2c738.jpg, 0000011474/27 pbaja.jpg



