Cargando...
El proyecto se basa en los datos del lugar: las vistas al mar, la presencia de una playa cercana y, de frente, la silueta de la ciudad de Cambrils.
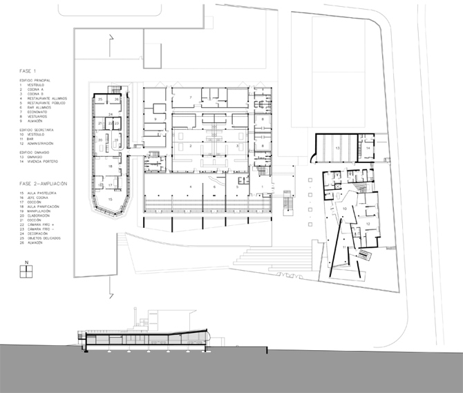
El programa, de gran complejidad, se ha abordado en dos fases de actuación: la primera fase desarrolla el programa del segundo ciclo de formación profesional. Para esta fase se han dispuesto dos cuerpos: en la planta baja, las cocinas y los restaurantes en un volumen cuadrado. El segundo edificio, de dos plantas, se superpone al primero y alberga el programa hotelero y escolar.
La segunda fase desarrolla el programa del primer ciclo y se ubica en un cuerpo prismático de tres plantas y un anexo de una planta. La entrada al primer edificio se realiza lateralmente, a través de una estructura libre de grandes muros. El jardín se divide en dos zonas: la primera, en la entrada, tiene un carácter más funcional, pavimentada con panot y grava. La segunda zona, al frente, es más naturalista, con terrazas y desniveles ajardinados, en contacto con la playa y vistas al mar.
Información general
Escuela de hostelería y turismo de Cambrils
AÑO
Opción de visitas
Dirección
c/ Estel, 2
43850 Cambrils - Tarragona
Latitud: 41.063534548
Longitud: 1.0459381341
Clasificación
Superficie construida
Premios
Arquitectos participantes
Información aportada por
Víctor Rahola Aguadé
EUMies Award
-
Víctor Rahola arquitecte -
Víctor Rahola arquitecte -
José Hevia -
José Hevia
Ubicación
https://content.gnoss.ws/carq/https://content.gnoss.ws/carq//imagenes/Documentos/imgsem/d6/d625/d625cf5e-fd5e-4438-9c3c-a5f61511112f/a501a3a0-2a15-4810-9480-de0ad0e77b83.jpg, 0000004499/Escuela cambrils.jpg
https://content.gnoss.ws/carq/https://content.gnoss.ws/carq//imagenes/Documentos/imgsem/d6/d625/d625cf5e-fd5e-4438-9c3c-a5f61511112f/fdff8ab6-57d7-45fe-82bb-91bf8366d868.jpg, 0000004499/IMG_cambrils_03.jpg
https://content.gnoss.ws/carq/https://content.gnoss.ws/carq//imagenes/Documentos/imgsem/d6/d625/d625cf5e-fd5e-4438-9c3c-a5f61511112f/051da025-aac0-4da8-8a31-8a8269bc0a8d.jpg, 0000004499/IMG_cambrils_06.jpg
https://content.gnoss.ws/carq/https://content.gnoss.ws/carq//imagenes/Documentos/imgsem/d6/d625/d625cf5e-fd5e-4438-9c3c-a5f61511112f/aad16369-5f6a-4a33-871a-d6862ed121f5.jpg, 0000004499/IMG_cambrils_07.jpg
https://content.gnoss.ws/carq/https://content.gnoss.ws/carq//imagenes/Documentos/imgsem/d6/d625/d625cf5e-fd5e-4438-9c3c-a5f61511112f/8145a9b6-6fac-4950-9f1f-308b8fd4238a.jpg, 0000004499/IMG_cambrils_09.jpg
https://content.gnoss.ws/carq/https://content.gnoss.ws/carq//imagenes/Documentos/imgsem/d6/d625/d625cf5e-fd5e-4438-9c3c-a5f61511112f/27b9069b-f76e-4a86-bc2b-972792be6bf5.jpg, 0000004499/IMG_cambrils_13.jpg
https://content.gnoss.ws/carq//imagenes/Documentos/imgsem/d6/d625/d625cf5e-fd5e-4438-9c3c-a5f61511112f/75dcb125-0ea7-4959-a75f-759c0d615367.jpg, 0000004499/IMG_cambrils_01.jpg
https://content.gnoss.ws/carq//imagenes/Documentos/imgsem/d6/d625/d625cf5e-fd5e-4438-9c3c-a5f61511112f/bc8548cc-5430-4554-899e-bb08098bbc35.jpg, 0000004499/IMG_cambrils_02.jpg





