Cargando...
Vallvidrera es un barrio situado en la parte alta de la montaña del Tibidabo. De la plaza de Vallvidrera, que está situada en el centro del barrio, sale la calle d’Elisa Moragas i Badia (antigua calle Reis Catòlics) que va hacia el campo de fútbol donde se sitúa el límite del antiguo pueblo. En este límite, el Ayuntamiento disponía de una parcela dividida por la calle d’Elisa Moragas i Badia. Este hecho condicionó de manera decisiva la composición del proyecto.
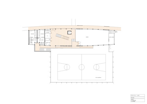
Se decidió formalizar dos volúmenes a cada lado de la calle d’Elisa Moragas i Badia siguiendo la ligera curvatura de la calle y uniéndolos superiormente por un puente. El terreno tiene pendiente, la parte más alta se encuentra orientada a norte y la parte más baja al sur. La edificación asentada en la parte más alta está destinada a aulas. Tiene una planta similar a un tren con el corredor lateral y la sucesión de aulas. La edificación se desarrolla en planta baja y un piso, lo que permite que el corredor interior tenga doble altura y la planta superior actúe como un balcón abierto sobre la inferior. Este corredor se entiende como una calle que relaciona las aulas como un gran espacio público.
Las escaleras se disponen en los extremos y en el centro con la intención de mejorar al máximo la relación entre las dos plantas. La ligera curvatura del edificio, siguiendo la calle, evoca la imagen del tren tomando una curva. Esta ligera curvatura también permite componer el otro edificio con una gran similitud a la planta de un barco. En este se sitúan el comedor y la cocina, los despachos, el gimnasio y los vestuarios. La escalera que une las dos plantas del edificio aparece en el “hall” del acceso principal de manera muy similar al acceso de cola de un avión.
Estas referencias a medios de transporte no se han de entender, en todo caso, como una búsqueda tópica deliberada sino como el resultado de un proceso de trabajo. Bajo el puente, en la zona central, se abre en el edificio-barco una gran ventana hacia el valle. Es el espacio de acceso principal, íntimamente ligado a la pista polideportiva, pensado sobre todo para la mayoría de alumnos que llegan en autocar o coche privado. Los alumnos que van a pie desde Vallvidrera pueden acceder directamente al extremo del edificio de las aulas. Desde las aulas de planta baja del edificio-tren se accede al patio junto al campo de fútbol, mientras que la correspondiente al edificio-barco se comunica directamente con la pista polideportiva; la cubierta del edificio-barco es el patio de juegos de preescolar, en una referencia evidente a la Unité de Le Corbusier.
Observando la sección transversal, puede verse que el edificio actúa de elemento conector y vertebrador de la topografía existente. Dada la privilegiada situación del edificio en el paisaje, se ha cuidado la relación visual de permeabilidad interior-exterior. Al entender la escuela como un lugar de actividad constante, todos los paramentos verticales longitudinales son permeables, con la intención de cuidar al máximo las relaciones visuales. Se ha cuidado especialmente la protección solar ya que todas las aulas están orientadas a norte. También se ha tenido especial esmero con la acústica de las aulas, ya que el volumen de estas está compuesto por muros de hormigón que las separan.
Información general
Escuela Nabí en Vallvidrera
AÑO
Opción de visitas
Dirección
c/ d'Elisa Moragas i Badia, 38
08017 Vallvidrera - Barcelona
Latitud: 41.416348309
Longitud: 2.1014730798
Clasificación
Materiales construcción
Sistema constructivo
Muros de hormigón texturados. Encofrados con cañizo y con planchas de acero corten.
Superficie construida
Arquitectos participantes
Estudios de arquitectura participantes
Información aportada por
Zazurca arquitectos
Enlaces web
-
ESCUELA NABI - Zazurca arquitectos -
ESCUELA NABI - Zazurca arquitectos -
ESCUELA NABI - Zazurca arquitectos
Ubicación
https://content.gnoss.ws/carq/https://content.gnoss.ws/carq//imagenes/Documentos/imgsem/bf/bfca/bfcadeb9-0d04-4dc2-b2dd-a6e358fe5090/685a8068-784c-41cd-837b-d2892fbb5a9f.jpg, 0000027893/ESCUELA NABI 1.jpg
https://content.gnoss.ws/carq/https://content.gnoss.ws/carq//imagenes/Documentos/imgsem/bf/bfca/bfcadeb9-0d04-4dc2-b2dd-a6e358fe5090/cdfd7540-facc-4a7d-aff7-13937ed63e4f.jpg, 0000027893/FOTOS ESCUELA NABI_Pagina_5.jpg
https://content.gnoss.ws/carq/https://content.gnoss.ws/carq//imagenes/Documentos/imgsem/bf/bfca/bfcadeb9-0d04-4dc2-b2dd-a6e358fe5090/c7972358-7038-4972-b34a-9390792eedac.jpg, 0000027893/FOTOS ESCUELA NABI_Pagina_6.jpg
https://content.gnoss.ws/carq/https://content.gnoss.ws/carq//imagenes/Documentos/imgsem/bf/bfca/bfcadeb9-0d04-4dc2-b2dd-a6e358fe5090/d03a86ed-54be-4e2b-8e7d-aa3ffe73c253.jpg, 0000027893/FOTOS ESCUELA NABI_Pagina_7.jpg
https://content.gnoss.ws/carq/https://content.gnoss.ws/carq//imagenes/Documentos/imgsem/bf/bfca/bfcadeb9-0d04-4dc2-b2dd-a6e358fe5090/6db91f89-f1cc-42e2-aed4-ebaf685ac128.jpg, 0000027893/FOTOS ESCUELA NABI_Pagina_2.jpg
https://content.gnoss.ws/carq/https://content.gnoss.ws/carq//imagenes/Documentos/imgsem/bf/bfca/bfcadeb9-0d04-4dc2-b2dd-a6e358fe5090/6ac3ffc2-8251-4288-95b7-7a11b6a4c984.jpg, 0000027893/FOTOS ESCUELA NABI_Pagina_3.jpg
https://content.gnoss.ws/carq/https://content.gnoss.ws/carq//imagenes/Documentos/imgsem/bf/bfca/bfcadeb9-0d04-4dc2-b2dd-a6e358fe5090/d122da43-d846-4054-807e-058e9167ab87.jpg, 0000027893/FOTOS ESCUELA NABI_Pagina_4.jpg
https://content.gnoss.ws/carq//imagenes/Documentos/imgsem/bf/bfca/bfcadeb9-0d04-4dc2-b2dd-a6e358fe5090/3c5b1c57-79c6-45e0-980f-a948cd3e7a30.jpg, 0000027893/PLANOS ESCUELA NABI-3.jpg
https://content.gnoss.ws/carq//imagenes/Documentos/imgsem/bf/bfca/bfcadeb9-0d04-4dc2-b2dd-a6e358fe5090/a05608ab-a0f0-4bf3-98ac-362ca187ccc6.jpg, 0000027893/PLANOS ESCUELA NABI-8.jpg
https://content.gnoss.ws/carq//imagenes/Documentos/imgsem/bf/bfca/bfcadeb9-0d04-4dc2-b2dd-a6e358fe5090/8c91c48c-8051-4b88-b8cb-5ad8f5089862.jpg, 0000027893/PLANOS ESCUELA NABI-2.jpg
https://content.gnoss.ws/carq//imagenes/Documentos/imgsem/bf/bfca/bfcadeb9-0d04-4dc2-b2dd-a6e358fe5090/a5d69026-8290-456f-a8c9-e4496abf493a.jpg, 0000027893/PLANOS ESCUELA NABI-5.jpg
https://content.gnoss.ws/carq//imagenes/Documentos/imgsem/bf/bfca/bfcadeb9-0d04-4dc2-b2dd-a6e358fe5090/6acffddf-e1b1-4238-8b83-57b5b98635db.jpg, 0000027893/PLANOS ESCUELA NABI-10.jpg
https://content.gnoss.ws/carq//imagenes/Documentos/imgsem/bf/bfca/bfcadeb9-0d04-4dc2-b2dd-a6e358fe5090/00637b11-968f-4957-a8a9-6f02056ebc8b.jpg, 0000027893/PLANOS ESCUELA NABI-7.jpg
https://content.gnoss.ws/carq//imagenes/Documentos/imgsem/bf/bfca/bfcadeb9-0d04-4dc2-b2dd-a6e358fe5090/00a9d25b-865d-4918-8c35-2973874b47d1.jpg, 0000027893/PLANOS ESCUELA NABI-13.jpg
https://content.gnoss.ws/carq//imagenes/Documentos/imgsem/bf/bfca/bfcadeb9-0d04-4dc2-b2dd-a6e358fe5090/f62ee841-3e8e-4761-96a0-172fe6abe39b.jpg, 0000027893/PLANOS ESCUELA NABI-12.jpg
https://content.gnoss.ws/carq//imagenes/Documentos/imgsem/bf/bfca/bfcadeb9-0d04-4dc2-b2dd-a6e358fe5090/f7660e32-9b19-4571-baf8-c867a7d7fe7e.jpg, 0000027893/PLANOS ESCUELA NABI-11.jpg
https://content.gnoss.ws/carq//imagenes/Documentos/imgsem/bf/bfca/bfcadeb9-0d04-4dc2-b2dd-a6e358fe5090/857ada91-2d9f-44c2-96d8-7b81a24d24db.jpg, 0000027893/PLANOS ESCUELA NABI-9.jpg
https://content.gnoss.ws/carq//imagenes/Documentos/imgsem/bf/bfca/bfcadeb9-0d04-4dc2-b2dd-a6e358fe5090/c3acc122-786b-42b3-ac1a-6057ba254593.jpg, 0000027893/PLANOS ESCUELA NABI-4.jpg
https://content.gnoss.ws/carq//imagenes/Documentos/imgsem/bf/bfca/bfcadeb9-0d04-4dc2-b2dd-a6e358fe5090/8180cea7-bc4d-4a66-ac46-7343d3547f3d.jpg, 0000027893/PLANOS ESCUELA NABI-6.jpg




