Cargando...
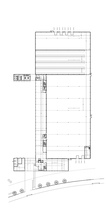
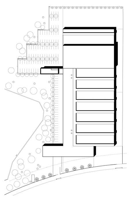
El complejo comprende las naves de fabricación, los almacenes logísticos de 16 metros de altura, las oficinas propias de la fábrica y las que pertenecen al holding de empresas (situadas en la primera planta) además de un edificio aislado que contiene los vestuarios y la cantina.
Las oficinas envuelven la nave de la fabrica, se sitúan haciendo frente a un bosque con magníficas vistas y forman una T de dos niveles creando un gran porche-entrada al conjunto. El edificio es de estructura metálica. En cuanto a los materiales de cerramiento, éstos son placas prefabricadas de hormigón para la zona de fabrica y chapa minionda para las oficinas. El complejo está dedicado a la producción de etiquetas industriales.
Contiene dos empresas, Caposa y Sinel. Comparten las instalaciones de fabricación y las oficinas. Los espacios, pues, han debido ser organizados de forma dinámica para que permitiesen esta flexibilidad, sobretodo pensando en el futuro.
Información general
Fábrica y oficinas en Caposa
AÑO
Opción de visitas
Dirección
avda. del Castell de Barberà, 37
08210 Barbera del Valles - Barcelona
Latitud: 41.522999255
Longitud: 2.1445287039
Materiales construcción
Superficie construida
Estudios de arquitectura participantes
Información aportada por
VEGAP
Ubicación
Docs
https://content.gnoss.ws/carq//imagenes/Documentos/imgsem/3e/3e78/3e789dde-6700-48c8-8f59-4420bc2c8d3a/97d86e28-b751-4d14-a27b-f7d4a129a1e3.jpg, 0000027127/A0863_BACH-MORA Arquitectes (1).jpg
https://content.gnoss.ws/carq//imagenes/Documentos/imgsem/3e/3e78/3e789dde-6700-48c8-8f59-4420bc2c8d3a/047214cb-7caa-4940-9731-b5ad9c868618.jpg, 0000027127/A0863_BACH-MORA Arquitectes (3).jpg
https://content.gnoss.ws/carq//imagenes/Documentos/imgsem/3e/3e78/3e789dde-6700-48c8-8f59-4420bc2c8d3a/2f7b88e0-cdce-44fa-8f71-9691b1adf92d.jpg, 0000027127/A0863_BACH-MORA Arquitectes (2).jpg



