Cargando...
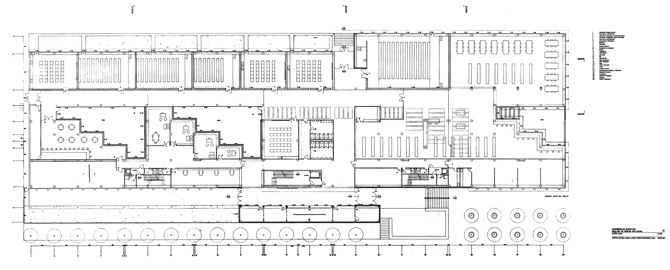
Alineados en la fachada sur se encuentran los seminarios y los despachos de profesores. La entrada principal, en el centro de esta fachada y en un pequeño volumen adosado. En la cara norte, los laboratorios y las aulas de prácticas –ampliaciones del bloque lineal de la cara sur– organizados en cuatro volúmenes que se escalonan en planta.
Por la fachada oeste se entra al bar y al almacén; por la del este, y a través de un patio con rampa, al aparcamiento, a la litoteca, a los almacenes y a las instalaciones.
Información general
Facultad de Geología. UPC
AÑO
Opción de visitas
Dirección
c/ Martí i Franquès,
08028 Barcelona - Barcelona
Latitud: 41.384395409
Longitud: 2.1197335904
Clasificación
Materiales construcción
Superficie construida
Arquitectos participantes
Estudios de arquitectura participantes
Información aportada por
José Antonio Martínez Lapeña & Elías Torres Architects
Ubicación
Docs
https://content.gnoss.ws/carq//imagenes/Documentos/imgsem/a8/a8b0/a8b0fab1-85bd-4de5-913f-4bf794fce28c/c0be2ca5-efef-4948-85bf-45f387ed1e53.jpg, 0000020259/037_3a.jpg
https://content.gnoss.ws/carq//imagenes/Documentos/imgsem/a8/a8b0/a8b0fab1-85bd-4de5-913f-4bf794fce28c/d078f4c8-6683-4184-9fda-f5853f6e6373.jpg, 0000020259/037_3b.jpg
https://content.gnoss.ws/carq//imagenes/Documentos/imgsem/a8/a8b0/a8b0fab1-85bd-4de5-913f-4bf794fce28c/d7b7b5bd-dcad-4f54-870d-869ed64d7540.jpg, 0000020259/037_4.jpg



