Cargando...
Josep Lluis Mateo
Proyecto: 2004-2005
Construcción: 2007-2011
Superficie construida: 7.512 m2
Superficie del emplazamiento: 1.000 m2
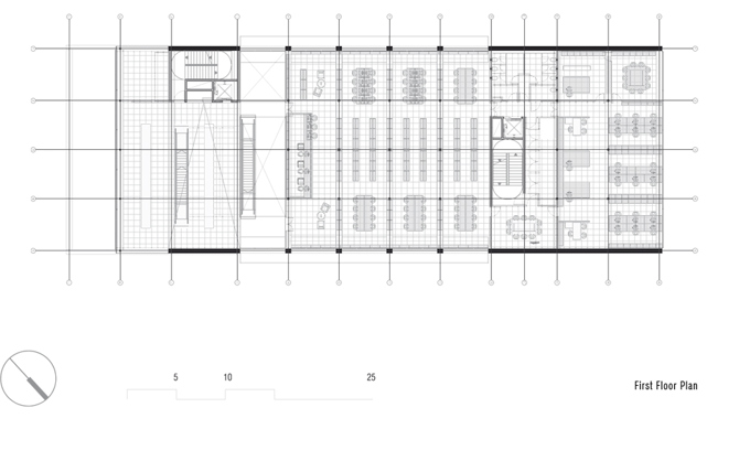
Sobre la forma…
Las ruinas marcan la estructura de los edificios. El foro romano visualiza el plano de cimentaciones y albañales.
En el casco antiguo, mi edificio pretende expresarse como pura estructura, sin revestimientos ni acabados.
Los muros-viga de hormigón visto que forman las fachadas, siendo muy diversos, son de la familia de los desvencijados muros vecinos, que enseñan a través de sus desconchados su masa central originaria.
Sobre el muro se yuxtaponen filtros. Es una metáfora cinematográfica pero no solo conceptual, sino sobre todo física, sensible. En el casco antiguo, con relaciones muy estrechas entre edificios, la interacción debe mediarse, filtrarse. Y esto se produce a través de diversos artilugios, con una vaga referencia cinematográfica.
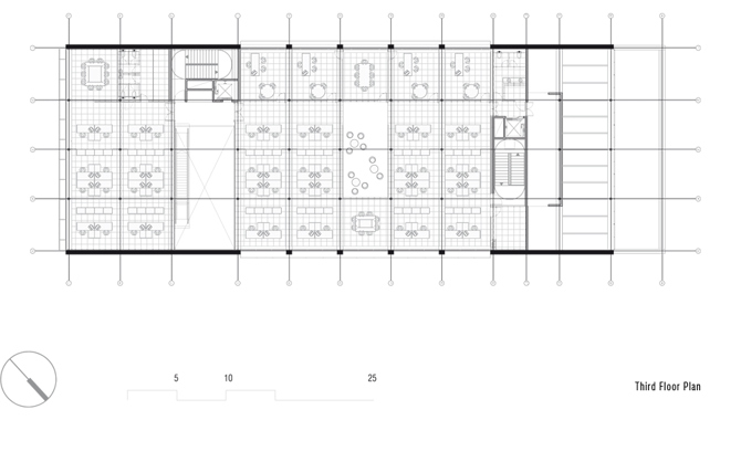
Sobre el espacio…
El espacio se articula sobre dos movimientos:
- a) El descenso a la oscuridad de los cines, con reflexión de los espectadores (a su vez reflejados, actores a través de un conjunto de espejos).
- b) El ascenso hacia la luz, hacia los lugares de trabajo.
Dos patios, conectados pero no continuos, acompañan y construyen el movimiento.
Sobre la sostenibilidad…
- Gran aislamiento, paredes gruesas, control solar (reducción de energía).
- Control informático especial de la simultaneidad de los gastos energéticos (Grupo JG).
- Acabado fuerte y directamente detallado, para resistir la zona difícil y el uso intensivo.
Información general
Filmoteca de Catalunya
AÑO
Opción de visitas
Dirección
plza. de Salvador Seguí, 1
08001 Barcelona - Barcelona
Latitud: 41.3784206
Longitud: 2.1712327999
Clasificación
Sistema constructivo
El edificio se expresa como pura estructura, sin revestimientos ni acabado. Los muros-viga de hormigón visto construyen las fachadas. Sobre el muro se yuxtaponen filtros a través de diversos artilugios.
Superficie construida
Premios
Arquitectos participantes
Estudios de arquitectura participantes
Información aportada por
Mateo Arquitectura
Ubicación
https://content.gnoss.ws/carq/https://content.gnoss.ws/carq//imagenes/Documentos/imgsem/ed/ed0c/ed0ce5ab-64ab-4676-af16-a8df68071efd/da39764e-3889-4d4d-a0b3-f3abf364d094.jpg, 0000001537/filmoteca.jpg
https://content.gnoss.ws/carq/https://content.gnoss.ws/carq//imagenes/Documentos/imgsem/ed/ed0c/ed0ce5ab-64ab-4676-af16-a8df68071efd/3f404eb2-b751-4dbe-9af0-2a36acb2649e.jpg, 0000001537/03.jpg
https://content.gnoss.ws/carq/https://content.gnoss.ws/carq//imagenes/Documentos/imgsem/ed/ed0c/ed0ce5ab-64ab-4676-af16-a8df68071efd/16d67928-7b05-4f55-be60-473b20e16208.jpg, 0000001537/05.jpg
https://content.gnoss.ws/carq/https://content.gnoss.ws/carq//imagenes/Documentos/imgsem/ed/ed0c/ed0ce5ab-64ab-4676-af16-a8df68071efd/41af52fe-9784-4abc-af90-43e0bb1f3f42.jpg, 0000001537/06.jpg
https://content.gnoss.ws/carq/https://content.gnoss.ws/carq//imagenes/Documentos/imgsem/ed/ed0c/ed0ce5ab-64ab-4676-af16-a8df68071efd/df32ccc2-c068-484c-90d5-b6fcc59c0f93.jpg, 0000001537/07.jpg
https://content.gnoss.ws/carq/https://content.gnoss.ws/carq//imagenes/Documentos/imgsem/ed/ed0c/ed0ce5ab-64ab-4676-af16-a8df68071efd/87bfde26-ca98-4fd9-ab2f-fd74de51d2a9.jpg, 0000001537/08.jpg
https://content.gnoss.ws/carq/https://content.gnoss.ws/carq//imagenes/Documentos/imgsem/ed/ed0c/ed0ce5ab-64ab-4676-af16-a8df68071efd/66197f09-0970-4a70-a228-b918864ceb03.jpg, 0000001537/09.jpg
https://content.gnoss.ws/carq/https://content.gnoss.ws/carq//imagenes/Documentos/imgsem/ed/ed0c/ed0ce5ab-64ab-4676-af16-a8df68071efd/4ad345a7-5f42-457e-be5a-f94d57587c4b.jpg, 0000001537/10.jpg
https://content.gnoss.ws/carq/https://content.gnoss.ws/carq//imagenes/Documentos/imgsem/ed/ed0c/ed0ce5ab-64ab-4676-af16-a8df68071efd/64338bca-229d-4a99-87cf-4d83ffa8bb02.jpg, 0000001537/11.jpg
https://content.gnoss.ws/carq/https://content.gnoss.ws/carq//imagenes/Documentos/imgsem/ed/ed0c/ed0ce5ab-64ab-4676-af16-a8df68071efd/0a6dfca0-2329-4846-99e6-f25b89af781a.jpg, 0000001537/02_.JPG
https://content.gnoss.ws/carq//imagenes/Documentos/imgsem/ed/ed0c/ed0ce5ab-64ab-4676-af16-a8df68071efd/0aff1db0-a0e6-4bae-b64e-92fa40d0044a.jpg, 0000001537/01.jpg
https://content.gnoss.ws/carq//imagenes/Documentos/imgsem/ed/ed0c/ed0ce5ab-64ab-4676-af16-a8df68071efd/df51f155-b6bf-4952-9aae-fc0de24a55a2.jpg, 0000001537/05.jpg
https://content.gnoss.ws/carq//imagenes/Documentos/imgsem/ed/ed0c/ed0ce5ab-64ab-4676-af16-a8df68071efd/ebdbb2d5-d686-495d-bbf9-0aba4acd82bd.jpg, 0000001537/02.jpg
https://content.gnoss.ws/carq//imagenes/Documentos/imgsem/ed/ed0c/ed0ce5ab-64ab-4676-af16-a8df68071efd/f82256db-dcd6-48b9-a320-ac0fce5655fc.jpg, 0000001537/04.jpg
https://content.gnoss.ws/carq//imagenes/Documentos/imgsem/ed/ed0c/ed0ce5ab-64ab-4676-af16-a8df68071efd/bdab213c-555a-4688-83ec-e53928f10a08.jpg, 0000001537/06.jpg
https://content.gnoss.ws/carq//imagenes/Documentos/imgsem/ed/ed0c/ed0ce5ab-64ab-4676-af16-a8df68071efd/5ebfb68f-858a-41b3-9cba-ef06b135d739.jpg, 0000001537/07.jpg
https://content.gnoss.ws/carq//imagenes/Documentos/imgsem/ed/ed0c/ed0ce5ab-64ab-4676-af16-a8df68071efd/23ebaf67-7643-4bd8-b67f-e970c3485986.jpg, 0000001537/08.jpg
https://content.gnoss.ws/carq//imagenes/Documentos/imgsem/ed/ed0c/ed0ce5ab-64ab-4676-af16-a8df68071efd/fcdf1332-fa95-4936-aa77-ad135354d0ea.jpg, 0000001537/11.jpg
https://content.gnoss.ws/carq//imagenes/Documentos/imgsem/ed/ed0c/ed0ce5ab-64ab-4676-af16-a8df68071efd/00b22bc4-744a-438c-8196-f32a5fbf55bc.jpg, 0000001537/10.jpg
https://content.gnoss.ws/carq//imagenes/Documentos/imgsem/ed/ed0c/ed0ce5ab-64ab-4676-af16-a8df68071efd/19c1ffb9-94f6-4a6b-a900-c52c47ce223e.jpg, 0000001537/09.jpg



