Cargando...
Tres miembros de la misma familia que vivían en el edificio de la calle d'Amigó le encargaron a Mitjans otro de viviendas más grandes, en una zona de edificación aislada que permitía retrasar el edificio para crear un jardín delantero.
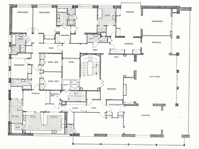
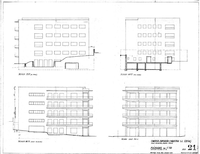
El resultado es un volumen compacto, de una vivienda por rellano, cuya característica principal son las amplias terrazas de la fachada principal. Las otras terrazas se extienden por la fachada lateral y están soportadas por una estructura muy ligera de hormigón armado. La composición del edificio se caracteriza por su forma cúbica, con muros de ladrillo visto, y por el jardín que circunda el edificio, resuelto con árboles que ya se hallaban en el lugar. Todo el edificio iba a ser ocupado por miembros de la misma familia, circunstancia que Mitjans aprovechó para disponer en planta baja unas dependencias comunes en contacto directo con el jardín. La distribución de las viviendas se desarrolla a partir de un núcleo central de comunicaciones, alrededor del cual se puede circular y acceder a todas las dependencias. En general, los encargos de viviendas a Mitjans no suelen ser mínimas, lo que le ofrece grandes posibilidades plásticas en el tratamiento de los espacios y los volúmenes.
.
Información general
Habitatges Ceisa
AÑO
Opción de visitas
Dirección
c/ Vallmajor, 25-27
08021 Barcelona - Barcelona
Latitud: 41.399597612
Longitud: 2.1389291306
Clasificación
Materiales construcción
Superficie construida
Arquitectos participantes
Información aportada por
Félix Solaguren-Beascoa de Corral
Ubicación
https://content.gnoss.ws/carq/https://content.gnoss.ws/carq//imagenes/Documentos/imgsem/7a/7a55/7a55c6f7-86fb-4dbd-b35d-60c6dce4c9d8/5145ef55-e808-4858-8f63-7d8b81baa934.jpg, 0000011278/1.jpg
https://content.gnoss.ws/carq//imagenes/Documentos/imgsem/7a/7a55/7a55c6f7-86fb-4dbd-b35d-60c6dce4c9d8/c906436d-8d23-4f7a-ae4d-7d7e3e71d313.jpg, 0000011278/Habitages Ceisa planos 1 F.Mitjans.jpg
https://content.gnoss.ws/carq//imagenes/Documentos/imgsem/7a/7a55/7a55c6f7-86fb-4dbd-b35d-60c6dce4c9d8/477ea6b3-9f4f-4146-909a-18a2c1ed3ad0.jpg, 0000011278/40_CEISA_alzados001.jpg



