Cargando...
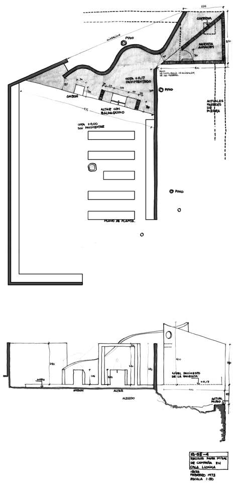
Junto a una playa turística, entre pinos y para el verano. Recinto semicerrado, con sacristía, espadaña pequeñita de ventana circular, ya sin campana, biombo-cortina desplegado y ondulado como fondo del altar con baldaquín-portal, ambón de lectura del Evangelio, bancos sin respaldo y bóveda de ramas de pino.Un escenario litúrgico.
Cada año, al pintarla de blanco se renueva y se conserva. Una iglesia de campaña, un jardín o trozo de bosque como los de las casas del vecindario. Algo se le va añadiendo y algo se le va sustrayendo. En esencia, tal como era en 1973.
Información general
Iglesia de la Asunción
AÑO
Opción de visitas
Dirección
c/ Monte del Calvario, 5
07849 Santa Eulàlia des Riu - Illes Balears
Latitud: 38.956078
Longitud: 1.514079
Clasificación
Materiales construcción
Superficie construida
Estudios de arquitectura participantes
Información aportada por
José Antonio Martínez Lapeña & Elías Torres Architects
Enlaces web
-
Michael Moran -
Plano de situación - replanteo - José Antonio Martínez Lapeña & Elías Torres Architects -
José Antonio Martínez Lapeña & Elías Torres Architects -
Planta y sección - José Antonio Martínez Lapeña & Elías Torres Architects
Ubicación
https://content.gnoss.ws/carq/https://content.gnoss.ws/carq//imagenes/Documentos/imgsem/9b/9bc4/9bc461de-c9bd-4821-91aa-3ca2e728df80/11a81387-dd12-42cc-ac23-7afe68feb8d2.jpg, 0000017343/011_1.jpg
https://content.gnoss.ws/carq/https://content.gnoss.ws/carq//imagenes/Documentos/imgsem/9b/9bc4/9bc461de-c9bd-4821-91aa-3ca2e728df80/1a0625f4-ee7d-437a-982f-f726990bdd60.jpg, 0000017343/011_4.jpg
https://content.gnoss.ws/carq/https://content.gnoss.ws/carq//imagenes/Documentos/imgsem/9b/9bc4/9bc461de-c9bd-4821-91aa-3ca2e728df80/3022232e-f5dd-4072-84c2-212c58e81dc7.jpg, 0000017343/011_5a_MM.jpg
https://content.gnoss.ws/carq/https://content.gnoss.ws/carq//imagenes/Documentos/imgsem/9b/9bc4/9bc461de-c9bd-4821-91aa-3ca2e728df80/ad30ce0d-c450-426a-acc9-9354023ce651.jpg, 0000017343/011_5b.jpg
https://content.gnoss.ws/carq//imagenes/Documentos/imgsem/9b/9bc4/9bc461de-c9bd-4821-91aa-3ca2e728df80/9e4d4d38-c3c4-4a31-84e6-10af09385f29.jpg, 0000017343/011_3.jpg
https://content.gnoss.ws/carq//imagenes/Documentos/imgsem/9b/9bc4/9bc461de-c9bd-4821-91aa-3ca2e728df80/de6e6618-5be2-424b-94fa-69b88f9a533b.jpg, 0000017343/011_2.jpg





