Cargando...
Renovación de una iglesia urbana del siglo XVIII que servía a un hospital de pobres. Se ha conservado su esencia recurriendo a elementos que evocan a los de otras iglesias rurales de la isla de mejor fortuna económica.
El espacio puede servir para actos culturales y exposiciones o para el culto religioso. Se ha incorporado luz cenital en el muro del altar mayor (rayos) y en los deambulatorios superiores. En la pared del muro del altar aparecen, para la celebración de la misa, un baldaquino azul con estrellas, un cuadro del antiguo retablo y el sagrario dorado; los colores de las puertas de los armarios laterales acompañan a la escena de la celebración.
Información general
Iglesia de l'Hospitalet
AÑO
Opción de visitas
Dirección
c/ De La Santa Faç de Dalt Vila,
07800 Ibiza - Illes Balears
Latitud: 38.907708232
Longitud: 1.4346858979
Clasificación
Superficie construida
Estudios de arquitectura participantes
Información aportada por
José Antonio Martínez Lapeña & Elías Torres Architects
-
Planta primera - José Antonio Martínez Lapeña & Elías Torres Architects -
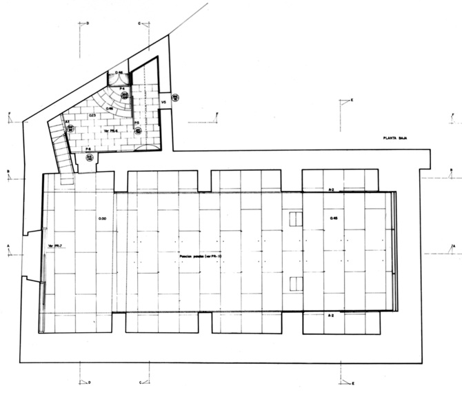
Planta baja - José Antonio Martínez Lapeña & Elías Torres Architects
Ubicación
https://content.gnoss.ws/carq/https://content.gnoss.ws/carq//imagenes/Documentos/imgsem/60/60c6/60c682a5-aa79-48e1-a1f9-1a7de5a344cd/c3deb6d9-de87-447b-892e-9482770630cd.jpg, 0000020254/032_13.jpg
https://content.gnoss.ws/carq//imagenes/Documentos/imgsem/60/60c6/60c682a5-aa79-48e1-a1f9-1a7de5a344cd/512f3b1f-0f0a-40b6-a225-28b940c4c040.jpg, 0000020254/032_14b.jpg
https://content.gnoss.ws/carq//imagenes/Documentos/imgsem/60/60c6/60c682a5-aa79-48e1-a1f9-1a7de5a344cd/cbc767c8-e06f-485d-98c4-09ae8b162358.jpg, 0000020254/032_14a.jpg
https://content.gnoss.ws/carq//imagenes/Documentos/imgsem/60/60c6/60c682a5-aa79-48e1-a1f9-1a7de5a344cd/193f83b7-10cb-4358-887d-ec69e8f3060c.jpg, 0000020254/032_15a.jpg
https://content.gnoss.ws/carq//imagenes/Documentos/imgsem/60/60c6/60c682a5-aa79-48e1-a1f9-1a7de5a344cd/0c9f6fa3-abb4-4ecd-b158-947fd8bfbdc4.jpg, 0000020254/032_22.jpg



