Cargando...
Tras doce años de búsqueda de solar, la Iglesia Evangélica Unida de Terrassa, institución casi centenaria en la ciudad, encuentra su lugar en el barrio de Can Tusell con fachada a la avenida Béjar, una de las grandes calles de acceso a la ciudad y de comunicación con la zona industrial.
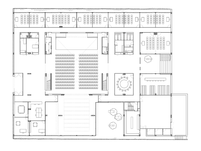
El edificio, que ocupa un tercio del solar y situado en su parte más baja con acceso desde la avenida Béjar, combina usos propiamente religiosos –celebra culto todos los domingos por la mañana– con usos sociales, gracias a un convenio con el Ayuntamiento.
El complejo se manifiesta como un gran basamento que va disminuyendo su altura a causa de la pendiente del terreno, formado por pletinas de acero a modo de revestimiento y a modo de valla sobre el que se suspenden dos cuerpos. En una posición central y de mayor tamaño se levanta un cubo aristado y modulado revestido con un nuevo material de aluminio reciclado, prensado e inyectado que gracias a su brillo le otorga un carácter emblemático a la pieza que alberga en su interior la sala de culto. El otro cuerpo de menor altura y próximo a la calle Tramuntana se suspende y sale en voladizo. En este caso las aristas enmarcan unos planos de aluminio ondulado y perforado que actúan de celosía como segunda piel para un programa de guardería. Mientras la fachada a la avenida Béjar se presenta como un plano tenso, riguroso y continuo que esconde su acceso, las dos fachadas laterales muestran su cara más amable donde la vegetación enmascara una valla que actúa de segunda fachada de manera que el plano del vidrio se atrasa respecto al límite del solar y así todos los espacios perimetrales disfrutan de luz y ventilación, así como de intimidad y seguridad.
Información general
Iglesia Evangélica en Terrassa
AÑO
Opción de visitas
Dirección
avda. Béjar, 299
08226 Terrassa - Barcelona
Latitud: 41.580526278
Longitud: 2.0199864843
Clasificación
Superficie construida
Estudios de arquitectura participantes
Información aportada por
OAB - Office of Architecture in Barcelona
Ubicación
https://content.gnoss.ws/carq/https://content.gnoss.ws/carq//imagenes/Documentos/imgsem/8a/8a06/8a06e568-b773-46e3-9d6a-204cd5b27bff/90304130-aae8-43d2-9d23-60ed6056b1d8.jpg, 0000007046/FAD2011_32_TEMPLO_BAGUE_01.jpg
https://content.gnoss.ws/carq/https://content.gnoss.ws/carq//imagenes/Documentos/imgsem/8a/8a06/8a06e568-b773-46e3-9d6a-204cd5b27bff/9c8852a3-4fce-4dcc-a881-81b9870db0e7.jpg, 0000007046/JGC_1399-40-41.jpg
https://content.gnoss.ws/carq//imagenes/Documentos/imgsem/8a/8a06/8a06e568-b773-46e3-9d6a-204cd5b27bff/921d67ea-9a43-4d78-bdee-a16eeddbf9c7.jpg, 0000007046/Planta Baixa.jpg
https://content.gnoss.ws/carq//imagenes/Documentos/imgsem/8a/8a06/8a06e568-b773-46e3-9d6a-204cd5b27bff/599e7ea6-108f-46eb-828c-45960b50c18a.jpg, 0000007046/Seccions.jpg



