Cargando...
El objetivo del proyecto es la construcción de un conjunto edificado, que incluye un sector de oficinas y una nave industrial para una empresa de artes gráficas.
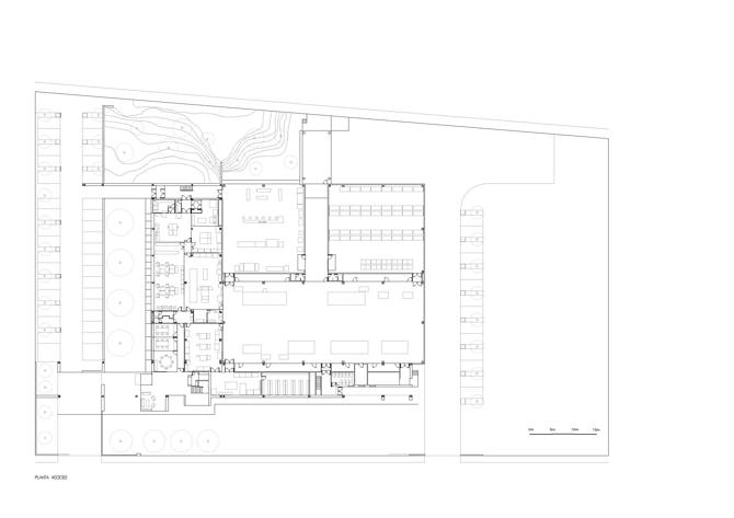
La reflexión fundamental y primera es la búsqueda del uso como elemento estructurador del proyecto, uso entendido como mecanismo abierto, capaz de estimular una organización flexible en la que los cambios se produzcan con la naturalidad propia de un estado de vida. El edificio así entendido es un patio interior y otro exterior; en el primero, el edificio se ofrece como absolutamente abierto, en el segundo como un marco. Modos diversos de convertir en propios distintos horizontes. El interior pertenece a dos mundos que entran en contacto, el primero, el de la técnica, el segundo, el representativo, libre de asperezas y matizado por recursos de luz y vistas. Todo el proyecto gira en definitiva sobre este contacto de distinto uso y dimensión.
.
Información general
Imprenta Gráficas Palermo
AÑO
Opción de visitas
Dirección
a. de la Técnica, 7
28522 RivasVaciamadrid - Madrid
Latitud: 40.351081224
Longitud: -3.54493335
Superficie construida
Arquitectos participantes
Información aportada por
amann cánovas maruri
Enlaces web
Ubicación
https://content.gnoss.ws/carq/https://content.gnoss.ws/carq//imagenes/Documentos/imgsem/d9/d9f5/d9f5bf1d-d343-46ee-88b7-12d84edff5b3/3d5db619-aae8-48cc-a2ee-6ab2e4ada9cf.jpg, 0000020949/situacion.jpg
https://content.gnoss.ws/carq//imagenes/Documentos/imgsem/d9/d9f5/d9f5bf1d-d343-46ee-88b7-12d84edff5b3/b68ce014-b4ca-4b73-a0b1-249a8b0611aa.jpg, 0000020949/planta_acceso .jpg



