Cargando...
El Instituto de Ciencias de la Vid y del Vino (ICVV) tiene como objetivo convertirse en uno de los centros de referencia mundial de investigación en viticultura y enología. Es compartido por el Gobierno de La Rioja, el Consejo Superior de Investigaciones Científicas y la Universidad de La Rioja y está situado en la finca La Grajera, de valor paisajístico, por la que discurre el Camino de Santiago.
El edificio fue diseñado con dos objetivos: máxima funcionalidad e integración en el entorno.
El presupuesto, sujeto a módulos del CSIC, era ajustado, por lo que los materiales son austeros y las formas contenidas.
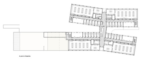
Se compone de tres volúmenes. Dos de ellos, simétricos, forman el edificio de investigación. Las dos plantas altas alojan laboratorios y despachos para más de 200 investigadores, repartidos en ocho módulos casi idénticos, mientras en planta baja se sitúan los laboratorios e instalaciones comunes. El tercer volumen, la Bodega Experimental, se dispone como prolongación del más bajo de los dos anteriores, adaptándose así a la caída de la ladera.
Información general
Instituto de Ciencias de la Vid y del Vino
AÑO
Opción de visitas
Dirección
ctra. de Burgos, 6
26007 Logrono - La Rioja
Latitud: 42.444320944
Longitud: -2.514129496
Clasificación
Sistema constructivo
Estructura de hormigón armado. Fachadas de paneles prefabricados de hormigón, chapa de acero y aluminio
Superficie construida
Arquitectos participantes
Colaboradores
Álvaro Montón Gil (Dirección de Ejecución)
Ibon Perez Murguiondo (Arquitecto)
JG Ingenieros (Diseño y cálculo de las instalaciones)
UTE Ferrovial-Agroman (Constructor)
José Antonio Gurruchaga (Diseño y cálculo de la estructura)
Leticia Uribe-Etxeberria (Arquitecto)
Estudios de arquitectura participantes
Información aportada por
Ignacio Quemada Arquitectos
Colegio Oficial de Arquitectos de La Rioja (COAR)
Enlaces web
-
Instituto de Ciencias de La Vid y del Vino - Duccio Malagamba -
Instituto de Ciencias de La Vid y del Vino - Ignacio Quemada Arquitectos -
Instituto de Ciencias de La Vid y del Vino - Ignacio Quemada Arquitectos -
Instituto de Ciencias de La Vid y del Vino - Duccio Malagamba -
Instituto de Ciencias de La Vid y del Vino - Duccio Malagamba
Ubicación
Itinerarios
https://content.gnoss.ws/carq/https://content.gnoss.ws/carq//imagenes/Documentos/imgsem/2d/2d08/2d08ba3d-6ffd-4e4b-95e6-af0e0947b2fd/ac13b41f-d34d-46ec-be86-415f7c4f09fd.jpg, 0000044120/_institutodecienciasdelavidydelvino_01.jpg
https://content.gnoss.ws/carq/https://content.gnoss.ws/carq//imagenes/Documentos/imgsem/2d/2d08/2d08ba3d-6ffd-4e4b-95e6-af0e0947b2fd/335dd49e-a43a-4810-abf5-4b6163a71e36.jpg, 0000044120/_institutodecienciasdelavidydelvino_03.jpg
https://content.gnoss.ws/carq/https://content.gnoss.ws/carq//imagenes/Documentos/imgsem/2d/2d08/2d08ba3d-6ffd-4e4b-95e6-af0e0947b2fd/7f8bb65e-cdef-4377-8893-19ad39aa2e4e.jpg, 0000044120/_institutodecienciasdelavidydelvino_04.jpg
https://content.gnoss.ws/carq/https://content.gnoss.ws/carq//imagenes/Documentos/imgsem/2d/2d08/2d08ba3d-6ffd-4e4b-95e6-af0e0947b2fd/459a16f8-e1b6-425d-b7e4-b0a4be185502.jpg, 0000044120/_institutodecienciasdelavidydelvino_06.jpg
https://content.gnoss.ws/carq/https://content.gnoss.ws/carq//imagenes/Documentos/imgsem/2d/2d08/2d08ba3d-6ffd-4e4b-95e6-af0e0947b2fd/2d058adc-5c77-4bf0-89c4-8baf87139556.jpg, 0000044120/_institutodecienciasdelavidydelvino_07.jpg
https://content.gnoss.ws/carq/https://content.gnoss.ws/carq//imagenes/Documentos/imgsem/2d/2d08/2d08ba3d-6ffd-4e4b-95e6-af0e0947b2fd/6d43a434-df59-4beb-a764-cb68b727b3ab.jpg, 0000044120/_institutodecienciasdelavidydelvino_09.jpg
https://content.gnoss.ws/carq/https://content.gnoss.ws/carq//imagenes/Documentos/imgsem/2d/2d08/2d08ba3d-6ffd-4e4b-95e6-af0e0947b2fd/57bbab79-9bb3-4b03-93a6-78150aeaab51.jpg, 0000044120/_institutodecienciasdelavidydelvino_10.jpg
https://content.gnoss.ws/carq/https://content.gnoss.ws/carq//imagenes/Documentos/imgsem/2d/2d08/2d08ba3d-6ffd-4e4b-95e6-af0e0947b2fd/0bc00673-9277-44a1-a68f-5be4fe2317c6.jpg, 0000044120/_institutodecienciasdelavidydelvino_12.jpg
https://content.gnoss.ws/carq/https://content.gnoss.ws/carq//imagenes/Documentos/imgsem/2d/2d08/2d08ba3d-6ffd-4e4b-95e6-af0e0947b2fd/157dd014-a2f1-4157-8ac7-dfa0d5cd1d2f.jpg, 0000044120/_institutodecienciasdelavidydelvino_14.jpg
https://content.gnoss.ws/carq/https://content.gnoss.ws/carq//imagenes/Documentos/imgsem/2d/2d08/2d08ba3d-6ffd-4e4b-95e6-af0e0947b2fd/3b597ddf-b923-4c92-839d-830dbdceff5c.jpg, 0000044120/_institutodecienciasdelavidydelvino_16.jpg
https://content.gnoss.ws/carq/https://content.gnoss.ws/carq//imagenes/Documentos/imgsem/2d/2d08/2d08ba3d-6ffd-4e4b-95e6-af0e0947b2fd/158ddc46-6c07-4a51-bc42-24ab7269bfbf.jpg, 0000044120/_institutodecienciasdelavidydelvino_17.jpg
https://content.gnoss.ws/carq/https://content.gnoss.ws/carq//imagenes/Documentos/imgsem/2d/2d08/2d08ba3d-6ffd-4e4b-95e6-af0e0947b2fd/650239f3-ec1d-4844-806c-705320294ac1.jpg, 0000044120/_institutodecienciasdelavidydelvino_19.jpg
https://content.gnoss.ws/carq/https://content.gnoss.ws/carq//imagenes/Documentos/imgsem/2d/2d08/2d08ba3d-6ffd-4e4b-95e6-af0e0947b2fd/7ebd9a20-45f6-4a6b-9895-f364e15c3aff.jpg, 0000044120/_institutodecienciasdelavidydelvino_20.jpg
https://content.gnoss.ws/carq/https://content.gnoss.ws/carq//imagenes/Documentos/imgsem/2d/2d08/2d08ba3d-6ffd-4e4b-95e6-af0e0947b2fd/a66874d7-8288-4b7d-a529-c87bca15ddca.jpg, 0000044120/_institutodecienciasdelavidydelvino_22.jpg
https://content.gnoss.ws/carq/https://content.gnoss.ws/carq//imagenes/Documentos/imgsem/2d/2d08/2d08ba3d-6ffd-4e4b-95e6-af0e0947b2fd/930022d0-55fa-470c-a4d3-86eb76e421a0.jpg, 0000044120/_institutodecienciasdelavidydelvino_23.jpg
https://content.gnoss.ws/carq//imagenes/Documentos/imgsem/2d/2d08/2d08ba3d-6ffd-4e4b-95e6-af0e0947b2fd/094fe6d8-5019-419d-8287-96f8eec00079.jpg, 0000044120/_institutodecienciasdelavidydelvino_13.jpg
https://content.gnoss.ws/carq//imagenes/Documentos/imgsem/2d/2d08/2d08ba3d-6ffd-4e4b-95e6-af0e0947b2fd/e1376dfb-9c53-4516-86e6-130b728b8d95.jpg, 0000044120/_institutodecienciasdelavidydelvino_08.jpg
https://content.gnoss.ws/carq//imagenes/Documentos/imgsem/2d/2d08/2d08ba3d-6ffd-4e4b-95e6-af0e0947b2fd/c5fecc99-e98c-49e5-b904-471588eb5ca6.jpg, 0000044120/_institutodecienciasdelavidydelvino_05.jpg
https://content.gnoss.ws/carq//imagenes/Documentos/imgsem/2d/2d08/2d08ba3d-6ffd-4e4b-95e6-af0e0947b2fd/cea19639-74cd-4058-b82f-5799010206dc.jpg, 0000044120/_institutodecienciasdelavidydelvino_02.jpg
https://content.gnoss.ws/carq//imagenes/Documentos/imgsem/2d/2d08/2d08ba3d-6ffd-4e4b-95e6-af0e0947b2fd/8ce6229b-6fb0-47b8-a988-5c48d0737978.jpg, 0000044120/_institutodecienciasdelavidydelvino_15.jpg
https://content.gnoss.ws/carq//imagenes/Documentos/imgsem/2d/2d08/2d08ba3d-6ffd-4e4b-95e6-af0e0947b2fd/42a5d395-6a31-4e3c-b521-c584941f7d2b.jpg, 0000044120/_institutodecienciasdelavidydelvino_11.jpg
https://content.gnoss.ws/carq//imagenes/Documentos/imgsem/2d/2d08/2d08ba3d-6ffd-4e4b-95e6-af0e0947b2fd/f44c3169-762f-4a55-9602-73299496b42b.jpg, 0000044120/_institutodecienciasdelavidydelvino_21.jpg






