Cargando...
En un texto sobre un arquitecto español se decía que lo que en definitiva hacía no era más que “cajas, cajitas, cajones”, y se citaba a Lubetkin cuando el estupendo arquitecto ruso-inglés afirmaba que él no había hecho otra cosa en su vida que como “cajas de zapatos en hormigón”.
Si caemos en la cuenta de que la dirección de la gravedad es siempre perpendicular al plano horizontal sobre el que el hombre se asienta arquitectónicamente hablando, y que desde que con el acero es posible materializar el plano horizontal superior como tal plano, y si combinamos todo ello de la manera más lógica y funciona, llegamos necesariamente a la caja. Cajas en las que, a base de trabajar con la proporción y la escala, y de tensarlas convenientemente con la luz, los arquitectos pueden hacer maravillas.
Maravillas son las que han hecho en este proyecto, que puede considerarse su ópera prima, los jóvenes arquitectos madrileños Javier Fresneda y Javier Sanjuán. El proyecto del Instituto de Investigación y Medio Ambiente fue ganador de un concurso convocado por la Universidad de León en 1996. Han construido tres cajas, una de piedra, otra metálica y otra de vidrio, y las han combinado y ensamblado con gran sabiduría. A cada una de ellas le han adjudicado las funciones correspondientes.
La caja de piedra, la mayor, se abre en torno a un patio, como si de abrazar el aire se tratara. Certeramente parte del suelo del patio es un estanque donde el cielo se refleja en el plano horizontal del agua, como si de un espejo se tratara. Como una “chambre a ciel ouvert” que diría Le Corbusier. Como materializando una cuarta caja de aire. Piedra, metal, vidrio, aire. La tierra, el fuego, el agua, el aire, como si de trabajar con los cuatro elementos se tratara. Y así, con esos cuatro elementos crean un recinto preciso que cruza la sutil línea que separa, tantas veces, una arquitectura que solo es construcción, de aquella que posee ese “algo más” que anima toda creación arquitectónica.
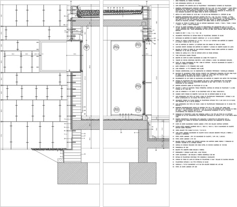
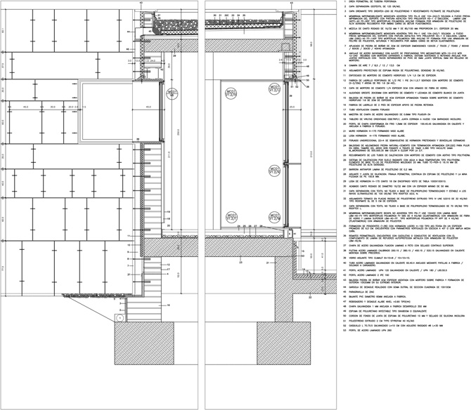
La construcción es impecable. La articulación de una ordenada estructura metálica que se va envolviendo con una piel bien tensada con los diversos materiales, la piedra de Boñar, el panel multicapa de aluminio y el vidrio laminar, se manifiesta con una lógica aplastante. Todo sencillo, con gran economía de medios, bien temperado. Pareciera que en esta tensada arquitectura, llena de reflejos en todos sus planos, el cielo que en ella se mira quedara atrapado.
“El cielo atrapado en una caja”. Alberto Campo Baeza
Información general
Instituto de Investigación y Medio Ambiente de la Universidad de León
AÑO
Opción de visitas
Dirección
c/ de la Serna, 54
24007 Leon - León
Latitud: 42.604729811
Longitud: -5.556923586
Clasificación
Sistema constructivo
Mixto Acero-hormigón-Fábrica de ladrillo
Superficie construida
Colaboradores
Javier Herreros (Colaborador MTM)
Juan José Nuñez (Arquitecto técnico)
Javier Sánchez (Colaborador MTM)
Mario Sanjuán (Colaborador MTM)
Estudios de arquitectura participantes
Información aportada por
MTM Arquitectos
Enlaces web
-
MTM Arquitectos -
MTM Arquitectos
Ubicación
https://content.gnoss.ws/carq/https://content.gnoss.ws/carq//imagenes/Documentos/imgsem/c2/c2d3/c2d3e910-dca9-4b6a-a4d4-a54f70117e86/6b59a864-5014-4275-a404-4801ba775249.jpg, 0000027337/01_Exterior. Acceso.jpg
https://content.gnoss.ws/carq/https://content.gnoss.ws/carq//imagenes/Documentos/imgsem/c2/c2d3/c2d3e910-dca9-4b6a-a4d4-a54f70117e86/60e2acf5-7707-4b84-ad18-736c6d99f65c.jpg, 0000027337/02_Exterior_Volumenes.jpg
https://content.gnoss.ws/carq/https://content.gnoss.ws/carq//imagenes/Documentos/imgsem/c2/c2d3/c2d3e910-dca9-4b6a-a4d4-a54f70117e86/3889b3b8-d835-46a7-bc57-2bee36399e25.jpg, 0000027337/03_Exterior_fuga.jpg
https://content.gnoss.ws/carq/https://content.gnoss.ws/carq//imagenes/Documentos/imgsem/c2/c2d3/c2d3e910-dca9-4b6a-a4d4-a54f70117e86/cdb3d2cb-aeb9-41dd-a9d4-033b6b750a66.jpg, 0000027337/04_Alzado_Aluminio.jpg
https://content.gnoss.ws/carq/https://content.gnoss.ws/carq//imagenes/Documentos/imgsem/c2/c2d3/c2d3e910-dca9-4b6a-a4d4-a54f70117e86/3ebf6976-ce81-4ec3-bad9-16ac86dce2b8.jpg, 0000027337/05_Alzado_Piedra.jpg
https://content.gnoss.ws/carq/https://content.gnoss.ws/carq//imagenes/Documentos/imgsem/c2/c2d3/c2d3e910-dca9-4b6a-a4d4-a54f70117e86/8ce0d57a-c660-4e1d-bb17-fc6c60c241e0.jpg, 0000027337/06_Patio_Galeria.jpg
https://content.gnoss.ws/carq/https://content.gnoss.ws/carq//imagenes/Documentos/imgsem/c2/c2d3/c2d3e910-dca9-4b6a-a4d4-a54f70117e86/03b8857c-307d-4484-a1bf-b018e1745345.jpg, 0000027337/07_Galeria_Patio.jpg
https://content.gnoss.ws/carq/https://content.gnoss.ws/carq//imagenes/Documentos/imgsem/c2/c2d3/c2d3e910-dca9-4b6a-a4d4-a54f70117e86/14ba6a8d-192d-458d-808b-3635e605588e.jpg, 0000027337/08_Piedra Vidrio Aluminio.jpg
https://content.gnoss.ws/carq/https://content.gnoss.ws/carq//imagenes/Documentos/imgsem/c2/c2d3/c2d3e910-dca9-4b6a-a4d4-a54f70117e86/3287979e-df69-470d-b626-c5a34cade290.jpg, 0000027337/09_Piedra_Huecos.jpg
https://content.gnoss.ws/carq/https://content.gnoss.ws/carq//imagenes/Documentos/imgsem/c2/c2d3/c2d3e910-dca9-4b6a-a4d4-a54f70117e86/376a9e1f-6685-483f-9100-3afc22f588df.jpg, 0000027337/10_Patio jardin_agua.jpg
https://content.gnoss.ws/carq/https://content.gnoss.ws/carq//imagenes/Documentos/imgsem/c2/c2d3/c2d3e910-dca9-4b6a-a4d4-a54f70117e86/5e6d6600-4ee7-42bf-bed7-3749fb442741.jpg, 0000027337/11_Patio_atardecer.jpg
https://content.gnoss.ws/carq//imagenes/Documentos/imgsem/c2/c2d3/c2d3e910-dca9-4b6a-a4d4-a54f70117e86/a5b49cd4-49fc-49cf-aaf4-00748396f308.jpg, 0000027337/10_Seccion Constructiva_Piedra.jpg
https://content.gnoss.ws/carq//imagenes/Documentos/imgsem/c2/c2d3/c2d3e910-dca9-4b6a-a4d4-a54f70117e86/c9aab7c7-75da-4437-9dd7-01569a75d902.jpg, 0000027337/11_Seccion Constructiva_Vidrio.jpg
https://content.gnoss.ws/carq//imagenes/Documentos/imgsem/c2/c2d3/c2d3e910-dca9-4b6a-a4d4-a54f70117e86/6867fbb1-6a71-4e8d-aeef-025d128e9b35.jpg, 0000027337/05_Maqueta. Concurso.jpg
https://content.gnoss.ws/carq//imagenes/Documentos/imgsem/c2/c2d3/c2d3e910-dca9-4b6a-a4d4-a54f70117e86/7cda3f4d-0fa3-4f86-afe8-a13fbb1f474d.jpg, 0000027337/06_Planta.jpg
https://content.gnoss.ws/carq//imagenes/Documentos/imgsem/c2/c2d3/c2d3e910-dca9-4b6a-a4d4-a54f70117e86/5a5df342-1f4d-4042-bdcd-f56c0b26d2c4.jpg, 0000027337/09_Seccion Constructiva_Alucobond.jpg
https://content.gnoss.ws/carq//imagenes/Documentos/imgsem/c2/c2d3/c2d3e910-dca9-4b6a-a4d4-a54f70117e86/33ff15e4-f405-4cc1-b3f8-d4a3ed9f83cc.jpg, 0000027337/08_Alzados_Secciones. Proyecto.jpg
https://content.gnoss.ws/carq//imagenes/Documentos/imgsem/c2/c2d3/c2d3e910-dca9-4b6a-a4d4-a54f70117e86/0d801947-8403-4924-b94d-1b8ed3fcab8d.jpg, 0000027337/02_Croquis. Concurso.jpg
https://content.gnoss.ws/carq//imagenes/Documentos/imgsem/c2/c2d3/c2d3e910-dca9-4b6a-a4d4-a54f70117e86/907bedc9-4a11-43fa-8e85-d2d7be53f4a6.jpg, 0000027337/01_Emplazamiento.jpg
https://content.gnoss.ws/carq//imagenes/Documentos/imgsem/c2/c2d3/c2d3e910-dca9-4b6a-a4d4-a54f70117e86/c12709af-d889-4f35-8ad9-610f2d3b81f5.jpg, 0000027337/03_Planta. Concurso.jpg
https://content.gnoss.ws/carq//imagenes/Documentos/imgsem/c2/c2d3/c2d3e910-dca9-4b6a-a4d4-a54f70117e86/086ac370-a8f0-465c-a904-351de7adff1f.jpg, 0000027337/07_Planta. Proyecto.jpg
https://content.gnoss.ws/carq//imagenes/Documentos/imgsem/c2/c2d3/c2d3e910-dca9-4b6a-a4d4-a54f70117e86/4abc25eb-f4d9-44df-8865-d3e770b67870.jpg, 0000027337/04_Montaje. Concurso.jpg
https://content.gnoss.ws/carq//imagenes/Documentos/imgsem/c2/c2d3/c2d3e910-dca9-4b6a-a4d4-a54f70117e86/8e24b37b-fc4f-4a0b-bce0-616d6182e476.jpg, 0000027337/12_Carpinterias. Proyecto.jpg



