Cargando...
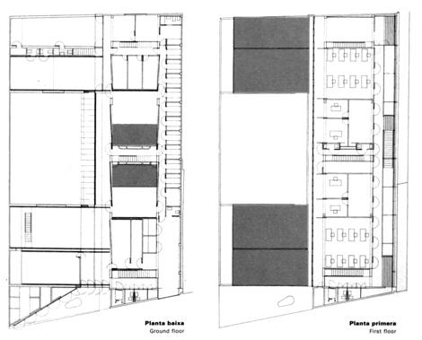
El proyecto toma como referencia principal la medianera dejada por la edificación preexistente, que se consolida con independencia de la nueva edificación. La cubierta del cuerpo principal, paralelo a la medianera, queda pellizcada por la parte posterior y se abre hacia la otra banda del solar.
Este cuerpo acoge los Juzgados y las salas de vistas, y es de dimensiones más pequeñas que las edificaciones vecinas. El resto del programa se sitúa en unos cuerpos delanteros de cubiertas variables. El edificio adopta así un delante y un detrás referidos al tejido urbano e indiferentes en la calle, desde donde se revela el procedimiento compositivo a través de la sección.
Información general
Juzgados de Sant Feliu de Guíxols
AÑO
Opción de visitas
Dirección
c/ d'Antoni de Capmany, 15
17220 Sant Feliu de Guixols - Girona
Latitud: 41.781663845
Longitud: 3.0267951732
Clasificación
Sistema constructivo
El edificio, como una medianera gruesa, se recubre con una lámina metálica corrugada y hace de la exhibición de esta placa su tema fundamental.
Superficie construida
Arquitectos participantes
Información aportada por
Mateo Arquitectura
-
mateoarquitectura -
Plantas - mateoarquitectura -
Situación y Emplazamiento - mateoarquitectura -
mateoarquitectura -
mateoarquitectura -
José Hevia
Ubicación
https://content.gnoss.ws/carq/https://content.gnoss.ws/carq//imagenes/Documentos/imgsem/c4/c489/c4898d2e-65fa-4fca-8302-7bf12f42060b/7c4c59de-2819-4b51-9f0b-fb225fe23771.jpg, 0000011522/Juzgados Sant feliu 1_Mateo.jpg
https://content.gnoss.ws/carq/https://content.gnoss.ws/carq//imagenes/Documentos/imgsem/c4/c489/c4898d2e-65fa-4fca-8302-7bf12f42060b/bdda82c7-4954-48a7-959a-b835df024ad6.jpg, 0000011522/Juzgados Sant feliu 2_Mateo.jpg
https://content.gnoss.ws/carq/https://content.gnoss.ws/carq//imagenes/Documentos/imgsem/c4/c489/c4898d2e-65fa-4fca-8302-7bf12f42060b/9d9125db-18d2-47ee-8235-4b9244e05d02.jpg, 0000011522/4.jpg
https://content.gnoss.ws/carq/https://content.gnoss.ws/carq//imagenes/Documentos/imgsem/c4/c489/c4898d2e-65fa-4fca-8302-7bf12f42060b/95f4c972-9304-4c6e-a285-99f1e4bff56e.jpg, 0000011522/5.jpg
https://content.gnoss.ws/carq/https://content.gnoss.ws/carq//imagenes/Documentos/imgsem/c4/c489/c4898d2e-65fa-4fca-8302-7bf12f42060b/1dce003e-1e1d-4edc-a9ab-e3ec0c9d31dc.jpg, 0000011522/6.jpg
https://content.gnoss.ws/carq/https://content.gnoss.ws/carq//imagenes/Documentos/imgsem/c4/c489/c4898d2e-65fa-4fca-8302-7bf12f42060b/1139d90e-16d3-455b-8c60-4d39e6fccbf8.jpg, 0000011522/7.jpg
https://content.gnoss.ws/carq/https://content.gnoss.ws/carq//imagenes/Documentos/imgsem/c4/c489/c4898d2e-65fa-4fca-8302-7bf12f42060b/59ae77b2-933e-4fe5-8063-c40196aa7ad1.jpg, 0000011522/8.jpg
https://content.gnoss.ws/carq/https://content.gnoss.ws/carq//imagenes/Documentos/imgsem/c4/c489/c4898d2e-65fa-4fca-8302-7bf12f42060b/3349478f-a7c5-45ad-80c6-75cbaf5448a8.jpg, 0000011522/10.jpg
https://content.gnoss.ws/carq/https://content.gnoss.ws/carq//imagenes/Documentos/imgsem/c4/c489/c4898d2e-65fa-4fca-8302-7bf12f42060b/311b5bbd-7c49-40ae-a88f-cb5d2342b1ab.jpg, 0000011522/Image1_baja.jpg
https://content.gnoss.ws/carq/https://content.gnoss.ws/carq//imagenes/Documentos/imgsem/c4/c489/c4898d2e-65fa-4fca-8302-7bf12f42060b/7fdfd954-561a-4ade-80c4-92ac12a91061.jpg, 0000011522/Image2_baja.jpg
https://content.gnoss.ws/carq/https://content.gnoss.ws/carq//imagenes/Documentos/imgsem/c4/c489/c4898d2e-65fa-4fca-8302-7bf12f42060b/67117e9a-5b26-444f-b50d-ed82e059a0bb.jpg, 0000011522/Untitled-1_baja.jpg
https://content.gnoss.ws/carq/https://content.gnoss.ws/carq//imagenes/Documentos/imgsem/c4/c489/c4898d2e-65fa-4fca-8302-7bf12f42060b/c332af36-37f7-4ad1-a4c8-d67c9a95f659.jpg, 0000011522/Untitled-2_baja.jpg
https://content.gnoss.ws/carq/https://content.gnoss.ws/carq//imagenes/Documentos/imgsem/c4/c489/c4898d2e-65fa-4fca-8302-7bf12f42060b/f43ad8c8-cfaa-41a0-8776-a9a1dcca0367.jpg, 0000011522/Untitled-12_baja.jpg
https://content.gnoss.ws/carq/https://content.gnoss.ws/carq//imagenes/Documentos/imgsem/c4/c489/c4898d2e-65fa-4fca-8302-7bf12f42060b/eadbc656-3d0e-440f-8851-9fa420a23028.jpg, 0000011522/Untitled-22_baja.jpg
https://content.gnoss.ws/carq//imagenes/Documentos/imgsem/c4/c489/c4898d2e-65fa-4fca-8302-7bf12f42060b/bbaeecca-8ae6-48a5-ba48-c8df2640c38f.jpg, 0000011522/3.jpg
https://content.gnoss.ws/carq//imagenes/Documentos/imgsem/c4/c489/c4898d2e-65fa-4fca-8302-7bf12f42060b/651fe4d5-2fa2-45e9-9203-78160180aa0e.jpg, 0000011522/plantas.jpg
https://content.gnoss.ws/carq//imagenes/Documentos/imgsem/c4/c489/c4898d2e-65fa-4fca-8302-7bf12f42060b/0ffb4f30-9f7a-4ea8-82c7-23d6afd9681c.jpg, 0000011522/secciones.jpg
https://content.gnoss.ws/carq//imagenes/Documentos/imgsem/c4/c489/c4898d2e-65fa-4fca-8302-7bf12f42060b/2ee02c5d-61ea-4128-a9e3-a2af54229fba.jpg, 0000011522/11.jpg







