Cargando...
Los invernaderos del poniente almeriense se extienden hasta casi tocar el mar en el Puerto de Roquetas. A levante, el Cabo de Gata sirve de telón de fondo a un rico paisaje de embarcaciones que nos recuerda la importancia del mar en la historia de esta tierra. Entre ambos mundos, invernaderos y embarcaciones, pretende mediar este proyecto.
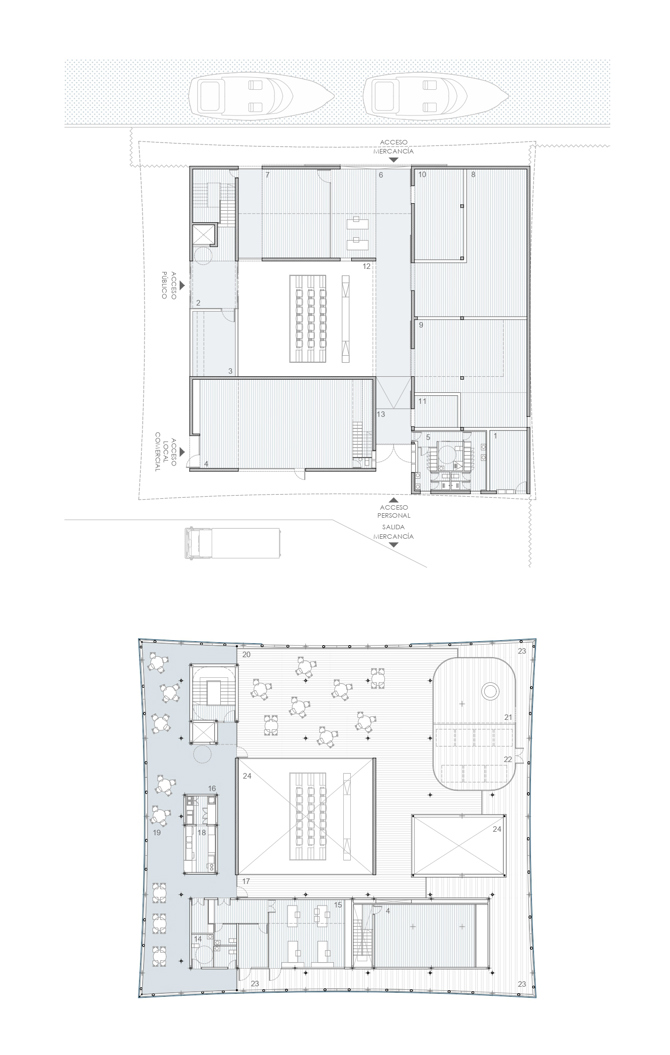
Uno de los objetivos de la actuación en mejorar la Relación Puerto-Ciudad y para ello la primera decisión consiste en liberar el área de antiguas edificaciones para crear nuevas sinergias con la ciudad, agrupando usos diversos en un volumen único: lonja de pescado, restaurante, local comercial y cuartos de instalaciones. El carácter y posición de la edificación –dominando el Puerto desde su extremo Sur- está condicionado por su relación con el Castillo de Santa Ana, que marca la ubicación y altura del edificio en función de las relaciones visuales entre ella y el paisaje.
Para los profesionales, la lonja es un proceso, debe ser una máquina perfecta, moderna y funcional. Por eso la planta baja es el reflejo directo del ciclo de trabajo y los flujos funcionales, desde la llegada del pescado al muelle hasta su salida en los camiones. La sala de subastas, a modo de patio, es el corazón del edificio, un espacio a doble altura, iluminado en su perímetro superior, en torno al cual circulan el resto de procesos.
Para el visitante, los procesos cotidianos se convierten en espectáculo. Esto hace que exista un especial interés en poner en valor productos y sistemas artesanales como el singular despiece del pez espada, para lo cual el edifico pretende ser muy abierto y receptivo a las miradas exteriores pero a su vez controlado en sus circulaciones.
Para la ciudad, el nuevo edificio pretende ser un homenaje al mundo del mar en las curvas suaves, la tensión y la textura de su envolvente: velas, redes, maromas…aportan siluetas, colores e incluso materiales para el edificio. Su imagen pretende ser atractiva, singularizándolo sin caer en el grito. Se trata de salir del anonimato para potenciar un nuevo papel, el de reclamo turístico, que resulta altamente complementario a la actividad principal del edificio y a su rol en la ciudad.
Su condición abierta a la ciudad arranca en un amplio porche cubierto a poniente, en el que un vidrio expone la pescadería y permite contemplar desde el exterior el reclamo del patio de subastas. La planta primera es un espacio unitario a modo de invernadero bajo cuya envolvente textil se despliega un paisaje interior de pequeños volúmenes que encierran usos restringidos: cocina, oficinas, aseos, instalaciones, almacenes… El visitante circula entre ellas para contemplar los trabajos de subastas y manipulación, así como acceder a la cafetería y a su terraza privilegiada.
A nivel constructivo, el edificio presenta una triple lectura ascendente: la planta baja se presenta en hormigón armado, muy tectónica, industrial y robusta. Sobre la losa postesada que la cubre, se posa la grácil y ligera planta alta, con cajas de estructura metálica y forjados ligeros. El conjunto se remata con la estructura metálica curvada que soporta la envolvente textil –microperforada, perforada o llena- que cubre fachadas y cubierta.
Información general
Lonja de pescado y ordenación zona sur del puerto de Roquetas
AÑO
Opción de visitas
Dirección
C/ del Puerto Pesquero, 7
04740 Roquetas de Mar - Almería
Latitud: 36.75467
Longitud: -2.605858
Clasificación
Sistema constructivo
Zocalo de Hormigón armado sobre el que se posan cajas de estructura metalica y forjado colaborante, con cubierta y fachadas de estructura metalica curvada y material textil (PVC y EFTE)
Superficie construida
Colaboradores
DUARTE ASOCIADOS (Estructura y Cimentación)
Estudios de arquitectura participantes
Ubicación
https://content.gnoss.ws/carq/https://content.gnoss.ws/carq//imagenes/Documentos/imgsem/66/66a0/66a02994-fb5d-408b-a504-f34eaf0d01fa/6ab93c48-94d6-4e39-ab01-ff695409cb4d.jpg, 0000097999/9369_06.jpg
https://content.gnoss.ws/carq/https://content.gnoss.ws/carq//imagenes/Documentos/imgsem/66/66a0/66a02994-fb5d-408b-a504-f34eaf0d01fa/2a25f729-0b29-4127-9108-df18aac60ff0.jpg, 0000097999/9369_02.jpg
https://content.gnoss.ws/carq/https://content.gnoss.ws/carq//imagenes/Documentos/imgsem/66/66a0/66a02994-fb5d-408b-a504-f34eaf0d01fa/10cb5eb6-6f2d-467d-96ad-f983c5d6ffff.jpg, 0000097999/9369_11.jpg
https://content.gnoss.ws/carq/https://content.gnoss.ws/carq//imagenes/Documentos/imgsem/66/66a0/66a02994-fb5d-408b-a504-f34eaf0d01fa/9b385864-aed4-4676-927e-e28f82e9cc02.jpg, 0000097999/9369_17.jpg
https://content.gnoss.ws/carq/https://content.gnoss.ws/carq//imagenes/Documentos/imgsem/66/66a0/66a02994-fb5d-408b-a504-f34eaf0d01fa/3bdfd31a-4c9c-4a13-a850-95d8536fb690.jpg, 0000097999/9369_26.jpg
https://content.gnoss.ws/carq/https://content.gnoss.ws/carq//imagenes/Documentos/imgsem/66/66a0/66a02994-fb5d-408b-a504-f34eaf0d01fa/922cb13f-581c-4ed3-8092-11b093cea276.jpg, 0000097999/9369_30.jpg
https://content.gnoss.ws/carq//imagenes/Documentos/imgsem/66/66a0/66a02994-fb5d-408b-a504-f34eaf0d01fa/6a4e53b5-7786-43f0-be24-e079834e2b1d.jpg, 0000097999/PB y PA.jpg
https://content.gnoss.ws/carq//imagenes/Documentos/imgsem/66/66a0/66a02994-fb5d-408b-a504-f34eaf0d01fa/77d3c6e6-7c74-401a-9dd6-bfaac31de715.jpg, 0000097999/6 Axonometri769;a explotada_page-0001.jpg
https://content.gnoss.ws/carq//imagenes/Documentos/imgsem/66/66a0/66a02994-fb5d-408b-a504-f34eaf0d01fa/52bc218b-3a6f-426c-a72b-2bd221a183dd.jpg, 0000097999/0 Escala territorial red.jpg
https://content.gnoss.ws/carq//imagenes/Documentos/imgsem/66/66a0/66a02994-fb5d-408b-a504-f34eaf0d01fa/7615430a-4da4-4202-8795-020546a02ae9.jpg, 0000097999/2 Plano de emplazamiento_page-0001.jpg
https://content.gnoss.ws/carq//imagenes/Documentos/imgsem/66/66a0/66a02994-fb5d-408b-a504-f34eaf0d01fa/81d3310b-8f9a-46d1-a435-9477d5334670.jpg, 0000097999/7 Detalles envolvente textil_page-0001.jpg
https://content.gnoss.ws/carq//imagenes/Documentos/imgsem/66/66a0/66a02994-fb5d-408b-a504-f34eaf0d01fa/7b200fe3-7ea3-4e3d-82e8-8272f24ed907.jpg, 0000097999/SECCIONES.jpg
https://content.gnoss.ws/carq//imagenes/Documentos/imgsem/66/66a0/66a02994-fb5d-408b-a504-f34eaf0d01fa/15ecb02f-1451-431b-9e5b-65f636213c68.jpg, 0000097999/1 Plano escala territorial.jpg



