Cargando...
Nuestra propuesta se centra en dos cuestiones básicas: el lugar y el objeto a diseñar: un paisaje marítimo, industrial, centrado en la pesca, con densidades de uso pautadas en el tiempo.
El proyecto pretende entrar en la escala del lugar, por lo cual se dispone como un sistema de mayores o menores contenedores de actividades varias en torno a un cuerpo principal; conjunto que suma y resuelve las necesidades del programa, permitiendo por sus volúmenes, forma, textura y color, entenderse como volúmenes depositados sobre el muelle.
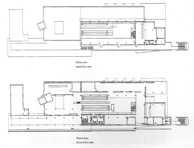
Una lonja de subastas con una pieza principal, la sala de subasta del pescado, una sala longitudinal con capacidad para unos 300 arrieros o acompañantes, espacio de interacción entre los pescadores, el producto y los arrieros.
La sala de subastas está vinculada a dos espacios funcionalmente muy singulares: la sala de recepción, donde se prepara y prepara para mostrar el pescado; y la sala de recogida, donde se reparten y clasifican las compras.
El resto son espacios o instalaciones complementarias, como frigoríficos, fabrica de hielo para suministro a barcas y subasta, oficinas, sala de juntas, cafetería, servicios, almacenes de cajas y espacios de limpieza de las mismas, aparcamientos, etc.
La condición marítima y el uso implican un cuidado particular con los hormigones y el mantenimiento, los basamentos de hormigón visto y los revestimientos de gresite y un suelo continuo permitan un mantenimiento posible en una actividad compleja y dura, con un fácil lavado y una adecuada condición higiénica en los espacios interiores.
Se ha querido destacar la vivacidad de ese ambiente portuario, dando importancia al color en nuestra propuesta arquitectónica cuyos volúmenes destacan sobre una base gris del gran contenedor.
Se dispone de una galería superior, a la manera de placo longitudinal, que permite la asistencia de público para participar en el espectáculo de la propia subasta del pescado.
Los autores del proyecto son los arquitectos Miguel del Rey e Iñigo Magro de Orbe, con posterioridad de solicita por Conselleria de Obras públicas una ampliación de la Fabrica de Hielo, en la que intervienen como arquitectos Miguel del Rey e Ignacio Fuster. El Arquitecto Técnico es en ambas actuaciones Rafael Pastor.
Información general
Lonja de pescado
AÑO
Opción de visitas
Dirección
c/ del Moll, 35
03130 Santa Pola - Alacant
Latitud: 38.187896025
Longitud: -0.557972067
Clasificación
Sistema constructivo
Estructura de hormigón armado, con zócalo visto de buena dimensión, Revestido exteriormente de piedra caliza gris; estructura de cubierta de madera laminada, en forma de bóveda rebajada y cubierta en lámina de cobre. Resto de cubiertas planas.
Superficie construida
Colaboradores
Rafael Pastor Sanchis (Arquitecto Tecnico)
Vicente Perpiñá Rovira (Ingeniero Industrial)
Javier Yuste Navarro (Ingeniero de Caminos-Colaborador en estructura)
Información aportada por
IV BEAU
Ubicación
https://content.gnoss.ws/carq/https://content.gnoss.ws/carq//imagenes/Documentos/imgsem/55/55b5/55b5e833-3c9d-4692-96bf-dfbda39f8082/28f23721-860f-48cd-86de-55701d5dceb3.jpg, 0000052446/11.jpg
https://content.gnoss.ws/carq/https://content.gnoss.ws/carq//imagenes/Documentos/imgsem/55/55b5/55b5e833-3c9d-4692-96bf-dfbda39f8082/c82fae07-6ffa-45ac-86b1-56314994ae83.jpg, 0000052446/1 Santa Pola frontal.jpg
https://content.gnoss.ws/carq//imagenes/Documentos/imgsem/55/55b5/55b5e833-3c9d-4692-96bf-dfbda39f8082/04463ff4-0cb8-4375-86ae-34512feb2b08.jpg, 0000052446/4 Santa Pola plantas.jpg
https://content.gnoss.ws/carq//imagenes/Documentos/imgsem/55/55b5/55b5e833-3c9d-4692-96bf-dfbda39f8082/01b92ab3-8e08-486f-8c1d-688b1614d29e.jpg, 0000052446/3 Santa Pola dibujo.jpg
https://content.gnoss.ws/carq//imagenes/Documentos/imgsem/55/55b5/55b5e833-3c9d-4692-96bf-dfbda39f8082/f13f7572-128f-41c7-aef5-238de628781c.jpg, 0000052446/8 alzado.jpg



