Cargando...
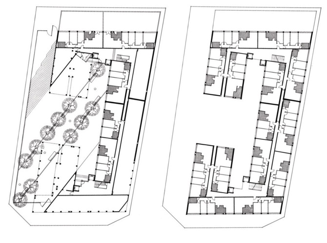
Una línea de alta tensión obligó a definir una zona de protección paralela a una de las calles y desplazó el volumen construido, de manera que a partir de esta restricción se organizó un generoso espacio semipúblico que se trató como antesala de los dos importantes accesos verticales a las viviendas. Su proximidad y abertura a la calle y su relación visual con una gran avenida que tenía enfrente le dieron una mayor amplitud y una mejor conexión con la ciudad.
El proyecto se puede ver como un esfuerzo de adaptación del modelo sencillo del bloque a una compleja trama de ciudad mediterránea en la que las esquinas son fundamentales. La relación entre los componentes, pequeños gestos en los testeros y algún cambio en la anchura de los bloques permitieron que la construcción contribuyera a definir las calles circundantes que no eran ortogonales entre sí.
Era una obra que continuaba con la preocupación por el dimensionado generoso y digno de los accesos comunes y en la que aparecían por primera vez las ganas por ofrecer la máxima libertad en el uso de las viviendas, concebidas como espacios rectangulares en planta, libres de cualquier accidente estructural o de instalaciones y con unos huecos en fachada que no predeterminaban ningún uso y los permitían todos.
Información general
Manzana Puig i Cadafalch
AÑO
Opción de visitas
Dirección
c/ Joan Maragall, 8
08303 Mataro - Barcelona
Latitud: 41.540476994
Longitud: 2.428852133
Clasificación
Superficie construida
Estudios de arquitectura participantes
Información aportada por
Ministerio de Transportes, Movilidad y Agenda urbana (MITMA)
Enlaces web
-
Studio PER -
Oriol Maspons -
Studio PER
Ubicación
https://content.gnoss.ws/carq/https://content.gnoss.ws/carq//imagenes/Documentos/imgsem/50/50ba/50ba3fdc-9f12-4c62-9a3a-adaac2213ed1/b59e18f6-b128-4f11-a2b5-990f4c113ac7.jpg, 0000023290/Manzana Puig i Cadafalch .jpg
https://content.gnoss.ws/carq/https://content.gnoss.ws/carq//imagenes/Documentos/imgsem/50/50ba/50ba3fdc-9f12-4c62-9a3a-adaac2213ed1/e7baf0f3-4887-4c10-82e3-64ecea898e4d.jpg, 0000023290/Manzana Puig i Cadafal 1 .jpg
https://content.gnoss.ws/carq/https://content.gnoss.ws/carq//imagenes/Documentos/imgsem/50/50ba/50ba3fdc-9f12-4c62-9a3a-adaac2213ed1/57440318-b1d6-4ee7-8e0b-3512bf6ec9f4.jpg, 0000023290/Manzana Puig i Cadafal 2 .jpg
https://content.gnoss.ws/carq/https://content.gnoss.ws/carq//imagenes/Documentos/imgsem/50/50ba/50ba3fdc-9f12-4c62-9a3a-adaac2213ed1/90b17632-37a0-4b77-86ec-e1bf469d854e.jpg, 0000023290/Manzana Puig i Cadafal 3 .jpg
https://content.gnoss.ws/carq//imagenes/Documentos/imgsem/50/50ba/50ba3fdc-9f12-4c62-9a3a-adaac2213ed1/1789f0f7-1a5e-4517-aed6-403b8e167db9.jpg, 0000023290/Manzana Puig i Cadafalch plantas .jpg
https://content.gnoss.ws/carq//imagenes/Documentos/imgsem/50/50ba/50ba3fdc-9f12-4c62-9a3a-adaac2213ed1/cf4febe9-3574-4082-831f-3a90173a70a9.jpg, 0000023290/Manzana Puig i Cadafal axonometria .jpg




