Cargando...
Una estrategia, no una forma. El proyecto intenta escuchar el lugar e imaginar una ciudad posible que, sin renunciar a nuestra época, sea capaz de preservar el modo en que la ciudad respira.
Se trata, pues, de encontrar el territorio común entre lo contemporáneo y aquello que permite a la ciudad reconocerse a sí misma; una figura o, mejor, una estrategia que contenga en sí misma ambas caras. Una estrategia considerada en términos de oportunidades. Un conjunto de reglas dictadas por las preexistencias. Una reinterpretación que hace del proyecto continente y contenido, un regalo para la ciudad.
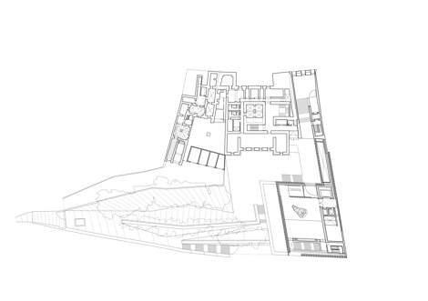
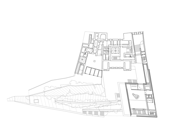
La propuesta devuelve al solar el carácter de tierra de tránsito e intercambio que fueron las zonas de extramuros, lo vuelve permeable. Desde la calle Pizarro, bajo la fachada preexistente, y a través del todavía jardín trasero, se despliega un recorrido público que es un eslabón más en la cadena de plazas y callejuelas por la que se recorre el Cáceres antiguo, y el modo natural de salvar el desnivel que conduce a la parte nueva de la ciudad.
Información general
Museo de Arte Contemporáneo Helga de Alvear
AÑO
Opción de visitas
Dirección
c/ Pizarro, 10
10003 Caceres - Cáceres
Latitud: 39.471929907
Longitud: -6.373027389
Clasificación
Superficie construida
Arquitectos participantes
Estudios de arquitectura participantes
Información aportada por
Tuñón y Albornoz Arquitectos
Enlaces web
-
Tuñón y Albornoz Arquitectos -
Tuñón y Albornoz Arquitectos -
Amores Pictures -
Luis Asín
Ubicación
Itinerarios
https://content.gnoss.ws/carq/https://content.gnoss.ws/carq//imagenes/Documentos/imgsem/52/5279/5279e6ee-cfb8-4db6-86e2-d49ed46505ca/d5af52e7-9220-4d0d-bdd4-2bb0d6fc0a65.jpg, 0000000090/086. IMAGEN 4.jpg
https://content.gnoss.ws/carq/https://content.gnoss.ws/carq//imagenes/Documentos/imgsem/52/5279/5279e6ee-cfb8-4db6-86e2-d49ed46505ca/650be6e0-dcf7-458a-931c-61aae2e71ef6.jpg, 0000000090/086. IMAGEN 2.jpg
https://content.gnoss.ws/carq/https://content.gnoss.ws/carq//imagenes/Documentos/imgsem/52/5279/5279e6ee-cfb8-4db6-86e2-d49ed46505ca/cf0f566d-741a-487d-8304-65d6ec328155.jpg, 0000000090/086. IMAGEN 5.jpg
https://content.gnoss.ws/carq/https://content.gnoss.ws/carq//imagenes/Documentos/imgsem/52/5279/5279e6ee-cfb8-4db6-86e2-d49ed46505ca/58fd7f25-5213-4542-9be7-f2b2b311b717.jpg, 0000000090/086. IMAGEN 1.JPG
https://content.gnoss.ws/carq/https://content.gnoss.ws/carq//imagenes/Documentos/imgsem/52/5279/5279e6ee-cfb8-4db6-86e2-d49ed46505ca/64f02aa3-3730-4bd4-9aeb-02de4c7c09a4.jpg, 0000000090/086. IMAGEN 3.jpg
https://content.gnoss.ws/carq/https://content.gnoss.ws/carq//imagenes/Documentos/imgsem/52/5279/5279e6ee-cfb8-4db6-86e2-d49ed46505ca/78fdbae4-f757-4817-b2e2-11b87bc338d7.jpg, 0000000090/1.jpg
https://content.gnoss.ws/carq//imagenes/Documentos/imgsem/52/5279/5279e6ee-cfb8-4db6-86e2-d49ed46505ca/cbc3b4b6-27c9-4721-be29-0e3324e48efb.jpg, 0000000090/086. PLANTA.jpg
https://content.gnoss.ws/carq//imagenes/Documentos/imgsem/52/5279/5279e6ee-cfb8-4db6-86e2-d49ed46505ca/2eae9c08-8ec9-4254-8f16-08db7e6ae1ca.jpg, 0000000090/086. CROQUIS.jpg
https://content.gnoss.ws/carq//imagenes/Documentos/imgsem/52/5279/5279e6ee-cfb8-4db6-86e2-d49ed46505ca/97f48ca7-4d1e-484b-9fe1-b930441f9dc2.jpg, 0000000090/086. AXO.jpg





